Account: R2378386

April 5, 2026

Account Parcel Account Type Tax Year Buildings Actual Value Local Govt Assessed Value School Assessed Value
R2378386 095913211008 Residential 2026 1 377,212 23,580 26,590

Legal
GR 1WL2-8 L8 BLK2 WEST LAKE PARK 1ST FG

Subdivision Block Lot Land Economic Area
WEST LAKE PARK 1ST FG 2 8 WEST LAKE AND BELAIR PARK

Property Address Property City Section Township Range
2215 MOUNTAIR LN GREELEY 13 05 66




Account Parcel Account Type Tax Year Buildings Actual Value Local Govt Assessed Value School Assessed Value
R2378386 095913211008 Residential 2026 1 377,212 23,580 26,590

Account Owner Name Address
R2378386 LANG JOCELYN L 2215 MOUNTAIR LN GREELEY, CO 806347549


Account Parcel Account Type Tax Year Buildings Actual Value Local Govt Assessed Value School Assessed Value
R2378386 095913211008 Residential 2026 1 377,212 23,580 26,590

Reception Rec Date Type Grantor Grantee Doc Fee Sale Date Sale Price
01749427 04-04-1978 WDN 0.00 01-01-1900 0
1614802 NA SUB SUBDIVISION WESTLAKE PARK 1ST FG 0.00 NA 0
2252329 06-05-1991 WD MEADS GEORGE D & MARJORIE F PICKERING THOMAS R & KATHLEEN 7.00 06-04-1991 70,000
2666292 01-12-1999 DTHC PICKERING THOMAS R & KATHLEEN M PICKERING KATHLEEN M 0.00 12-30-1998 0
3568390 07-25-2008 QCN PICKERING KATHLEEN M PICKERING KATHLEEN M TRUST 0.00 07-23-2008 0
3625173 05-26-2009 WD PICKERING KATHLEEN M TRUST MICHALIK ELI 14.00 05-22-2009 140,000
3862379 07-30-2012 QCN MICHALIK ELI MICHALIK ELI 0.00 07-24-2012 0
4201431 05-06-2016 WD MICHALIK ELI; MICHALIK JOANNA M IZZI NASH REGINALD MARK; NASH RENA A 22.75 05-05-2016 227,500
4376442 02-20-2018 WD NASH REGINALD MARK; NASH RENA A LANG JOCELYN L 27.20 02-13-2018 272,000



Account Parcel Account Type Tax Year Buildings Actual Value Local Govt Assessed Value School Assessed Value
R2378386 095913211008 Residential 2026 1 377,212 23,580 26,590

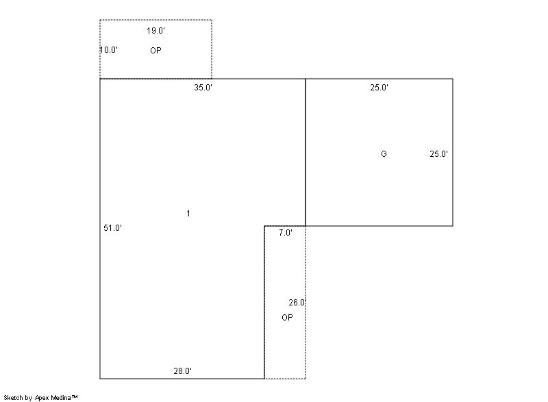
Building 1

AccountNo Building ID Occupancy
R2378386 1 Single Family Residential


ID Type NBHD Occupancy % Complete Bedrooms Baths
1 Residential 6G2031 Single Family Residential 100 3 2.00


ID Exterior Roof Cover Interior HVAC Perimeter Units Unit Type Make
1 Frame Masonry Veneer Composition Shingle Drywall Forced Air 0 0 NA NA


ID Square Ft Condo SF Total Basement SF Finished Basement SF Garage SF Carport SF Balcony SF Porch SF
1 1,603 0 0 0 625 0 0 372


Built As Details for Building 1
ID Built As Square Ft Year Built Stories Length Width
1.00 Ranch 1 Story 1,603 1974 1 0 0


Additional Details for Building 1
ID Detail Type Description Units
1 Add On Fireplace Wood 1.00
1 Fixture Full Bath 2.00
1 Garage Attached 625.00
1 Porch Slab Roof Ceil 372.00





Account Parcel Account Type Tax Year Buildings Actual Value Local Govt Assessed Value School Assessed Value
R2378386 095913211008 Residential 2026 1 377,212 23,580 26,590

Type Code Description Actual Value Local Govt Assessed Value School Assessed Value Acres Land SqFt
Improvement 1212 SINGLE FAMILY RESIDENTIAL IMPROVEMENTS 315,212 19,700 22,220 0.000 0
Land 1112 SINGLE FAMILY RESIDENTIAL-LAND 62,000 3,880 4,370 0.233 10,140
Totals - - 377,212 23,580 26,590 0.233 10,140


Account Parcel Account Type Tax Year Buildings Actual Value Local Govt Assessed Value School Assessed Value
R2378386 095913211008 Residential 2026 1 377,212 23,580 26,590

Tax Area District ID District Name Local Govt
Mill Levy
School
Mill Levy
Estimated
Taxes
0600 0700 AIMS JUNIOR COLLEGE 6.313 0.000 $148.86
0600 0411 GREELEY CITY 11.274 0.000 $265.84
0600 1050 HIGH PLAINS LIBRARY 3.044 0.000 $71.78
0600 0301 NORTHERN COLORADO WATER (NCW) 1.000 0.000 $23.58
0600 0206 SCHOOL DIST 6-GREELEY 0.000 47.615 $1,266.08
0600 0100 WELD COUNTY 15.956 0.000 $376.24
Total - - 37.587 47.615 $2,152.38


The estimate of tax is based on the prior year mill levy and the 2025 projected assessment rates. Mill levies and tax estimates will be updated yearly on December 22nd for the current year. Additional information can be found at https://assessor.weld.gov










Select Reports to Print: