Account: R2392386
April 4, 2026
| Account | Parcel | Account Type | Tax Year | Buildings | Actual Value | Local Govt Assessed Value | School Assessed Value |
|---|---|---|---|---|---|---|---|
| R2392386 | 095913219003 | Residential | 2026 | 1 | 352,325 | 22,030 | 24,840 |
| Legal |
|---|
| GR 2WL2-3 L3 BLK2 WEST LAKE PARK 2ND FG |
| Subdivision | Block | Lot | Land Economic Area |
|---|---|---|---|
| WEST LAKE PARK 2ND FG | 2 | 3 | WEST LAKE AND BELAIR PARK |
| Property Address | Property City | Section | Township | Range |
|---|---|---|---|---|
| 2300 33RD AVE | GREELEY | 13 | 05 | 66 |
| Account | Parcel | Account Type | Tax Year | Buildings | Actual Value | Local Govt Assessed Value | School Assessed Value |
|---|---|---|---|---|---|---|---|
| R2392386 | 095913219003 | Residential | 2026 | 1 | 352,325 | 22,030 | 24,840 |
| Account | Owner Name | Address |
|---|---|---|
| R2392386 | LOMA KIMBERLY | 2300 33RD AVE GREELEY, CO 806347523 |
| Account | Parcel | Account Type | Tax Year | Buildings | Actual Value | Local Govt Assessed Value | School Assessed Value |
|---|---|---|---|---|---|---|---|
| R2392386 | 095913219003 | Residential | 2026 | 1 | 352,325 | 22,030 | 24,840 |
| Reception | Rec Date | Type | Grantor | Grantee | Doc Fee | Sale Date | Sale Price |
|---|---|---|---|---|---|---|---|
| 01761314 | 07-25-1978 | WDN | 0.00 | 01-01-1900 | 0 | ||
| 1680590 | NA | SUB | SUBDIVISION | WEST LAKE PARK 2ND FG RPLT | 0.00 | NA | 0 |
| 3636597 | 07-15-2009 | WD | SCHOLFIELD DONALD L & SCHOLFIELD MARY E | NEVAREZ CESAR | 13.60 | 07-13-2009 | 136,000 |
| 4105399 | 05-07-2015 | QCN | NEVAREZ CESAR | LOMA LUIS | 0.00 | 04-08-2015 | 0 |
| 4356438 | 11-30-2017 | QCN | LOMA LUIS | SKUFCA MARK | 0.00 | 10-28-2017 | 0 |
| 4434031 | 09-26-2018 | WD | SKUFCA MARK | FRIDRICH JEFFREY A | 19.50 | 09-21-2018 | 195,000 |
| 4984057 | 09-23-2024 | QCN | FRIDRICH JEFFREY A | FRIDRICH LEAH | 0.00 | 09-23-2024 | 0 |
| 4993288 | 11-07-2024 | WD | FRIDRICH JEFFREY A; FRIDRICH LEAH | LOMA KIMBERLY | 37.00 | 10-28-2024 | 370,000 |
*If the hyperlink for the reception number does not work, try a manual search in the Clerk and Recorder records. Use the Grantor or Grantee in your search.
| Account | Parcel | Account Type | Tax Year | Buildings | Actual Value | Local Govt Assessed Value | School Assessed Value |
|---|---|---|---|---|---|---|---|
| R2392386 | 095913219003 | Residential | 2026 | 1 | 352,325 | 22,030 | 24,840 |
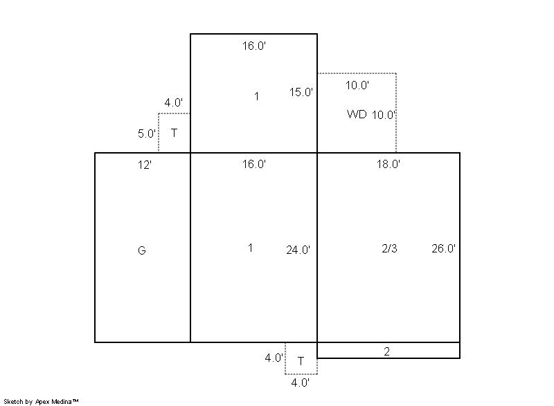
Building 1
| AccountNo | Building ID | Occupancy |
|---|---|---|
| R2392386 | 1 | Single Family Residential |
| ID | Type | NBHD | Occupancy | % Complete | Bedrooms | Baths |
|---|---|---|---|---|---|---|
| 1 | Residential | 6G2031 | Single Family Residential | 100 | 2 | 2.00 |
| ID | Exterior | Roof Cover | Interior | HVAC | Perimeter | Units | Unit Type | Make |
|---|---|---|---|---|---|---|---|---|
| 1 | Frame Hardboard | Composition Shingle | Drywall | Central Air to Air | 0 | 0 | NA | NA |
| ID | Square Ft | Condo SF | Total Basement SF | Finished Basement SF | Garage SF | Carport SF | Balcony SF | Porch SF |
|---|---|---|---|---|---|---|---|---|
| 1 | 1,524 | 0 | 0 | 0 | 288 | 0 | 0 | 36 |
| ID | Built As | Square Ft | Year Built | Stories | Length | Width |
|---|---|---|---|---|---|---|
| 1.00 | Split Level | 1,524 | 1977 | 1 | 0 | 0 |
| ID | Detail Type | Description | Units |
|---|---|---|---|
| 1 | Add On | Fireplace Gas | 1.00 |
| 1 | Add On | Heat Electric Baseboard | 255.00 |
| 1 | Fixture | Full Bath | 1.00 |
| 1 | Fixture | Half Bath | 1.00 |
| 1 | Garage | Attached | 288.00 |
| 1 | Porch | Open Slab | 36.00 |
| 1 | Porch | Wood Deck | 100.00 |
| 1 | Rough In | Rough In | 1.00 |
| Account | Parcel | Account Type | Tax Year | Buildings | Actual Value | Local Govt Assessed Value | School Assessed Value |
|---|---|---|---|---|---|---|---|
| R2392386 | 095913219003 | Residential | 2026 | 1 | 352,325 | 22,030 | 24,840 |
| Type | Code | Description | Actual Value | Local Govt Assessed Value | School Assessed Value | Acres | Land SqFt |
|---|---|---|---|---|---|---|---|
| Improvement | 1212 | SINGLE FAMILY RESIDENTIAL IMPROVEMENTS | 290,325 | 18,150 | 20,470 | 0.000 | 0 |
| Land | 1112 | SINGLE FAMILY RESIDENTIAL-LAND | 62,000 | 3,880 | 4,370 | 0.142 | 6,200 |
| Totals | - | - | 352,325 | 22,030 | 24,840 | 0.142 | 6,200 |
Comparable sales for your Residential or Commercial property may be found using our SALES SEARCH TOOL
Values are updated annually on May 1st for Real Property and June 15th for Personal Property and Oil and Gas.
| Account | Parcel | Account Type | Tax Year | Buildings | Actual Value | Local Govt Assessed Value | School Assessed Value |
|---|---|---|---|---|---|---|---|
| R2392386 | 095913219003 | Residential | 2026 | 1 | 352,325 | 22,030 | 24,840 |
| Tax Area | District ID | District Name | Local Govt Mill Levy |
School Mill Levy |
Estimated Taxes |
|---|---|---|---|---|---|
| 0600 | 0700 | AIMS JUNIOR COLLEGE | 6.313 | 0.000 | $139.08 |
| 0600 | 0411 | GREELEY CITY | 11.274 | 0.000 | $248.37 |
| 0600 | 1050 | HIGH PLAINS LIBRARY | 3.044 | 0.000 | $67.06 |
| 0600 | 0301 | NORTHERN COLORADO WATER (NCW) | 1.000 | 0.000 | $22.03 |
| 0600 | 0206 | SCHOOL DIST 6-GREELEY | 0.000 | 47.615 | $1,182.76 |
| 0600 | 0100 | WELD COUNTY | 15.956 | 0.000 | $351.51 |
| Total | - | - | 37.587 | 47.615 | $2,010.80 |
The estimate of tax is based on the prior year mill levy and the 2025 projected assessment rates. Mill levies and tax estimates will be updated yearly on December 22nd for the current year. Additional information can be found at https://assessor.weld.gov



