Account: R2397603

April 1, 2026

Account Parcel Account Type Tax Year Buildings Actual Value Local Govt Assessed Value School Assessed Value
R2397603 131313302014 Residential 2026 1 777,565 48,600 54,820

Legal
FRE JF L14 BLK2 JOHNSON FARM

Subdivision Block Lot Land Economic Area
JOHNSON FARM SUB 2 14 JOHNSON FARMS

Property Address Property City Section Township Range
9036 ELDORADO AVE FREDERICK 13 02 68




Account Parcel Account Type Tax Year Buildings Actual Value Local Govt Assessed Value School Assessed Value
R2397603 131313302014 Residential 2026 1 777,565 48,600 54,820

Account Owner Name Address
R2397603 MCNICHOL LINDSEY 9036 ELDORADO AVE FREDERICK, CO 805045802


Account Parcel Account Type Tax Year Buildings Actual Value Local Govt Assessed Value School Assessed Value
R2397603 131313302014 Residential 2026 1 777,565 48,600 54,820

Reception Rec Date Type Grantor Grantee Doc Fee Sale Date Sale Price
3044661 NA SUB SUBDIVISION JOHNSON FARM 0.00 NA 0
3292942 06-07-2005 WD FARM LLC MARQUIS HOMES INC 7.00 05-31-2005 70,000
3356662 01-23-2006 WD MARQUIS HOMES INC HARPER JAY W & 39.54 01-13-2006 395,400
3699926 06-17-2010 PTD HARPER JAY W FEDERAL HOME LOAN MORTGAGE CORPORATION 0.00 06-15-2010 0
3732713 11-16-2010 SWD FEDERAL HOME LOAN MORTGAGE CORPORATION ENGDAHL JOHN 28.99 10-15-2010 289,900
4365096 01-04-2018 WD ENGDAHL JOHN FLINDERS ROGER MARC 43.99 01-03-2017 439,900
4647962 11-05-2020 WD FLINDERS ROGER MARC MCNICHOL LINDSEY 53.00 11-02-2020 530,000



Account Parcel Account Type Tax Year Buildings Actual Value Local Govt Assessed Value School Assessed Value
R2397603 131313302014 Residential 2026 1 777,565 48,600 54,820

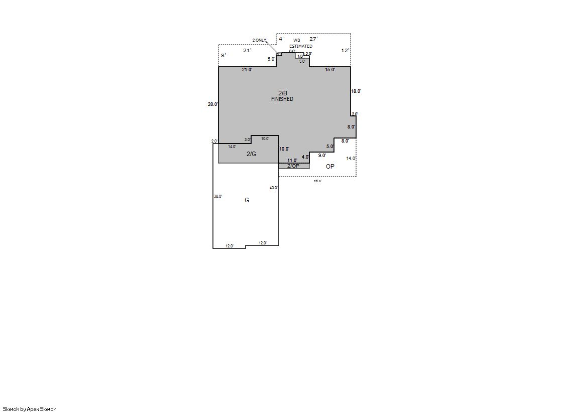
Building 1

AccountNo Building ID Occupancy
R2397603 1 Single Family Residential


ID Type NBHD Occupancy % Complete Bedrooms Baths
1 Residential 3K2026 Single Family Residential 100 6 5.00


ID Exterior Roof Cover Interior HVAC Perimeter Units Unit Type Make
1 Frame Siding Composition Shingle Drywall Central Air to Air 370 0 NA NA


ID Square Ft Condo SF Total Basement SF Finished Basement SF Garage SF Carport SF Balcony SF Porch SF
1 3,156 0 1,478 1,478 930 0 436 248


Built As Details for Building 1
ID Built As Square Ft Year Built Stories Length Width
1.00 2 Story 3,156 2005 2 0 0


Additional Details for Building 1
ID Detail Type Description Units
1 Add On Fireplace Gas 1.00
1 Balcony Wood Wood Fin 436.00
1 Basement Finished 1478.00
1 Basement Total Basement SF 1478.00
1 Fixture Full Bath 5.00
1 Garage Attached 930.00
1 Porch Slab Roof Ceil 248.00





Account Parcel Account Type Tax Year Buildings Actual Value Local Govt Assessed Value School Assessed Value
R2397603 131313302014 Residential 2026 1 777,565 48,600 54,820

Type Code Description Actual Value Local Govt Assessed Value School Assessed Value Acres Land SqFt
Improvement 1212 SINGLE FAMILY RESIDENTIAL IMPROVEMENTS 662,565 41,410 46,710 0.000 0
Land 1112 SINGLE FAMILY RESIDENTIAL-LAND 115,000 7,190 8,110 0.209 9,100
Totals - - 777,565 48,600 54,820 0.209 9,100


Account Parcel Account Type Tax Year Buildings Actual Value Local Govt Assessed Value School Assessed Value
R2397603 131313302014 Residential 2026 1 777,565 48,600 54,820

Tax Area District ID District Name Local Govt
Mill Levy
School
Mill Levy
Estimated
Taxes
1459 0900 CARBON VALLEY REC 4.427 0.000 $215.15
1459 0408 FREDERICK TOWN 6.555 0.000 $318.57
1459 0507 FREDERICK-FIRESTONE FIRE 15.559 0.000 $756.17
1459 1050 HIGH PLAINS LIBRARY 3.044 0.000 $147.94
1459 0301 NORTHERN COLORADO WATER (NCW) 1.000 0.000 $48.60
1459 0213 SCHOOL DIST RE1J-LONGMONT 0.000 57.717 $3,164.05
1459 0620 ST VRAIN SANITATION 0.316 0.000 $15.36
1459 0100 WELD COUNTY 15.956 0.000 $775.46
Total - - 46.857 57.717 $5,441.30


The estimate of tax is based on the prior year mill levy and the 2025 projected assessment rates. Mill levies and tax estimates will be updated yearly on December 22nd for the current year. Additional information can be found at https://assessor.weld.gov










Select Reports to Print: