Account: R2409003

April 1, 2026

Account Parcel Account Type Tax Year Buildings Actual Value Local Govt Assessed Value School Assessed Value
R2409003 131313309010 Residential 2026 1 593,758 37,110 41,860

Legal
FRE JF L10 BLK9 JOHNSON FARM

Subdivision Block Lot Land Economic Area
JOHNSON FARM SUB 9 10 JOHNSON FARMS

Property Address Property City Section Township Range
9030 GRAND MESA AVE FREDERICK 13 02 68




Account Parcel Account Type Tax Year Buildings Actual Value Local Govt Assessed Value School Assessed Value
R2409003 131313309010 Residential 2026 1 593,758 37,110 41,860

Account Owner Name Address
R2409003 WATKINS WILLIAM HARRISON JR LIVING TRUST 9030 GRAND MESA AVE FREDERICK, CO 805045816
R2409003 WATKINS NANCI


Account Parcel Account Type Tax Year Buildings Actual Value Local Govt Assessed Value School Assessed Value
R2409003 131313309010 Residential 2026 1 593,758 37,110 41,860

Reception Rec Date Type Grantor Grantee Doc Fee Sale Date Sale Price
3044661 NA SUB SUBDIVISION JOHNSON FARM 0.00 NA 0
3423480 09-29-2006 WD FARM LLC MARQUIS INVESTMENTS LLC 7.20 09-26-2006 72,000
3484965 06-21-2007 WD MARQUIS INVESTMENTS LLC WATKINS WILLIAM & 33.44 06-08-2007 334,400
4882516 02-21-2023 QCNE WATKINS WILLIAM WATKINS WILLIAM HARRISON JR LIVING TRUST 0.00 02-20-2023 0



Account Parcel Account Type Tax Year Buildings Actual Value Local Govt Assessed Value School Assessed Value
R2409003 131313309010 Residential 2026 1 593,758 37,110 41,860

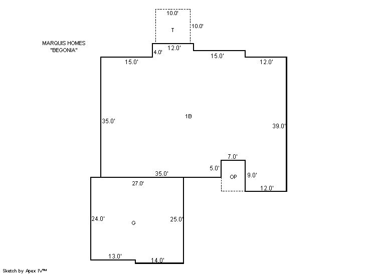
Building 1

AccountNo Building ID Occupancy
R2409003 1 Single Family Residential


ID Type NBHD Occupancy % Complete Bedrooms Baths
1 Residential 3K2026 Single Family Residential 100 3 2.00


ID Exterior Roof Cover Interior HVAC Perimeter Units Unit Type Make
1 Frame Hardboard Composition Shingle Drywall Central Air to Air 0 0 NA NA


ID Square Ft Condo SF Total Basement SF Finished Basement SF Garage SF Carport SF Balcony SF Porch SF
1 1,981 0 1,981 0 662 0 0 100


Built As Details for Building 1
ID Built As Square Ft Year Built Stories Length Width
1.00 Ranch 1 Story 1,981 2007 1 0 0


Additional Details for Building 1
ID Detail Type Description Units
1 Add On Fireplace Gas 1.00
1 Basement Total Basement SF 1981.00
1 Fixture Full Bath 2.00
1 Garage Attached 662.00
1 Porch Open Slab 100.00
1 Porch Slab Roof Ceil 63.00
1 Rough In Rough In 1.00





Account Parcel Account Type Tax Year Buildings Actual Value Local Govt Assessed Value School Assessed Value
R2409003 131313309010 Residential 2026 1 593,758 37,110 41,860

Type Code Description Actual Value Local Govt Assessed Value School Assessed Value Acres Land SqFt
Improvement 1212 SINGLE FAMILY RESIDENTIAL IMPROVEMENTS 478,758 29,920 33,750 0.000 0
Land 1112 SINGLE FAMILY RESIDENTIAL-LAND 115,000 7,190 8,110 0.188 8,195
Totals - - 593,758 37,110 41,860 0.188 8,195


Account Parcel Account Type Tax Year Buildings Actual Value Local Govt Assessed Value School Assessed Value
R2409003 131313309010 Residential 2026 1 593,758 37,110 41,860

Tax Area District ID District Name Local Govt
Mill Levy
School
Mill Levy
Estimated
Taxes
1459 0900 CARBON VALLEY REC 4.427 0.000 $164.29
1459 0408 FREDERICK TOWN 6.555 0.000 $243.26
1459 0507 FREDERICK-FIRESTONE FIRE 15.559 0.000 $577.39
1459 1050 HIGH PLAINS LIBRARY 3.044 0.000 $112.96
1459 0301 NORTHERN COLORADO WATER (NCW) 1.000 0.000 $37.11
1459 0213 SCHOOL DIST RE1J-LONGMONT 0.000 57.717 $2,416.03
1459 0620 ST VRAIN SANITATION 0.316 0.000 $11.73
1459 0100 WELD COUNTY 15.956 0.000 $592.13
Total - - 46.857 57.717 $4,154.90


The estimate of tax is based on the prior year mill levy and the 2025 projected assessment rates. Mill levies and tax estimates will be updated yearly on December 22nd for the current year. Additional information can be found at https://assessor.weld.gov










Select Reports to Print: