Account: R2415003

April 1, 2026

Account Parcel Account Type Tax Year Buildings Actual Value Local Govt Assessed Value School Assessed Value
R2415003 131313315004 Residential 2026 1 534,415 33,400 37,680

Legal
FRE JF L4 BLK15 JOHNSON FARM

Subdivision Block Lot Land Economic Area
JOHNSON FARM SUB 15 4 JOHNSON FARMS

Property Address Property City Section Township Range
9011 ELDORADO AVE FREDERICK 13 02 68




Account Parcel Account Type Tax Year Buildings Actual Value Local Govt Assessed Value School Assessed Value
R2415003 131313315004 Residential 2026 1 534,415 33,400 37,680

Account Owner Name Address
R2415003 RANDALL MICHAEL R 9011 ELDORADO AVE FREDERICK, CO 805045803
R2415003 RANDALL BETTY JO


Account Parcel Account Type Tax Year Buildings Actual Value Local Govt Assessed Value School Assessed Value
R2415003 131313315004 Residential 2026 1 534,415 33,400 37,680

Reception Rec Date Type Grantor Grantee Doc Fee Sale Date Sale Price
3044661 NA SUB SUBDIVISION JOHNSON FARM 0.00 NA 0
3102505 09-03-2003 WD FARM LLC MCHUGH HOMES INC 7.50 08-29-2003 75,000
3234252 11-09-2004 WD MCHUGH HOMES INC HOWLAND ANTHONY 27.00 10-28-2004 270,000
3862867 07-31-2012 PTD HOWLAND ANTHONY WELLS FARGO BANK N A 0.00 07-30-2012 0
3864637 08-08-2012 SWDN WELLS FARGO BANK N A FEDERAL HOME LOAN MORTGAGE CORPORATION 0.00 08-07-2012 0
3910993 02-19-2013 SWD FEDERAL HOME LOAN MORTGAGE CORPORATION AULTMAN ROBERT 22.00 01-22-2013 220,000
4238926 09-22-2016 WD AULTMAN ROBERT JWJW LLC 28.90 09-19-2016 289,000
4509325 07-29-2019 SWD JWJW LLC RANDALL MICHAEL R 37.20 07-25-2019 372,000
4517887 08-27-2019 QCN RANDALL MICHAEL R RANDALL MICHAEL R; RANDALL BETTY JO 0.00 08-26-2019 0



Account Parcel Account Type Tax Year Buildings Actual Value Local Govt Assessed Value School Assessed Value
R2415003 131313315004 Residential 2026 1 534,415 33,400 37,680

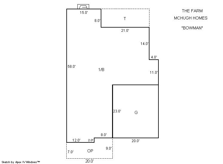
Building 1

AccountNo Building ID Occupancy
R2415003 1 Single Family Residential


ID Type NBHD Occupancy % Complete Bedrooms Baths
1 Residential 3K2026 Single Family Residential 100 2 2.00


ID Exterior Roof Cover Interior HVAC Perimeter Units Unit Type Make
1 Frame Vinyl Composition Shingle Drywall Central Air to Air 0 0 NA NA


ID Square Ft Condo SF Total Basement SF Finished Basement SF Garage SF Carport SF Balcony SF Porch SF
1 1,548 0 1,548 0 460 0 0 156


Built As Details for Building 1
ID Built As Square Ft Year Built Stories Length Width
1.00 Ranch 1 Story 1,548 2004 1 0 0


Additional Details for Building 1
ID Detail Type Description Units
1 Add On Fireplace Gas 1.00
1 Basement Total Basement SF 1548.00
1 Fixture Full Bath 2.00
1 Garage Attached 460.00
1 Porch Open Slab 168.00
1 Porch Slab Roof Ceil 156.00
1 Rough In Rough In 1.00





Account Parcel Account Type Tax Year Buildings Actual Value Local Govt Assessed Value School Assessed Value
R2415003 131313315004 Residential 2026 1 534,415 33,400 37,680

Type Code Description Actual Value Local Govt Assessed Value School Assessed Value Acres Land SqFt
Improvement 1212 SINGLE FAMILY RESIDENTIAL IMPROVEMENTS 419,415 26,210 29,570 0.000 0
Land 1112 SINGLE FAMILY RESIDENTIAL-LAND 115,000 7,190 8,110 0.217 9,466
Totals - - 534,415 33,400 37,680 0.217 9,466


Account Parcel Account Type Tax Year Buildings Actual Value Local Govt Assessed Value School Assessed Value
R2415003 131313315004 Residential 2026 1 534,415 33,400 37,680

Tax Area District ID District Name Local Govt
Mill Levy
School
Mill Levy
Estimated
Taxes
1459 0900 CARBON VALLEY REC 4.427 0.000 $147.86
1459 0408 FREDERICK TOWN 6.555 0.000 $218.94
1459 0507 FREDERICK-FIRESTONE FIRE 15.559 0.000 $519.67
1459 1050 HIGH PLAINS LIBRARY 3.044 0.000 $101.67
1459 0301 NORTHERN COLORADO WATER (NCW) 1.000 0.000 $33.40
1459 0213 SCHOOL DIST RE1J-LONGMONT 0.000 57.717 $2,174.78
1459 0620 ST VRAIN SANITATION 0.316 0.000 $10.55
1459 0100 WELD COUNTY 15.956 0.000 $532.93
Total - - 46.857 57.717 $3,739.80


The estimate of tax is based on the prior year mill levy and the 2025 projected assessment rates. Mill levies and tax estimates will be updated yearly on December 22nd for the current year. Additional information can be found at https://assessor.weld.gov










Select Reports to Print: