Account: R2416503
April 1, 2026
| Account | Parcel | Account Type | Tax Year | Buildings | Actual Value | Local Govt Assessed Value | School Assessed Value |
|---|---|---|---|---|---|---|---|
| R2416503 | 131313316006 | Residential | 2026 | 1 | 556,391 | 34,780 | 39,230 |
| Legal |
|---|
| FRE JF L6 BLK16 JOHNSON FARM |
| Subdivision | Block | Lot | Land Economic Area |
|---|---|---|---|
| JOHNSON FARM SUB | 16 | 6 | JOHNSON FARMS |
| Property Address | Property City | Section | Township | Range |
|---|---|---|---|---|
| 9010 ELDORADO AVE | FREDERICK | 13 | 02 | 68 |
| Account | Parcel | Account Type | Tax Year | Buildings | Actual Value | Local Govt Assessed Value | School Assessed Value |
|---|---|---|---|---|---|---|---|
| R2416503 | 131313316006 | Residential | 2026 | 1 | 556,391 | 34,780 | 39,230 |
| Account | Owner Name | Address |
|---|---|---|
| R2416503 | SANDERS DYLAN | 9010 ELDORADO AVE FREDERICK, CO 805045802 |
| Account | Parcel | Account Type | Tax Year | Buildings | Actual Value | Local Govt Assessed Value | School Assessed Value |
|---|---|---|---|---|---|---|---|
| R2416503 | 131313316006 | Residential | 2026 | 1 | 556,391 | 34,780 | 39,230 |
| Reception | Rec Date | Type | Grantor | Grantee | Doc Fee | Sale Date | Sale Price |
|---|---|---|---|---|---|---|---|
| 3044661 | NA | SUB | SUBDIVISION | JOHNSON FARM | 0.00 | NA | 0 |
| 3097659 | 08-20-2003 | WD | FARM LLC | MARQUIS HOMES INC | 19.50 | 08-18-2003 | 195,000 |
| 3110899 | 09-29-2003 | WD | MARQUIS HOMES INC | WESTERN STATES HOMES INC | 7.50 | 08-29-2003 | 75,000 |
| 3648180 | 09-11-2009 | PTD | WELD CO PUBLIC TRUSTEE | THURSTON JUSTIN ANDREW | 0.00 | 09-11-2009 | 0 |
| 3919343 | 03-22-2013 | WDE | THURSTON JUSTIN ANDREW | ESPINOZA DON L | 25.00 | 03-19-2013 | 250,000 |
| 4257569 | 11-30-2016 | WDN | ESPINOZA DON L; ESPINOZA JOANN R | ESPINOZA DON L; ESPINOZA JOANN R; ESPINOZA KENNY JOE | 0.00 | 09-13-2016 | 0 |
| 4644756 | 10-28-2020 | WD | ESPINOZA JOANN R; ESPINOZA KENNY JOE; ESPINOZA DON L | SANDERS DYLAN; DONOHO ERIN | 45.00 | 10-23-2020 | 450,000 |
| 4767483 | 10-20-2021 | SWDN | DONOHO ERIN | SANDERS DYLAN | 0.00 | 10-13-2021 | 0 |
*If the hyperlink for the reception number does not work, try a manual search in the Clerk and Recorder records. Use the Grantor or Grantee in your search.
| Account | Parcel | Account Type | Tax Year | Buildings | Actual Value | Local Govt Assessed Value | School Assessed Value |
|---|---|---|---|---|---|---|---|
| R2416503 | 131313316006 | Residential | 2026 | 1 | 556,391 | 34,780 | 39,230 |
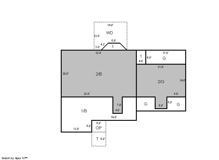
Building 1
| AccountNo | Building ID | Occupancy |
|---|---|---|
| R2416503 | 1 | Single Family Residential |
| ID | Type | NBHD | Occupancy | % Complete | Bedrooms | Baths |
|---|---|---|---|---|---|---|
| 1 | Residential | 3K2026 | Single Family Residential | 100 | 4 | 3.00 |
| ID | Exterior | Roof Cover | Interior | HVAC | Perimeter | Units | Unit Type | Make |
|---|---|---|---|---|---|---|---|---|
| 1 | Frame Stucco | Composition Shingle | Drywall | Central Air to Air | 0 | 0 | NA | NA |
| ID | Square Ft | Condo SF | Total Basement SF | Finished Basement SF | Garage SF | Carport SF | Balcony SF | Porch SF |
|---|---|---|---|---|---|---|---|---|
| 1 | 2,060 | 0 | 1,025 | 0 | 522 | 0 | 0 | 144 |
| ID | Built As | Square Ft | Year Built | Stories | Length | Width |
|---|---|---|---|---|---|---|
| 1.00 | 2 Story | 2,060 | 2004 | 1 | 0 | 0 |
| ID | Detail Type | Description | Units |
|---|---|---|---|
| 1 | Add On | Fireplace Gas | 1.00 |
| 1 | Basement | Total Basement SF | 1025.00 |
| 1 | Fixture | Full Bath | 2.00 |
| 1 | Fixture | Half Bath | 1.00 |
| 1 | Garage | Attached | 522.00 |
| 1 | Porch | Slab Roof Ceil | 30.00 |
| 1 | Porch | Slab w/Steps | 36.00 |
| 1 | Porch | Wood Deck | 144.00 |
| 1 | Rough In | Rough In | 1.00 |
| Account | Parcel | Account Type | Tax Year | Buildings | Actual Value | Local Govt Assessed Value | School Assessed Value |
|---|---|---|---|---|---|---|---|
| R2416503 | 131313316006 | Residential | 2026 | 1 | 556,391 | 34,780 | 39,230 |
| Type | Code | Description | Actual Value | Local Govt Assessed Value | School Assessed Value | Acres | Land SqFt |
|---|---|---|---|---|---|---|---|
| Improvement | 1212 | SINGLE FAMILY RESIDENTIAL IMPROVEMENTS | 441,391 | 27,590 | 31,120 | 0.000 | 0 |
| Land | 1112 | SINGLE FAMILY RESIDENTIAL-LAND | 115,000 | 7,190 | 8,110 | 0.215 | 9,380 |
| Totals | - | - | 556,391 | 34,780 | 39,230 | 0.215 | 9,380 |
Comparable sales for your Residential or Commercial property may be found using our SALES SEARCH TOOL
Values are updated annually on May 1st for Real Property and June 15th for Personal Property and Oil and Gas.
| Account | Parcel | Account Type | Tax Year | Buildings | Actual Value | Local Govt Assessed Value | School Assessed Value |
|---|---|---|---|---|---|---|---|
| R2416503 | 131313316006 | Residential | 2026 | 1 | 556,391 | 34,780 | 39,230 |
| Tax Area | District ID | District Name | Local Govt Mill Levy |
School Mill Levy |
Estimated Taxes |
|---|---|---|---|---|---|
| 1459 | 0900 | CARBON VALLEY REC | 4.427 | 0.000 | $153.97 |
| 1459 | 0408 | FREDERICK TOWN | 6.555 | 0.000 | $227.98 |
| 1459 | 0507 | FREDERICK-FIRESTONE FIRE | 15.559 | 0.000 | $541.14 |
| 1459 | 1050 | HIGH PLAINS LIBRARY | 3.044 | 0.000 | $105.87 |
| 1459 | 0301 | NORTHERN COLORADO WATER (NCW) | 1.000 | 0.000 | $34.78 |
| 1459 | 0213 | SCHOOL DIST RE1J-LONGMONT | 0.000 | 57.717 | $2,264.24 |
| 1459 | 0620 | ST VRAIN SANITATION | 0.316 | 0.000 | $10.99 |
| 1459 | 0100 | WELD COUNTY | 15.956 | 0.000 | $554.95 |
| Total | - | - | 46.857 | 57.717 | $3,893.92 |
The estimate of tax is based on the prior year mill levy and the 2025 projected assessment rates. Mill levies and tax estimates will be updated yearly on December 22nd for the current year. Additional information can be found at https://assessor.weld.gov



