Account: R2422286

April 1, 2026

Account Parcel Account Type Tax Year Buildings Actual Value Local Govt Assessed Value School Assessed Value
R2422286 095913324019 Residential 2026 1 395,418 24,720 27,880

Legal
GR 2WL2-19 L19 BLK2 WEST LAKE PARK 2ND FILING

Subdivision Block Lot Land Economic Area
WEST LAKE PARK 2ND FG 2 19 WEST LAKE AND BELAIR PARK

Property Address Property City Section Township Range
3404 W 24TH ST GREELEY 13 05 66




Account Parcel Account Type Tax Year Buildings Actual Value Local Govt Assessed Value School Assessed Value
R2422286 095913324019 Residential 2026 1 395,418 24,720 27,880

Account Owner Name Address
R2422286 ALLISON SHIRLEY 2420 22ND AVE GREELEY, CO 806318154


Account Parcel Account Type Tax Year Buildings Actual Value Local Govt Assessed Value School Assessed Value
R2422286 095913324019 Residential 2026 1 395,418 24,720 27,880

Reception Rec Date Type Grantor Grantee Doc Fee Sale Date Sale Price
01962045 04-06-1984 WDN ORNELAS MICHAEL ORNELAS NORMA ELIZABETH 0.00 01-30-1984 0
1680590 NA SUB SUBDIVISION WEST LAKE PARK 2ND FG RPLT 0.00 NA 0
1770690 10-24-1978 WD MCMULLEN RICHARD J II; MCMULLEN WANDA JOYCE ORNELAS MICHAEL; ORNELAS NORMA ELIZABETH 5.60 10-23-1978 56,000
2492932 05-24-1996 WD ORNELAS NORMA ELIZABETH WEBER JOHN G & DOROTHY J 9.50 05-10-1996 95,000
2504985 08-07-1996 WD WEBER JOHN G & DOROTHY J CRULL TERRY ALAN & JOAN LOUISE 11.29 08-06-1996 112,900
3498744 08-22-2007 WD CRULL TERRY ALAN & JOAN LOUISE MAJIA JOSE M 14.83 08-20-2007 148,300
3629719 06-12-2009 PTD WELD COUNTY PUBLIC TRUSTEE FEDERAL HOME LOAN MORTGAGE CORPORATION 0.00 05-13-2009 0
3644866 08-25-2009 SWD FEDERAL HOME LOAN MORTGAGE CORPORATION ALLISON SHIRLEY 12.00 08-20-2009 120,000
4513617 08-12-2019 DTHC ALLISON JOHN MELVIN ALLISON SHIRLEY FLOT 0.00 07-11-2019 0



Account Parcel Account Type Tax Year Buildings Actual Value Local Govt Assessed Value School Assessed Value
R2422286 095913324019 Residential 2026 1 395,418 24,720 27,880

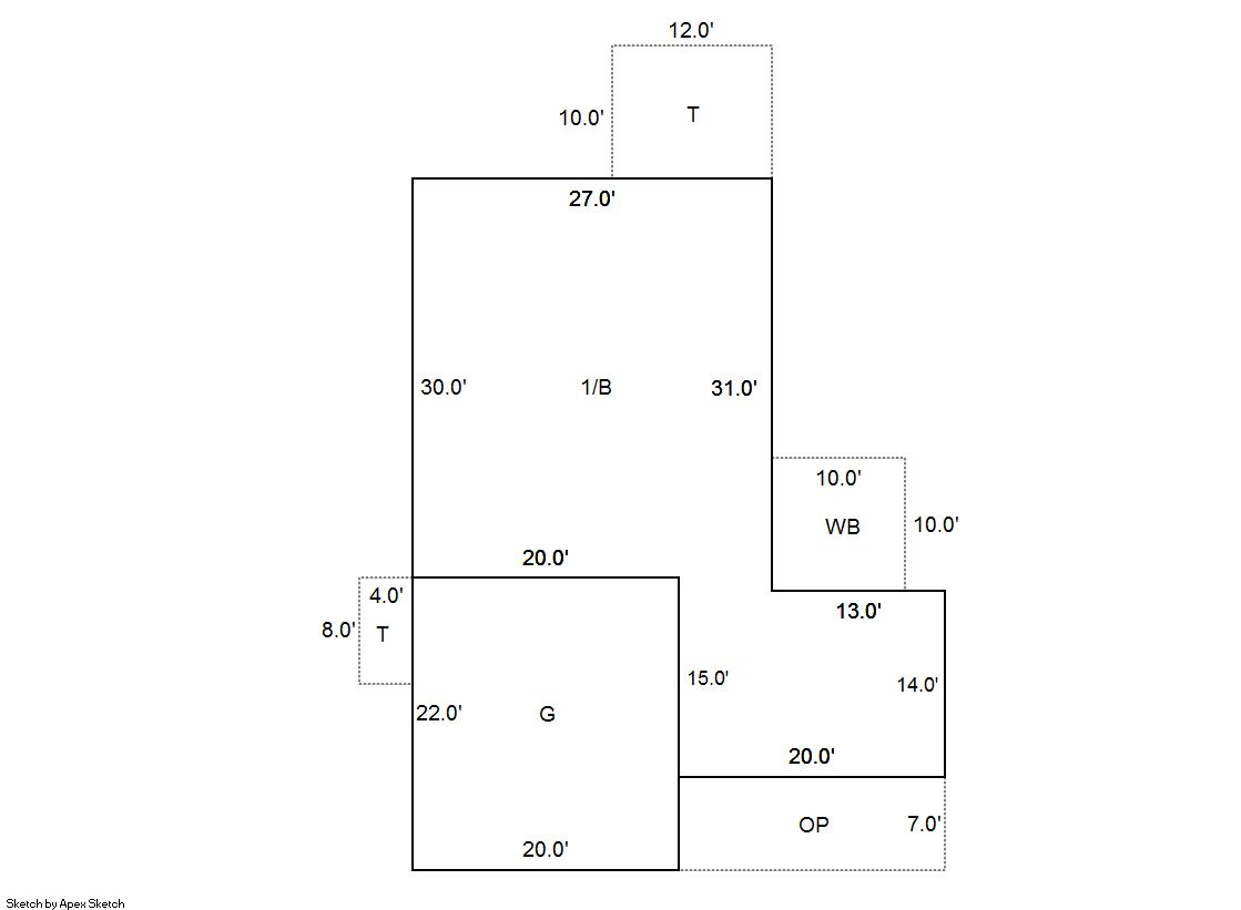
Building 1

AccountNo Building ID Occupancy
R2422286 1 Single Family Residential


ID Type NBHD Occupancy % Complete Bedrooms Baths
1 Residential 6G2031 Single Family Residential 100 4 3.00


ID Exterior Roof Cover Interior HVAC Perimeter Units Unit Type Make
1 Frame Hardboard Composition Shingle Drywall Forced Air 170 0 NA NA


ID Square Ft Condo SF Total Basement SF Finished Basement SF Garage SF Carport SF Balcony SF Porch SF
1 1,097 0 1,097 1,097 440 0 100 140


Built As Details for Building 1
ID Built As Square Ft Year Built Stories Length Width
1.00 Ranch 1 Story 1,097 1976 1 0 0


Additional Details for Building 1
ID Detail Type Description Units
1 Balcony Wood Wood Fin 100.00
1 Basement Finished 1097.00
1 Basement Total Basement SF 1097.00
1 Basement Walkout 1.00
1 Fixture Full Bath 2.00
1 Fixture Half Bath 1.00
1 Garage Attached 440.00
1 Porch Open Slab 152.00
1 Porch Slab Roof Ceil 140.00





Account Parcel Account Type Tax Year Buildings Actual Value Local Govt Assessed Value School Assessed Value
R2422286 095913324019 Residential 2026 1 395,418 24,720 27,880

Type Code Description Actual Value Local Govt Assessed Value School Assessed Value Acres Land SqFt
Improvement 1212 SINGLE FAMILY RESIDENTIAL IMPROVEMENTS 333,418 20,840 23,510 0.000 0
Land 1112 SINGLE FAMILY RESIDENTIAL-LAND 62,000 3,880 4,370 0.242 10,555
Totals - - 395,418 24,720 27,880 0.242 10,555


Account Parcel Account Type Tax Year Buildings Actual Value Local Govt Assessed Value School Assessed Value
R2422286 095913324019 Residential 2026 1 395,418 24,720 27,880

Tax Area District ID District Name Local Govt
Mill Levy
School
Mill Levy
Estimated
Taxes
0600 0700 AIMS JUNIOR COLLEGE 6.313 0.000 $156.06
0600 0411 GREELEY CITY 11.274 0.000 $278.69
0600 1050 HIGH PLAINS LIBRARY 3.044 0.000 $75.25
0600 0301 NORTHERN COLORADO WATER (NCW) 1.000 0.000 $24.72
0600 0206 SCHOOL DIST 6-GREELEY 0.000 47.615 $1,327.51
0600 0100 WELD COUNTY 15.956 0.000 $394.43
Total - - 37.587 47.615 $2,256.66


The estimate of tax is based on the prior year mill levy and the 2025 projected assessment rates. Mill levies and tax estimates will be updated yearly on December 22nd for the current year. Additional information can be found at https://assessor.weld.gov










Select Reports to Print: