Account: R2424386

April 4, 2026

Account Parcel Account Type Tax Year Buildings Actual Value Local Govt Assessed Value School Assessed Value
R2424386 095913325019 Residential 2026 1 349,082 21,820 24,610

Legal
GR 3WL1-7 L7 BLK1 WEST LAKE PARK 3RD FILING

Subdivision Block Lot Land Economic Area
WEST LAKE PARK 3RD FG 1 7 WEST LAKE AND BELAIR PARK

Property Address Property City Section Township Range
2400 33RD AVE GREELEY 13 05 66




Account Parcel Account Type Tax Year Buildings Actual Value Local Govt Assessed Value School Assessed Value
R2424386 095913325019 Residential 2026 1 349,082 21,820 24,610

Account Owner Name Address
R2424386 HAUPT TIMOTHY 1829 74TH AVE GREELEY, CO 806348612


Account Parcel Account Type Tax Year Buildings Actual Value Local Govt Assessed Value School Assessed Value
R2424386 095913325019 Residential 2026 1 349,082 21,820 24,610

Reception Rec Date Type Grantor Grantee Doc Fee Sale Date Sale Price
02006962 04-24-1985 WD MATHEWS MARILYN; MATHEWS VIRGIL J JR CRIER KATHLEEN A; HUNER BARBARA J 6.29 04-22-1985 62,900
02100147 05-19-1987 WD CRIER KATHLEEN A; HUNER BARBARA J WEBER ALLEN L 14.55 05-15-1987 145,500
1719739 NA SUB SUBDIVISION WEST LAKE PARK 3RD FG 0.00 NA 0
2165609 12-20-1988 WD WEBER ALLEN L ANDREWS HARRY A 5.70 12-20-1988 57,000
2260199 08-20-1991 WD ANDREWS HARRY A BROWN STEPHEN R & SUZANNE HOEN 6.10 08-20-1991 61,000
3788684 08-26-2011 DTHC BROWN STEPHEN RALPH BROWN STEPHEN RALPH 0.00 07-02-2011 0
3931279 05-10-2013 WD BROWN SUZANNE HOENSHELL HAUPT TIMOTHY R 12.60 05-10-2013 126,000



Account Parcel Account Type Tax Year Buildings Actual Value Local Govt Assessed Value School Assessed Value
R2424386 095913325019 Residential 2026 1 349,082 21,820 24,610

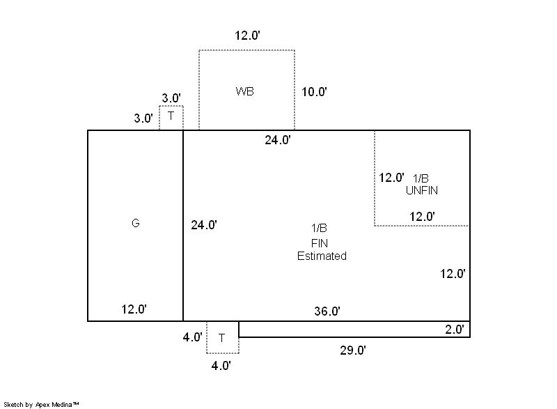
Building 1

AccountNo Building ID Occupancy
R2424386 1 Single Family Residential


ID Type NBHD Occupancy % Complete Bedrooms Baths
1 Residential 6G2031 Single Family Residential 100 4 2.00


ID Exterior Roof Cover Interior HVAC Perimeter Units Unit Type Make
1 Frame Hardboard Composition Shingle Drywall Forced Air 0 0 NA NA


ID Square Ft Condo SF Total Basement SF Finished Basement SF Garage SF Carport SF Balcony SF Porch SF
1 922 0 864 720 288 0 120 25


Built As Details for Building 1
ID Built As Square Ft Year Built Stories Length Width
1.00 Bi Level 922 1978 2 0 0


Additional Details for Building 1
ID Detail Type Description Units
1 Balcony Wood Wood Fin 120.00
1 Basement Finished 720.00
1 Basement Total Basement SF 864.00
1 Fixture Full Bath 2.00
1 Garage Attached 288.00
1 Porch Open Slab 25.00





Account Parcel Account Type Tax Year Buildings Actual Value Local Govt Assessed Value School Assessed Value
R2424386 095913325019 Residential 2026 1 349,082 21,820 24,610

Type Code Description Actual Value Local Govt Assessed Value School Assessed Value Acres Land SqFt
Improvement 1212 SINGLE FAMILY RESIDENTIAL IMPROVEMENTS 287,082 17,940 20,240 0.000 0
Land 1112 SINGLE FAMILY RESIDENTIAL-LAND 62,000 3,880 4,370 0.181 7,903
Totals - - 349,082 21,820 24,610 0.181 7,903


Account Parcel Account Type Tax Year Buildings Actual Value Local Govt Assessed Value School Assessed Value
R2424386 095913325019 Residential 2026 1 349,082 21,820 24,610

Tax Area District ID District Name Local Govt
Mill Levy
School
Mill Levy
Estimated
Taxes
0600 0700 AIMS JUNIOR COLLEGE 6.313 0.000 $137.75
0600 0411 GREELEY CITY 11.274 0.000 $246.00
0600 1050 HIGH PLAINS LIBRARY 3.044 0.000 $66.42
0600 0301 NORTHERN COLORADO WATER (NCW) 1.000 0.000 $21.82
0600 0206 SCHOOL DIST 6-GREELEY 0.000 47.615 $1,171.81
0600 0100 WELD COUNTY 15.956 0.000 $348.16
Total - - 37.587 47.615 $1,991.95


The estimate of tax is based on the prior year mill levy and the 2025 projected assessment rates. Mill levies and tax estimates will be updated yearly on December 22nd for the current year. Additional information can be found at https://assessor.weld.gov










Select Reports to Print: