Account: R2426986
April 5, 2026
| Account | Parcel | Account Type | Tax Year | Buildings | Actual Value | Local Govt Assessed Value | School Assessed Value |
|---|---|---|---|---|---|---|---|
| R2426986 | 095913328007 | Residential | 2026 | 2 | 429,262 | 26,830 | 30,260 |
| Legal |
|---|
| GR 3WL4-1 L1 BLK4 WEST LAKE PARK 3RD FILING |
| Subdivision | Block | Lot | Land Economic Area |
|---|---|---|---|
| WEST LAKE PARK 3RD FG | 4 | 1 | WEST LAKE AND BELAIR PARK |
| Property Address | Property City | Section | Township | Range |
|---|---|---|---|---|
| 3404 W 25TH ST | GREELEY | 13 | 05 | 66 |
| Account | Parcel | Account Type | Tax Year | Buildings | Actual Value | Local Govt Assessed Value | School Assessed Value |
|---|---|---|---|---|---|---|---|
| R2426986 | 095913328007 | Residential | 2026 | 2 | 429,262 | 26,830 | 30,260 |
| Account | Owner Name | Address |
|---|---|---|
| R2426986 | ODER LAURAINE M | PO BOX 1261 BERTHOUD, CO 805132261 |
| Account | Parcel | Account Type | Tax Year | Buildings | Actual Value | Local Govt Assessed Value | School Assessed Value |
|---|---|---|---|---|---|---|---|
| R2426986 | 095913328007 | Residential | 2026 | 2 | 429,262 | 26,830 | 30,260 |
| Reception | Rec Date | Type | Grantor | Grantee | Doc Fee | Sale Date | Sale Price |
|---|---|---|---|---|---|---|---|
| 01771932 | 11-03-1978 | WDN | 0.00 | 01-01-1900 | 0 | ||
| 02280350 | 03-06-1992 | QCN | 0.00 | 02-20-1992 | 0 | ||
| 1719739 | NA | SUB | SUBDIVISION | WEST LAKE PARK 3RD FG | 0.00 | NA | 0 |
| 4572219 | 03-05-2020 | WD | HENG KENNETH M | ODER LAURAINE M | 32.00 | 02-26-2020 | 320,000 |
*If the hyperlink for the reception number does not work, try a manual search in the Clerk and Recorder records. Use the Grantor or Grantee in your search.
| Account | Parcel | Account Type | Tax Year | Buildings | Actual Value | Local Govt Assessed Value | School Assessed Value |
|---|---|---|---|---|---|---|---|
| R2426986 | 095913328007 | Residential | 2026 | 2 | 429,262 | 26,830 | 30,260 |
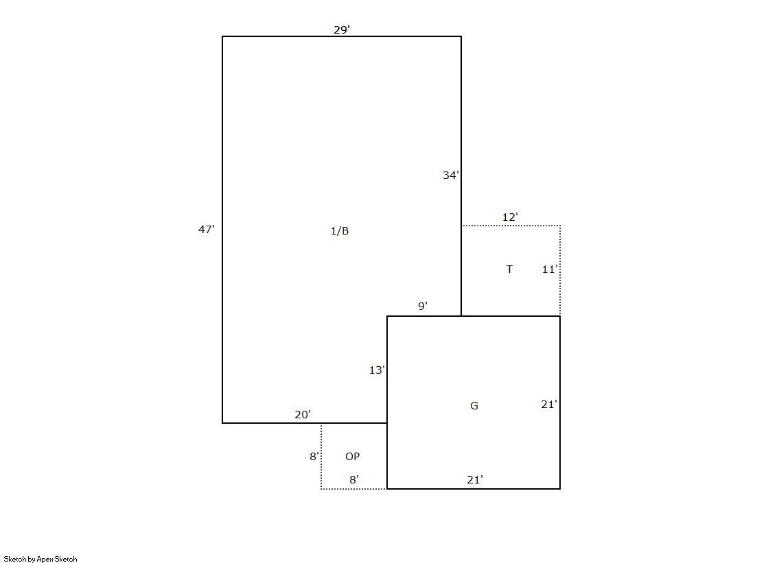
Building 1
| AccountNo | Building ID | Occupancy |
|---|---|---|
| R2426986 | 1 | Single Family Residential |
| ID | Type | NBHD | Occupancy | % Complete | Bedrooms | Baths |
|---|---|---|---|---|---|---|
| 1 | Residential | 6G2031 | Single Family Residential | 100 | 5 | 3.00 |
| ID | Exterior | Roof Cover | Interior | HVAC | Perimeter | Units | Unit Type | Make |
|---|---|---|---|---|---|---|---|---|
| 1 | Frame Hardboard | Composition Shingle | Drywall | Central Air to Air | 152 | 0 | NA | NA |
| ID | Square Ft | Condo SF | Total Basement SF | Finished Basement SF | Garage SF | Carport SF | Balcony SF | Porch SF |
|---|---|---|---|---|---|---|---|---|
| 1 | 1,246 | 0 | 1,246 | 986 | 441 | 0 | 0 | 472 |
| ID | Built As | Square Ft | Year Built | Stories | Length | Width |
|---|---|---|---|---|---|---|
| 1.00 | Ranch 1 Story | 1,246 | 1978 | 1 | 0 | 0 |
| ID | Detail Type | Description | Units |
|---|---|---|---|
| 1 | Add On | Fireplace Wood | 1.00 |
| 1 | Basement | Finished | 986.00 |
| 1 | Basement | Total Basement SF | 1246.00 |
| 1 | Fixture | Full Bath | 3.00 |
| 1 | Garage | Attached | 441.00 |
| 1 | Porch | Slab Roof Ceil | 472.00 |
Building 2
| AccountNo | Building ID | Occupancy |
|---|---|---|
| R2426986 | 2 | Equipment Building |
| ID | Type | NBHD | Occupancy | % Complete | Bedrooms | Baths |
|---|---|---|---|---|---|---|
| 2 | Out Building | NA | Equipment Building | 100 | 0 | 0.00 |
| ID | Exterior | Roof Cover | Interior | HVAC | Perimeter | Units | Unit Type | Make |
|---|---|---|---|---|---|---|---|---|
| 2 | NA | NA | NA | Electric | 100 | 0 | NA | NA |
| ID | Square Ft | Condo SF | Total Basement SF | Finished Basement SF | Garage SF | Carport SF | Balcony SF | Porch SF |
|---|---|---|---|---|---|---|---|---|
| 2 | 600 | 0 | 0 | 0 | 0 | 0 | 0 | 0 |
| ID | Built As | Square Ft | Year Built | Stories | Length | Width |
|---|---|---|---|---|---|---|
| 2.00 | Equipment Building | 600 | 2015 | 1 | 30 | 20 |
No Additional Details for Building 2
| Account | Parcel | Account Type | Tax Year | Buildings | Actual Value | Local Govt Assessed Value | School Assessed Value |
|---|---|---|---|---|---|---|---|
| R2426986 | 095913328007 | Residential | 2026 | 2 | 429,262 | 26,830 | 30,260 |
| Type | Code | Description | Actual Value | Local Govt Assessed Value | School Assessed Value | Acres | Land SqFt |
|---|---|---|---|---|---|---|---|
| Improvement | 1212 | SINGLE FAMILY RESIDENTIAL IMPROVEMENTS | 367,262 | 22,950 | 25,890 | 0.000 | 0 |
| Land | 1112 | SINGLE FAMILY RESIDENTIAL-LAND | 62,000 | 3,880 | 4,370 | 0.294 | 12,807 |
| Totals | - | - | 429,262 | 26,830 | 30,260 | 0.294 | 12,807 |
Comparable sales for your Residential or Commercial property may be found using our SALES SEARCH TOOL
Values are updated annually on May 1st for Real Property and June 15th for Personal Property and Oil and Gas.
| Account | Parcel | Account Type | Tax Year | Buildings | Actual Value | Local Govt Assessed Value | School Assessed Value |
|---|---|---|---|---|---|---|---|
| R2426986 | 095913328007 | Residential | 2026 | 2 | 429,262 | 26,830 | 30,260 |
| Tax Area | District ID | District Name | Local Govt Mill Levy |
School Mill Levy |
Estimated Taxes |
|---|---|---|---|---|---|
| 0600 | 0700 | AIMS JUNIOR COLLEGE | 6.313 | 0.000 | $169.38 |
| 0600 | 0411 | GREELEY CITY | 11.274 | 0.000 | $302.48 |
| 0600 | 1050 | HIGH PLAINS LIBRARY | 3.044 | 0.000 | $81.67 |
| 0600 | 0301 | NORTHERN COLORADO WATER (NCW) | 1.000 | 0.000 | $26.83 |
| 0600 | 0206 | SCHOOL DIST 6-GREELEY | 0.000 | 47.615 | $1,440.83 |
| 0600 | 0100 | WELD COUNTY | 15.956 | 0.000 | $428.10 |
| Total | - | - | 37.587 | 47.615 | $2,449.29 |
The estimate of tax is based on the prior year mill levy and the 2025 projected assessment rates. Mill levies and tax estimates will be updated yearly on December 22nd for the current year. Additional information can be found at https://assessor.weld.gov


