Account: R2427486

April 4, 2026

Account Parcel Account Type Tax Year Buildings Actual Value Local Govt Assessed Value School Assessed Value
R2427486 095913328014 Residential 2026 1 393,884 24,620 27,770

Legal
GR 3WL4-14 L14 BLK4 WEST LAKE PARK 3RD FG

Subdivision Block Lot Land Economic Area
WEST LAKE PARK 3RD FG 4 14 WEST LAKE AND BELAIR PARK

Property Address Property City Section Township Range
3327 W 26TH ST GREELEY 13 05 66




Account Parcel Account Type Tax Year Buildings Actual Value Local Govt Assessed Value School Assessed Value
R2427486 095913328014 Residential 2026 1 393,884 24,620 27,770

Account Owner Name Address
R2427486 TEMPLE JOSHUA 3327 W 26TH ST GREELEY, CO 806347515
R2427486 KING LANCE P


Account Parcel Account Type Tax Year Buildings Actual Value Local Govt Assessed Value School Assessed Value
R2427486 095913328014 Residential 2026 1 393,884 24,620 27,770

Reception Rec Date Type Grantor Grantee Doc Fee Sale Date Sale Price
01970745 06-15-1984 WD SHEFFER CYNTHIA A; SHEFFER RONALD D HOLLIGAN BARBARA ANN; HOLLIGAN DANIEL 6.90 06-14-1984 69,000
02179536 05-15-1989 QCN HOLLIGAN BARBARA ANN HOLLIGAN DANIEL 0.00 05-02-1989 0
02243023 03-05-1991 QCN HOLLIGAN DANIEL HOLLIGAN CYNTHIA A; HOLLIGAN DANIEL 0.00 02-16-1991 0
1719739 NA SUB SUBDIVISION WEST LAKE PARK 3RD FG 0.00 NA 0
2367235 01-03-1994 WD HOLLIGAN DANIEL & CYNTHIA A FLORES RUBEN & CARRIE J 10.00 12-30-1993 100,000
2491717 05-17-1996 WD FLORES RUBEN & CARRIE J HELLER KARLA KAY 13.89 05-13-1996 138,900
2846813 05-08-2001 WD HELLER KARLA KAY CRAIG EDWARD C & JUDITH K 18.39 05-03-2001 183,900
4801775 02-11-2022 SWDE CRAIG JUDITH K; CRAIG EDWARD C TEMPLE JOSHUA; KING LANCE P 42.50 02-09-2022 425,000



Account Parcel Account Type Tax Year Buildings Actual Value Local Govt Assessed Value School Assessed Value
R2427486 095913328014 Residential 2026 1 393,884 24,620 27,770

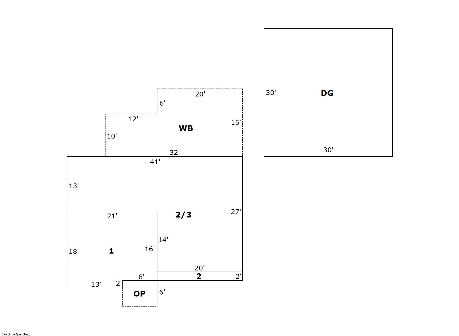
Building 1

AccountNo Building ID Occupancy
R2427486 1 Single Family Residential


ID Type NBHD Occupancy % Complete Bedrooms Baths
1 Residential 6G2031 Single Family Residential 100 3 2.00


ID Exterior Roof Cover Interior HVAC Perimeter Units Unit Type Make
1 Frame Hardboard Composition Shingle Drywall Central Air to Air 354 0 NA NA


ID Square Ft Condo SF Total Basement SF Finished Basement SF Garage SF Carport SF Balcony SF Porch SF
1 2,028 0 0 0 900 0 440 48


Built As Details for Building 1
ID Built As Square Ft Year Built Stories Length Width
1.00 Split Level 2,028 1979 1 0 0


Additional Details for Building 1
ID Detail Type Description Units
1 Balcony Wood Wood Fin 440.00
1 Fixture Full Bath 2.00
1 Garage Detached 900.00
1 Porch Slab Roof Ceil 48.00





Account Parcel Account Type Tax Year Buildings Actual Value Local Govt Assessed Value School Assessed Value
R2427486 095913328014 Residential 2026 1 393,884 24,620 27,770

Type Code Description Actual Value Local Govt Assessed Value School Assessed Value Acres Land SqFt
Improvement 1212 SINGLE FAMILY RESIDENTIAL IMPROVEMENTS 331,884 20,740 23,400 0.000 0
Land 1112 SINGLE FAMILY RESIDENTIAL-LAND 62,000 3,880 4,370 0.443 19,293
Totals - - 393,884 24,620 27,770 0.443 19,293


Account Parcel Account Type Tax Year Buildings Actual Value Local Govt Assessed Value School Assessed Value
R2427486 095913328014 Residential 2026 1 393,884 24,620 27,770

Tax Area District ID District Name Local Govt
Mill Levy
School
Mill Levy
Estimated
Taxes
0600 0700 AIMS JUNIOR COLLEGE 6.313 0.000 $155.43
0600 0411 GREELEY CITY 11.274 0.000 $277.57
0600 1050 HIGH PLAINS LIBRARY 3.044 0.000 $74.94
0600 0301 NORTHERN COLORADO WATER (NCW) 1.000 0.000 $24.62
0600 0206 SCHOOL DIST 6-GREELEY 0.000 47.615 $1,322.27
0600 0100 WELD COUNTY 15.956 0.000 $392.84
Total - - 37.587 47.615 $2,247.66


The estimate of tax is based on the prior year mill levy and the 2025 projected assessment rates. Mill levies and tax estimates will be updated yearly on December 22nd for the current year. Additional information can be found at https://assessor.weld.gov










Select Reports to Print: