Account: R2428786

April 5, 2026

Account Parcel Account Type Tax Year Buildings Actual Value Local Govt Assessed Value School Assessed Value
R2428786 095913328029 Residential 2026 1 406,812 25,430 28,680

Legal
GR 3WL4-29 L29 BLK4 WEST LAKE PARK 3RD FILING

Subdivision Block Lot Land Economic Area
WEST LAKE PARK 3RD FG 4 29 WEST LAKE AND BELAIR PARK

Property Address Property City Section Township Range
2719 33RD AVENUE CT GREELEY 13 05 66




Account Parcel Account Type Tax Year Buildings Actual Value Local Govt Assessed Value School Assessed Value
R2428786 095913328029 Residential 2026 1 406,812 25,430 28,680

Account Owner Name Address
R2428786 GONZALEZ ROMAN ALFREDO 2719 33RD AVENUE CT GREELEY, CO 806347529
R2428786 RUIZ AGUSTIN LOMA


Account Parcel Account Type Tax Year Buildings Actual Value Local Govt Assessed Value School Assessed Value
R2428786 095913328029 Residential 2026 1 406,812 25,430 28,680

Reception Rec Date Type Grantor Grantee Doc Fee Sale Date Sale Price
01982033 09-18-1984 WD RUSSELL DEBORAH A; RUSSELL GORDON S SCHNEIDER KATHLEEN; SCHNEIDER ROBERT G 7.73 09-15-1984 77,300
2366751 12-30-1993 WD SCHNEIDER ROBERT G & KATHLEEN HARDING KEITH W 9.28 12-29-1993 92,800
2556028 07-01-1997 WD HARDING KEITH W RELOCATION COLLABORATIVE SERVI 12.50 06-19-1997 125,000
2556029 07-01-1997 WD RELOCATION COLLABORATIVE SERVI ANTILLON JOSE DEJESUS & MAGDAL 12.59 06-27-1997 125,900
2781413 07-19-2000 WD ANTILLON JOSE DEJESUS & MAGDAL BALLTRIP KENNETH R & JOANN 14.70 07-14-2000 147,000
3819551 01-23-2012 DTHC BALLTRIP JO ANN BALLTRIP JO ANN 0.00 01-23-2012 0
4390910 04-13-2018 AFFDE BALLTRIP KENNETH R BALLTRIP KENNETH R 0.00 04-10-2018 0
4390911 04-13-2018 DTHC BALLTRIP JO ANN BALLTRIP JO ANN 0.00 07-19-2011 0
4390912 04-13-2018 WDE BALLTRIP KENNETH R AVILES VICTOR CRUZ 27.50 04-13-2018 275,000
4687656 03-01-2021 WD AVILES VICTOR CRUZ CRISEL ZACHARIAH T 35.25 02-26-2021 352,500
4935574 12-14-2023 WD CRISEL ZACHARIAH T GONZALEZ ROMAN ALFREDO; RUIZ AGUSTIN LOMA 38.30 12-13-2023 383,000



Account Parcel Account Type Tax Year Buildings Actual Value Local Govt Assessed Value School Assessed Value
R2428786 095913328029 Residential 2026 1 406,812 25,430 28,680

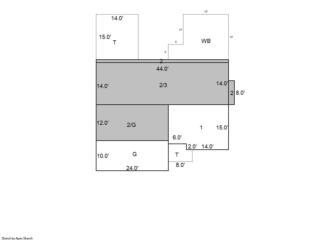
Building 1

AccountNo Building ID Occupancy
R2428786 1 Single Family Residential


ID Type NBHD Occupancy % Complete Bedrooms Baths
1 Residential 6G2031 Single Family Residential 100 4 3.00


ID Exterior Roof Cover Interior HVAC Perimeter Units Unit Type Make
1 Frame Hardboard Composition Shingle Drywall Central Air to Air 396 0 NA NA


ID Square Ft Condo SF Total Basement SF Finished Basement SF Garage SF Carport SF Balcony SF Porch SF
1 1,868 0 0 0 528 0 250 254


Built As Details for Building 1
ID Built As Square Ft Year Built Stories Length Width
1.00 Split Level 1,868 1979 1 0 0


Additional Details for Building 1
ID Detail Type Description Units
1 Add On Fireplace Wood 1.00
1 Balcony Wood Wood Fin 250.00
1 Fixture Full Bath 3.00
1 Garage Built In 528.00
1 Porch Open Slab 254.00





Account Parcel Account Type Tax Year Buildings Actual Value Local Govt Assessed Value School Assessed Value
R2428786 095913328029 Residential 2026 1 406,812 25,430 28,680

Type Code Description Actual Value Local Govt Assessed Value School Assessed Value Acres Land SqFt
Improvement 1212 SINGLE FAMILY RESIDENTIAL IMPROVEMENTS 344,812 21,550 24,310 0.000 0
Land 1112 SINGLE FAMILY RESIDENTIAL-LAND 62,000 3,880 4,370 0.315 13,703
Totals - - 406,812 25,430 28,680 0.315 13,703


Account Parcel Account Type Tax Year Buildings Actual Value Local Govt Assessed Value School Assessed Value
R2428786 095913328029 Residential 2026 1 406,812 25,430 28,680

Tax Area District ID District Name Local Govt
Mill Levy
School
Mill Levy
Estimated
Taxes
0600 0700 AIMS JUNIOR COLLEGE 6.313 0.000 $160.54
0600 0411 GREELEY CITY 11.274 0.000 $286.70
0600 1050 HIGH PLAINS LIBRARY 3.044 0.000 $77.41
0600 0301 NORTHERN COLORADO WATER (NCW) 1.000 0.000 $25.43
0600 0206 SCHOOL DIST 6-GREELEY 0.000 47.615 $1,365.60
0600 0100 WELD COUNTY 15.956 0.000 $405.76
Total - - 37.587 47.615 $2,321.44


The estimate of tax is based on the prior year mill levy and the 2025 projected assessment rates. Mill levies and tax estimates will be updated yearly on December 22nd for the current year. Additional information can be found at https://assessor.weld.gov










Select Reports to Print: