Account: R2455103
April 5, 2026
| Account | Parcel | Account Type | Tax Year | Buildings | Actual Value | Local Govt Assessed Value | School Assessed Value |
|---|---|---|---|---|---|---|---|
| R2455103 | 106129301003 | Residential | 2026 | 2 | 1,450,000 | 90,620 | 102,230 |
| Legal |
|---|
| MC L3 AMD MILL CREEK PUD |
| Subdivision | Block | Lot | Land Economic Area |
|---|---|---|---|
| MILL CREEK PUD AM | 3 | MILL CREEK PUD |
| Property Address | Property City | Section | Township | Range |
|---|---|---|---|---|
| 1255 MILL CREEK RD | WELD | 29 | 04 | 68 |
| Account | Parcel | Account Type | Tax Year | Buildings | Actual Value | Local Govt Assessed Value | School Assessed Value |
|---|---|---|---|---|---|---|---|
| R2455103 | 106129301003 | Residential | 2026 | 2 | 1,450,000 | 90,620 | 102,230 |
| Account | Owner Name | Address |
|---|---|---|
| R2455103 | PATINO CARLOS | 1255 MILL CREEK RD BERTHOUD, CO 805138083 |
| R2455103 | PATINO DOROTHY |
| Account | Parcel | Account Type | Tax Year | Buildings | Actual Value | Local Govt Assessed Value | School Assessed Value |
|---|---|---|---|---|---|---|---|
| R2455103 | 106129301003 | Residential | 2026 | 2 | 1,450,000 | 90,620 | 102,230 |
| Reception | Rec Date | Type | Grantor | Grantee | Doc Fee | Sale Date | Sale Price |
|---|---|---|---|---|---|---|---|
| 3010131 | 12-02-2002 | COZ | WELD COUNTY ZONING | CASE: CZ-553 ZONING A, E, PUD | 0.00 | NA | 0 |
| 3070533 | 06-09-2003 | WD | NEAL DENNIS W | PLAINS VIEW DEVELOPMENT LLC | 130.00 | 06-06-2003 | 1,300,000 |
| 3203560 | 07-29-2004 | WD | PLAINS VIEW DEVELOPMENT LLC | PATINO CARLOS & | 16.00 | 07-26-2004 | 160,000 |
| 3218720 | NA | SUB | SUBDIVISION | MILL CREEK PUD AMD | 0.00 | NA | 0 |
*If the hyperlink for the reception number does not work, try a manual search in the Clerk and Recorder records. Use the Grantor or Grantee in your search.
| Account | Parcel | Account Type | Tax Year | Buildings | Actual Value | Local Govt Assessed Value | School Assessed Value |
|---|---|---|---|---|---|---|---|
| R2455103 | 106129301003 | Residential | 2026 | 2 | 1,450,000 | 90,620 | 102,230 |
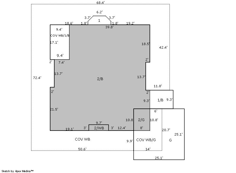
Building 1
| AccountNo | Building ID | Occupancy |
|---|---|---|
| R2455103 | 1 | Utility Building |
| ID | Type | NBHD | Occupancy | % Complete | Bedrooms | Baths |
|---|---|---|---|---|---|---|
| 1 | Out Building | NA | Utility Building | 100 | 0 | 0.00 |
| ID | Exterior | Roof Cover | Interior | HVAC | Perimeter | Units | Unit Type | Make |
|---|---|---|---|---|---|---|---|---|
| 1 | NA | NA | NA | Radiant | 168 | 0 | NA | NA |
| ID | Square Ft | Condo SF | Total Basement SF | Finished Basement SF | Garage SF | Carport SF | Balcony SF | Porch SF |
|---|---|---|---|---|---|---|---|---|
| 1 | 1,580 | 0 | 0 | 0 | 0 | 0 | 0 | 0 |
| ID | Built As | Square Ft | Year Built | Stories | Length | Width |
|---|---|---|---|---|---|---|
| 1.00 | Utility Building | 1,580 | 2006 | 1 | 44 | 34 |
| ID | Detail Type | Description | Units |
|---|---|---|---|
| 1 | Add On | OB Plumbing Fixture | 3.00 |
| 1 | Add On | Porches Open | 180.00 |
| 1 | Fixture | Full Bath | 1.00 |
Building 2
| AccountNo | Building ID | Occupancy |
|---|---|---|
| R2455103 | 2 | Single Family Residential |
| ID | Type | NBHD | Occupancy | % Complete | Bedrooms | Baths |
|---|---|---|---|---|---|---|
| 2 | Residential | 0R0061 | Single Family Residential | 100 | 3 | 4.00 |
| ID | Exterior | Roof Cover | Interior | HVAC | Perimeter | Units | Unit Type | Make |
|---|---|---|---|---|---|---|---|---|
| 2 | Frame Hardboard | Composition Shingle | Drywall | Central Air to Air | 0 | 0 | NA | NA |
| ID | Square Ft | Condo SF | Total Basement SF | Finished Basement SF | Garage SF | Carport SF | Balcony SF | Porch SF |
|---|---|---|---|---|---|---|---|---|
| 2 | 4,911 | 0 | 2,510 | 0 | 630 | 0 | 2,381 | 0 |
| ID | Built As | Square Ft | Year Built | Stories | Length | Width |
|---|---|---|---|---|---|---|
| 2.00 | 2 Story | 4,911 | 2008 | 1 | 0 | 0 |
| ID | Detail Type | Description | Units |
|---|---|---|---|
| 2 | Add On | Fireplace Wood | 2.00 |
| 2 | Balcony | Cover Wood Balc | 2381.00 |
| 2 | Balcony | Wood Wood Fin | 29.00 |
| 2 | Basement | Total Basement SF | 2510.00 |
| 2 | Basement | Walkout | 1.00 |
| 2 | Fixture | Full Bath | 6.00 |
| 2 | Fixture | Half Bath | 1.00 |
| 2 | Garage | Attached | 630.00 |
| 2 | Rough In | Rough In | 1.00 |
| Account | Parcel | Account Type | Tax Year | Buildings | Actual Value | Local Govt Assessed Value | School Assessed Value |
|---|---|---|---|---|---|---|---|
| R2455103 | 106129301003 | Residential | 2026 | 2 | 1,450,000 | 90,620 | 102,230 |
| Type | Code | Description | Actual Value | Local Govt Assessed Value | School Assessed Value | Acres | Land SqFt |
|---|---|---|---|---|---|---|---|
| Improvement | 1212 | SINGLE FAMILY RESIDENTIAL IMPROVEMENTS | 1,135,111 | 70,940 | 80,030 | 0.000 | 0 |
| Land | 1112 | SINGLE FAMILY RESIDENTIAL-LAND | 314,889 | 19,680 | 22,200 | 5.000 | 217,800 |
| Totals | - | - | 1,450,000 | 90,620 | 102,230 | 5.000 | 217,800 |
Comparable sales for your Residential or Commercial property may be found using our SALES SEARCH TOOL
Values are updated annually on May 1st for Real Property and June 15th for Personal Property and Oil and Gas.
| Account | Parcel | Account Type | Tax Year | Buildings | Actual Value | Local Govt Assessed Value | School Assessed Value |
|---|---|---|---|---|---|---|---|
| R2455103 | 106129301003 | Residential | 2026 | 2 | 1,450,000 | 90,620 | 102,230 |
| Tax Area | District ID | District Name | Local Govt Mill Levy |
School Mill Levy |
Estimated Taxes |
|---|---|---|---|---|---|
| 5915 | 0502 | BERTHOUD FIRE | 13.342 | 0.000 | $1,209.05 |
| 5915 | 1050 | HIGH PLAINS LIBRARY | 3.044 | 0.000 | $275.85 |
| 5915 | 1206 | LARIMER CONSERVATION DISTRICT | 0.000 | 0.000 | $0.00 |
| 5915 | 0306 | LITTLE THOMPSON WATER (LTW) | 0.000 | 0.000 | $0.00 |
| 5915 | 0301 | NORTHERN COLORADO WATER (NCW) | 1.000 | 0.000 | $90.62 |
| 5915 | 0214 | SCHOOL DIST R2J-LOVELAND | 0.000 | 44.836 | $4,583.58 |
| 5915 | 0100 | WELD COUNTY | 15.956 | 0.000 | $1,445.93 |
| Total | - | - | 33.342 | 44.836 | $7,605.04 |
The estimate of tax is based on the prior year mill levy and the 2025 projected assessment rates. Mill levies and tax estimates will be updated yearly on December 22nd for the current year. Additional information can be found at https://assessor.weld.gov




