Account: R2455786
April 5, 2026
| Account | Parcel | Account Type | Tax Year | Buildings | Actual Value | Local Govt Assessed Value | School Assessed Value |
|---|---|---|---|---|---|---|---|
| R2455786 | 095913408009 | Residential | 2026 | 1 | 327,472 | 20,470 | 23,090 |
| Legal |
|---|
| GR B2-13 L13 BLK2 BRENTWOOD PK |
| Subdivision | Block | Lot | Land Economic Area |
|---|---|---|---|
| BRENTWOOD PARK | 2 | 13 | BRENTWOOD PARK |
| Property Address | Property City | Section | Township | Range |
|---|---|---|---|---|
| 2301 W 25TH STREET RD | GREELEY | 13 | 05 | 66 |
| Account | Parcel | Account Type | Tax Year | Buildings | Actual Value | Local Govt Assessed Value | School Assessed Value |
|---|---|---|---|---|---|---|---|
| R2455786 | 095913408009 | Residential | 2026 | 1 | 327,472 | 20,470 | 23,090 |
| Account | Owner Name | Address |
|---|---|---|
| R2455786 | CABRERA-ORTIZ EDUARDO | 2733 W RESERVOIR RD GREELEY, CO 806347812 |
| R2455786 | BELTRAN-CARRASCO GUADALUPE C |
| Account | Parcel | Account Type | Tax Year | Buildings | Actual Value | Local Govt Assessed Value | School Assessed Value |
|---|---|---|---|---|---|---|---|
| R2455786 | 095913408009 | Residential | 2026 | 1 | 327,472 | 20,470 | 23,090 |
| Reception | Rec Date | Type | Grantor | Grantee | Doc Fee | Sale Date | Sale Price |
|---|---|---|---|---|---|---|---|
| 1189833 | NA | SUB | SUBDIVISION | BRENTWOOD PARK | 0.00 | NA | 0 |
| 3285010 | 05-11-2005 | WD | KYGER WILLIAM MELVIN & LORRINE C | WALL JUSTIN W & | 13.30 | 04-29-2005 | 133,000 |
| 3461434 | 03-12-2007 | PTD | WALL JUSTIN W & | FEDERAL NATIONAL MORTGAGE ASSOCIATION | 0.00 | 03-12-2007 | 0 |
| 3509385 | 10-08-2007 | SWD | FEDERAL NATIONAL MORTGAGE ASSOCIATION | SANCHEZ ISIDRO | 8.00 | 09-26-2007 | 80,000 |
| 3693943 | 05-18-2010 | PTD | WELD CO PUBLIC TRUSTEE | FEDERAL NATIONAL MORTGAGE ASSOCIATION | 0.00 | 05-17-2010 | 0 |
| 3739269 | 12-15-2010 | WD | FANNIE MAE | CABRERAMARTINEZ RAFAEL | 6.30 | 12-09-2010 | 63,000 |
| 4122364 | 07-08-2015 | QCN | CABRERA-MARTINEZ RAFAEL | BELTRAN-CARRASCO GUADALUPE C; CABRERA-ORTIZ EDUARDO | 0.00 | 07-08-2015 | 0 |
*If the hyperlink for the reception number does not work, try a manual search in the Clerk and Recorder records. Use the Grantor or Grantee in your search.
| Account | Parcel | Account Type | Tax Year | Buildings | Actual Value | Local Govt Assessed Value | School Assessed Value |
|---|---|---|---|---|---|---|---|
| R2455786 | 095913408009 | Residential | 2026 | 1 | 327,472 | 20,470 | 23,090 |
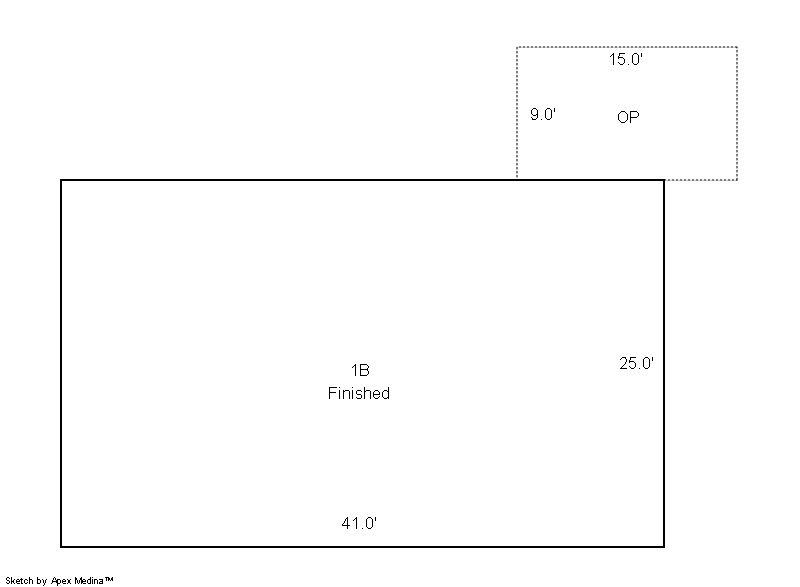
Building 1
| AccountNo | Building ID | Occupancy |
|---|---|---|
| R2455786 | 1 | Single Family Residential |
| ID | Type | NBHD | Occupancy | % Complete | Bedrooms | Baths |
|---|---|---|---|---|---|---|
| 1 | Residential | 6G4029 | Single Family Residential | 100 | 5 | 1.00 |
| ID | Exterior | Roof Cover | Interior | HVAC | Perimeter | Units | Unit Type | Make |
|---|---|---|---|---|---|---|---|---|
| 1 | Frame Vinyl | Composition Shingle | Drywall | Forced Air | 0 | 0 | NA | NA |
| ID | Square Ft | Condo SF | Total Basement SF | Finished Basement SF | Garage SF | Carport SF | Balcony SF | Porch SF |
|---|---|---|---|---|---|---|---|---|
| 1 | 1,025 | 0 | 1,025 | 1,025 | 0 | 0 | 0 | 135 |
| ID | Built As | Square Ft | Year Built | Stories | Length | Width |
|---|---|---|---|---|---|---|
| 1.00 | Ranch 1 Story | 1,025 | 1955 | 1 | 0 | 0 |
| ID | Detail Type | Description | Units |
|---|---|---|---|
| 1 | Basement | Finished | 1025.00 |
| 1 | Basement | Total Basement SF | 1025.00 |
| 1 | Fixture | Full Bath | 1.00 |
| 1 | Porch | Slab Roof Ceil | 135.00 |
| Account | Parcel | Account Type | Tax Year | Buildings | Actual Value | Local Govt Assessed Value | School Assessed Value |
|---|---|---|---|---|---|---|---|
| R2455786 | 095913408009 | Residential | 2026 | 1 | 327,472 | 20,470 | 23,090 |
| Type | Code | Description | Actual Value | Local Govt Assessed Value | School Assessed Value | Acres | Land SqFt |
|---|---|---|---|---|---|---|---|
| Improvement | 1212 | SINGLE FAMILY RESIDENTIAL IMPROVEMENTS | 273,472 | 17,090 | 19,280 | 0.000 | 0 |
| Land | 1112 | SINGLE FAMILY RESIDENTIAL-LAND | 54,000 | 3,380 | 3,810 | 0.179 | 7,812 |
| Totals | - | - | 327,472 | 20,470 | 23,090 | 0.179 | 7,812 |
Comparable sales for your Residential or Commercial property may be found using our SALES SEARCH TOOL
Values are updated annually on May 1st for Real Property and June 15th for Personal Property and Oil and Gas.
| Account | Parcel | Account Type | Tax Year | Buildings | Actual Value | Local Govt Assessed Value | School Assessed Value |
|---|---|---|---|---|---|---|---|
| R2455786 | 095913408009 | Residential | 2026 | 1 | 327,472 | 20,470 | 23,090 |
| Tax Area | District ID | District Name | Local Govt Mill Levy |
School Mill Levy |
Estimated Taxes |
|---|---|---|---|---|---|
| 0600 | 0700 | AIMS JUNIOR COLLEGE | 6.313 | 0.000 | $129.23 |
| 0600 | 0411 | GREELEY CITY | 11.274 | 0.000 | $230.78 |
| 0600 | 1050 | HIGH PLAINS LIBRARY | 3.044 | 0.000 | $62.31 |
| 0600 | 0301 | NORTHERN COLORADO WATER (NCW) | 1.000 | 0.000 | $20.47 |
| 0600 | 0206 | SCHOOL DIST 6-GREELEY | 0.000 | 47.615 | $1,099.43 |
| 0600 | 0100 | WELD COUNTY | 15.956 | 0.000 | $326.62 |
| Total | - | - | 37.587 | 47.615 | $1,868.84 |
The estimate of tax is based on the prior year mill levy and the 2025 projected assessment rates. Mill levies and tax estimates will be updated yearly on December 22nd for the current year. Additional information can be found at https://assessor.weld.gov



