Account: R2493586

April 1, 2026

Account Parcel Account Type Tax Year Buildings Actual Value Local Govt Assessed Value School Assessed Value
R2493586 095914202047 Residential 2026 1 481,000 30,060 33,910

Legal
GR VH7-39 L39 & S5'1 L40 BLK7 VIRGINIA HILLS

Subdivision Block Lot Land Economic Area
VIRGINIA HILLS 7 39 VIRGINIA HILLS

Property Address Property City Section Township Range
4117 W 20TH STREET RD GREELEY 14 05 66




Account Parcel Account Type Tax Year Buildings Actual Value Local Govt Assessed Value School Assessed Value
R2493586 095914202047 Residential 2026 1 481,000 30,060 33,910

Account Owner Name Address
R2493586 ALVAREZ MAURICIO 1409 S 11TH ST WACO, TX 767062244
R2493586 ALVAREZ EURIDICE


Account Parcel Account Type Tax Year Buildings Actual Value Local Govt Assessed Value School Assessed Value
R2493586 095914202047 Residential 2026 1 481,000 30,060 33,910

Reception Rec Date Type Grantor Grantee Doc Fee Sale Date Sale Price
01759197 07-05-1978 WDN 0.00 01-01-1900 0
1733388 NA SUB SUBDIVISION VIRGINIA HILLS CORR PLAT 0.00 NA 0
2575051 10-21-1997 QCN KULP WILLIS K & EVELYN J KULP WILLIS K & EVELYN J 0.00 10-17-1997 0
4114310 06-09-2015 PRDNE KULP EVELYN J KULP WILLIS 0.00 05-15-2015 0
4324605 08-07-2017 WDE KULP WILLIS K ALVAREZ MAURICIO; ALVAREZ EURIDICE 31.00 08-04-2017 310,000



Account Parcel Account Type Tax Year Buildings Actual Value Local Govt Assessed Value School Assessed Value
R2493586 095914202047 Residential 2026 1 481,000 30,060 33,910

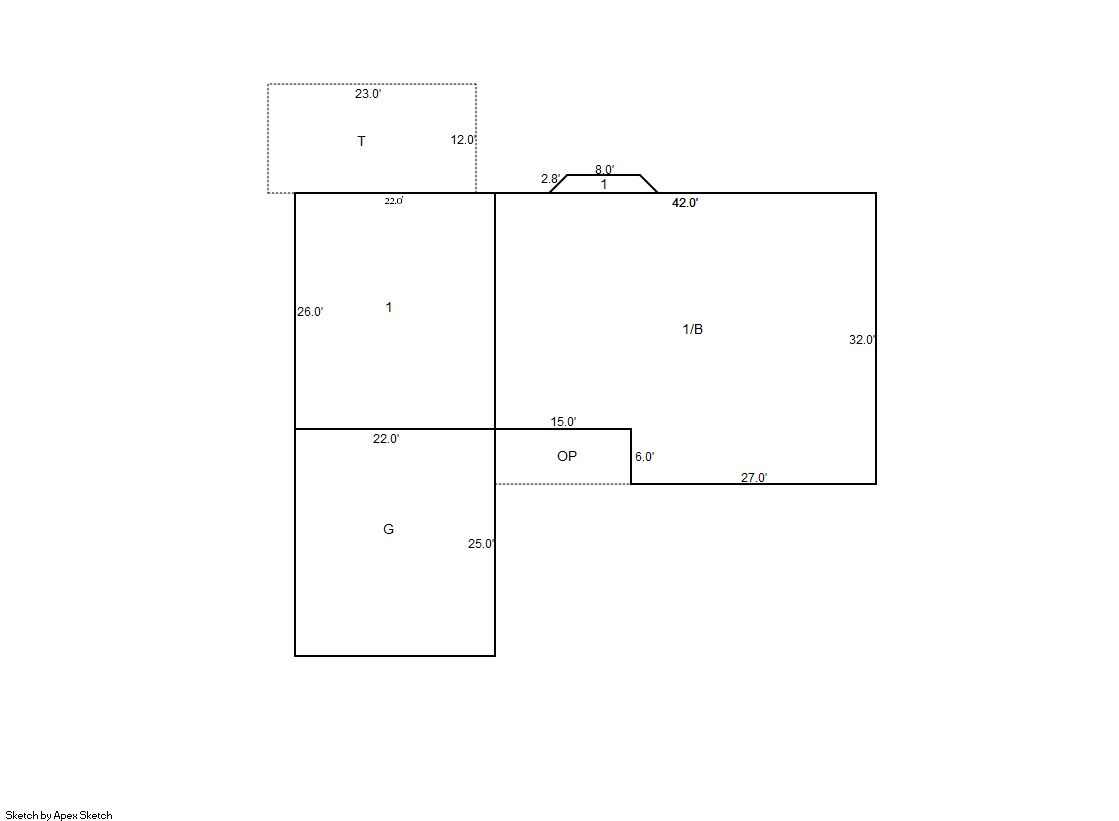
Building 1

AccountNo Building ID Occupancy
R2493586 1 Single Family Residential


ID Type NBHD Occupancy % Complete Bedrooms Baths
1 Residential 2G0003 Single Family Residential 100 4 4.00


ID Exterior Roof Cover Interior HVAC Perimeter Units Unit Type Make
1 Frame Masonry Veneer Wood Shingle Drywall Forced Air 194 0 NA NA


ID Square Ft Condo SF Total Basement SF Finished Basement SF Garage SF Carport SF Balcony SF Porch SF
1 1,846 0 1,254 1,254 550 0 0 276


Built As Details for Building 1
ID Built As Square Ft Year Built Stories Length Width
1.00 Ranch 1 Story 1,846 1978 1 0 0


Additional Details for Building 1
ID Detail Type Description Units
1 Add On Fireplace Wood 1.00
1 Basement Finished 1254.00
1 Basement Outside Entrance 1.00
1 Basement Total Basement SF 1254.00
1 Fixture Full Bath 3.00
1 Fixture Half Bath 1.00
1 Fixture Wet Bar 1.00
1 Garage Attached 550.00
1 Porch Open Slab 276.00
1 Porch Slab Roof Ceil 90.00





Account Parcel Account Type Tax Year Buildings Actual Value Local Govt Assessed Value School Assessed Value
R2493586 095914202047 Residential 2026 1 481,000 30,060 33,910

Type Code Description Actual Value Local Govt Assessed Value School Assessed Value Acres Land SqFt
Improvement 1212 SINGLE FAMILY RESIDENTIAL IMPROVEMENTS 416,000 26,000 29,330 0.000 0
Land 1112 SINGLE FAMILY RESIDENTIAL-LAND 65,000 4,060 4,580 0.219 9,552
Totals - - 481,000 30,060 33,910 0.219 9,552


Account Parcel Account Type Tax Year Buildings Actual Value Local Govt Assessed Value School Assessed Value
R2493586 095914202047 Residential 2026 1 481,000 30,060 33,910

Tax Area District ID District Name Local Govt
Mill Levy
School
Mill Levy
Estimated
Taxes
0600 0700 AIMS JUNIOR COLLEGE 6.313 0.000 $189.77
0600 0411 GREELEY CITY 11.274 0.000 $338.90
0600 1050 HIGH PLAINS LIBRARY 3.044 0.000 $91.50
0600 0301 NORTHERN COLORADO WATER (NCW) 1.000 0.000 $30.06
0600 0206 SCHOOL DIST 6-GREELEY 0.000 47.615 $1,614.62
0600 0100 WELD COUNTY 15.956 0.000 $479.64
Total - - 37.587 47.615 $2,744.49


The estimate of tax is based on the prior year mill levy and the 2025 projected assessment rates. Mill levies and tax estimates will be updated yearly on December 22nd for the current year. Additional information can be found at https://assessor.weld.gov










Select Reports to Print: