Account: R2535486
April 1, 2026
| Account | Parcel | Account Type | Tax Year | Buildings | Actual Value | Local Govt Assessed Value | School Assessed Value |
|---|---|---|---|---|---|---|---|
| R2535486 | 095915207025 | Residential | 2026 | 1 | 409,539 | 25,600 | 28,880 |
| Legal |
|---|
| GR 2HH1-44 L44 BLK1 2ND HIGHLAND HILLS |
| Subdivision | Block | Lot | Land Economic Area |
|---|---|---|---|
| HIGHLAND HILLS SUB 2ND ADD | 1 | 44 | HIGHLAND HILLS |
| Property Address | Property City | Section | Township | Range |
|---|---|---|---|---|
| 2341 FAIRWAY LN | GREELEY | 15 | 05 | 66 |
| Account | Parcel | Account Type | Tax Year | Buildings | Actual Value | Local Govt Assessed Value | School Assessed Value |
|---|---|---|---|---|---|---|---|
| R2535486 | 095915207025 | Residential | 2026 | 1 | 409,539 | 25,600 | 28,880 |
| Account | Owner Name | Address |
|---|---|---|
| R2535486 | ALBERT RANDALL LEE | 2341 FAIRWAY LN GREELEY, CO 806343602 |
| R2535486 | ALBERT CHRISTIE SUE |
| Account | Parcel | Account Type | Tax Year | Buildings | Actual Value | Local Govt Assessed Value | School Assessed Value |
|---|---|---|---|---|---|---|---|
| R2535486 | 095915207025 | Residential | 2026 | 1 | 409,539 | 25,600 | 28,880 |
| Reception | Rec Date | Type | Grantor | Grantee | Doc Fee | Sale Date | Sale Price |
|---|---|---|---|---|---|---|---|
| 01785027 | 03-20-1979 | PRDN | 0.00 | 01-01-1900 | 0 | ||
| 02214890 | 05-24-1990 | PTD | 0.00 | 05-23-1990 | 0 | ||
| 1363183 | NA | SUB | SUBDIVISION | HIGHLAND HILLS 2ND ADD | 0.00 | NA | 0 |
| 2244227 | 03-18-1991 | D | SECRETARY OF HOUSING & URBAN D | ALBERT RANDALL LEE & CHRISTIE | 7.05 | 03-14-1991 | 70,450 |
*If the hyperlink for the reception number does not work, try a manual search in the Clerk and Recorder records. Use the Grantor or Grantee in your search.
| Account | Parcel | Account Type | Tax Year | Buildings | Actual Value | Local Govt Assessed Value | School Assessed Value |
|---|---|---|---|---|---|---|---|
| R2535486 | 095915207025 | Residential | 2026 | 1 | 409,539 | 25,600 | 28,880 |
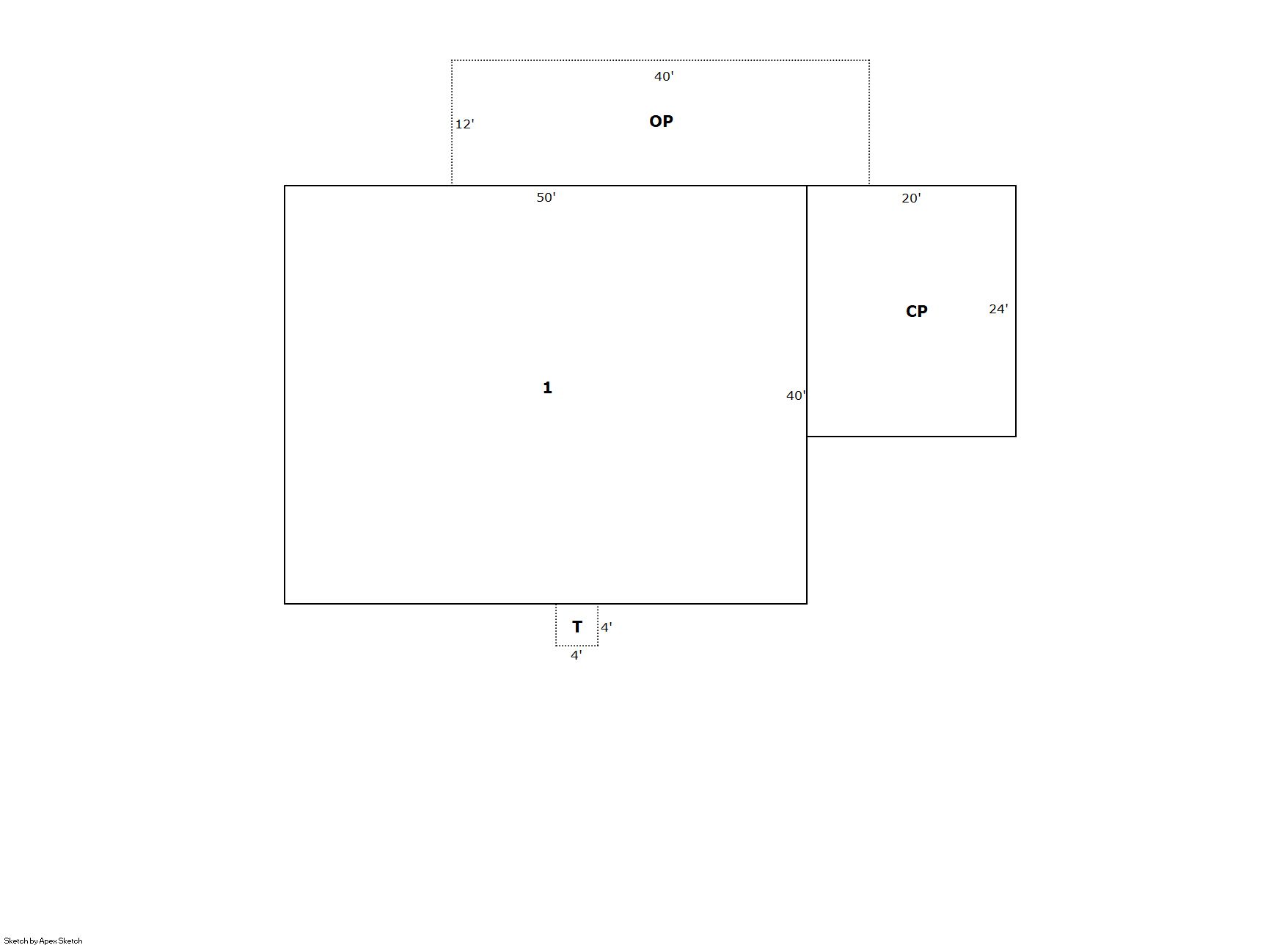
Building 1
| AccountNo | Building ID | Occupancy |
|---|---|---|
| R2535486 | 1 | Single Family Residential |
| ID | Type | NBHD | Occupancy | % Complete | Bedrooms | Baths |
|---|---|---|---|---|---|---|
| 1 | Residential | 2G0005 | Single Family Residential | 100 | 3 | 2.00 |
| ID | Exterior | Roof Cover | Interior | HVAC | Perimeter | Units | Unit Type | Make |
|---|---|---|---|---|---|---|---|---|
| 1 | Frame Hardboard | Built Up Rock | Drywall | Central Air to Air | 180 | 0 | NA | NA |
| ID | Square Ft | Condo SF | Total Basement SF | Finished Basement SF | Garage SF | Carport SF | Balcony SF | Porch SF |
|---|---|---|---|---|---|---|---|---|
| 1 | 2,000 | 0 | 0 | 0 | 0 | 0 | 0 | 480 |
| ID | Built As | Square Ft | Year Built | Stories | Length | Width |
|---|---|---|---|---|---|---|
| 1.00 | Ranch 1 Story | 2,000 | 1969 | 1 | 0 | 0 |
| ID | Detail Type | Description | Units |
|---|---|---|---|
| 1 | Add On | Flue Only | 1.00 |
| 1 | Add On | Swimming Pools | 1.00 |
| 1 | Fixture | Full Bath | 2.00 |
| 1 | Porch | Open Slab | 16.00 |
| 1 | Porch | Slab Roof Ceil | 480.00 |
| Account | Parcel | Account Type | Tax Year | Buildings | Actual Value | Local Govt Assessed Value | School Assessed Value |
|---|---|---|---|---|---|---|---|
| R2535486 | 095915207025 | Residential | 2026 | 1 | 409,539 | 25,600 | 28,880 |
| Type | Code | Description | Actual Value | Local Govt Assessed Value | School Assessed Value | Acres | Land SqFt |
|---|---|---|---|---|---|---|---|
| Improvement | 1212 | SINGLE FAMILY RESIDENTIAL IMPROVEMENTS | 339,539 | 21,220 | 23,940 | 0.000 | 0 |
| Land | 1112 | SINGLE FAMILY RESIDENTIAL-LAND | 70,000 | 4,380 | 4,940 | 0.435 | 18,942 |
| Totals | - | - | 409,539 | 25,600 | 28,880 | 0.435 | 18,942 |
Comparable sales for your Residential or Commercial property may be found using our SALES SEARCH TOOL
Values are updated annually on May 1st for Real Property and June 15th for Personal Property and Oil and Gas.
| Account | Parcel | Account Type | Tax Year | Buildings | Actual Value | Local Govt Assessed Value | School Assessed Value |
|---|---|---|---|---|---|---|---|
| R2535486 | 095915207025 | Residential | 2026 | 1 | 409,539 | 25,600 | 28,880 |
| Tax Area | District ID | District Name | Local Govt Mill Levy |
School Mill Levy |
Estimated Taxes |
|---|---|---|---|---|---|
| 0600 | 0700 | AIMS JUNIOR COLLEGE | 6.313 | 0.000 | $161.61 |
| 0600 | 0411 | GREELEY CITY | 11.274 | 0.000 | $288.61 |
| 0600 | 1050 | HIGH PLAINS LIBRARY | 3.044 | 0.000 | $77.93 |
| 0600 | 0301 | NORTHERN COLORADO WATER (NCW) | 1.000 | 0.000 | $25.60 |
| 0600 | 0206 | SCHOOL DIST 6-GREELEY | 0.000 | 47.615 | $1,375.12 |
| 0600 | 0100 | WELD COUNTY | 15.956 | 0.000 | $408.47 |
| Total | - | - | 37.587 | 47.615 | $2,337.35 |
The estimate of tax is based on the prior year mill levy and the 2025 projected assessment rates. Mill levies and tax estimates will be updated yearly on December 22nd for the current year. Additional information can be found at https://assessor.weld.gov


