Account: R2567403
April 1, 2026
| Account | Parcel | Account Type | Tax Year | Buildings | Actual Value | Local Govt Assessed Value | School Assessed Value |
|---|---|---|---|---|---|---|---|
| R2567403 | 131130126007 | Residential | 2026 | 1 | 425,809 | 26,610 | 30,020 |
| Legal |
|---|
| FIR OAFRC L7 OVERLOOK AT FIRESTONE RPLT C |
| Subdivision | Block | Lot | Land Economic Area |
|---|---|---|---|
| OVERLOOK AT FIRESTONE RPLT C | 7 | OVERLOOK |
| Property Address | Property City | Section | Township | Range |
|---|---|---|---|---|
| 868 FLORENCE AVE | FIRESTONE | 30 | 02 | 67 |
| Account | Parcel | Account Type | Tax Year | Buildings | Actual Value | Local Govt Assessed Value | School Assessed Value |
|---|---|---|---|---|---|---|---|
| R2567403 | 131130126007 | Residential | 2026 | 1 | 425,809 | 26,610 | 30,020 |
| Account | Owner Name | Address |
|---|---|---|
| R2567403 | BELANGER JEREMY | 10743 S RIVER LN CORNELL, MI 498189219 |
| R2567403 | BELANGER KRISTA |
| Account | Parcel | Account Type | Tax Year | Buildings | Actual Value | Local Govt Assessed Value | School Assessed Value |
|---|---|---|---|---|---|---|---|
| R2567403 | 131130126007 | Residential | 2026 | 1 | 425,809 | 26,610 | 30,020 |
| Reception | Rec Date | Type | Grantor | Grantee | Doc Fee | Sale Date | Sale Price |
|---|---|---|---|---|---|---|---|
| 3073958 | NA | SUB | SUBDIVISION | OVERLOOK AT FIRESTONE RPLT C | 0.00 | NA | 0 |
| 3102313 | 09-03-2003 | WD | OVERLOOK AT FIRESTONE LLC | PARKER ADAM CONSTRUCTION INC | 5.60 | 08-15-2003 | 56,000 |
| 3133907 | 12-10-2003 | WD | PARKER ADAM CONSTRUCTION INC | BELANGER JEREMY & | 19.46 | 11-25-2003 | 194,600 |
*If the hyperlink for the reception number does not work, try a manual search in the Clerk and Recorder records. Use the Grantor or Grantee in your search.
| Account | Parcel | Account Type | Tax Year | Buildings | Actual Value | Local Govt Assessed Value | School Assessed Value |
|---|---|---|---|---|---|---|---|
| R2567403 | 131130126007 | Residential | 2026 | 1 | 425,809 | 26,610 | 30,020 |
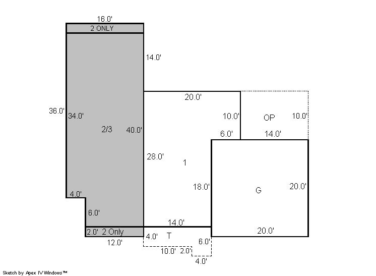
Building 1
| AccountNo | Building ID | Occupancy |
|---|---|---|
| R2567403 | 1 | Single Family Residential |
| ID | Type | NBHD | Occupancy | % Complete | Bedrooms | Baths |
|---|---|---|---|---|---|---|
| 1 | Residential | 3F1031 | Single Family Residential | 100 | 3 | 2.00 |
| ID | Exterior | Roof Cover | Interior | HVAC | Perimeter | Units | Unit Type | Make |
|---|---|---|---|---|---|---|---|---|
| 1 | Frame Vinyl | Composition Shingle | Drywall | Central Air to Air | 0 | 0 | NA | NA |
| ID | Square Ft | Condo SF | Total Basement SF | Finished Basement SF | Garage SF | Carport SF | Balcony SF | Porch SF |
|---|---|---|---|---|---|---|---|---|
| 1 | 1,740 | 0 | 0 | 0 | 400 | 0 | 0 | 64 |
| ID | Built As | Square Ft | Year Built | Stories | Length | Width |
|---|---|---|---|---|---|---|
| 1.00 | Split Level | 1,740 | 2003 | 1 | 0 | 0 |
| ID | Detail Type | Description | Units |
|---|---|---|---|
| 1 | Add On | Unfinished Area | 616.00 |
| 1 | Fixture | Full Bath | 2.00 |
| 1 | Garage | Attached | 400.00 |
| 1 | Porch | Slab Roof Ceil | 140.00 |
| 1 | Porch | Slab w/Steps | 64.00 |
| 1 | Rough In | Rough In | 1.00 |
| Account | Parcel | Account Type | Tax Year | Buildings | Actual Value | Local Govt Assessed Value | School Assessed Value |
|---|---|---|---|---|---|---|---|
| R2567403 | 131130126007 | Residential | 2026 | 1 | 425,809 | 26,610 | 30,020 |
| Type | Code | Description | Actual Value | Local Govt Assessed Value | School Assessed Value | Acres | Land SqFt |
|---|---|---|---|---|---|---|---|
| Improvement | 1212 | SINGLE FAMILY RESIDENTIAL IMPROVEMENTS | 340,809 | 21,300 | 24,030 | 0.000 | 0 |
| Land | 1112 | SINGLE FAMILY RESIDENTIAL-LAND | 85,000 | 5,310 | 5,990 | 0.182 | 7,925 |
| Totals | - | - | 425,809 | 26,610 | 30,020 | 0.182 | 7,925 |
Comparable sales for your Residential or Commercial property may be found using our SALES SEARCH TOOL
Values are updated annually on May 1st for Real Property and June 15th for Personal Property and Oil and Gas.
| Account | Parcel | Account Type | Tax Year | Buildings | Actual Value | Local Govt Assessed Value | School Assessed Value |
|---|---|---|---|---|---|---|---|
| R2567403 | 131130126007 | Residential | 2026 | 1 | 425,809 | 26,610 | 30,020 |
| Tax Area | District ID | District Name | Local Govt Mill Levy |
School Mill Levy |
Estimated Taxes |
|---|---|---|---|---|---|
| 2556 | 0900 | CARBON VALLEY REC | 4.427 | 0.000 | $117.80 |
| 2556 | 0406 | FIRESTONE TOWN | 6.805 | 0.000 | $181.08 |
| 2556 | 0507 | FREDERICK-FIRESTONE FIRE | 15.559 | 0.000 | $414.02 |
| 2556 | 1050 | HIGH PLAINS LIBRARY | 3.044 | 0.000 | $81.00 |
| 2556 | 0301 | NORTHERN COLORADO WATER (NCW) | 1.000 | 0.000 | $26.61 |
| 2556 | 0213 | SCHOOL DIST RE1J-LONGMONT | 0.000 | 57.717 | $1,732.66 |
| 2556 | 0620 | ST VRAIN SANITATION | 0.316 | 0.000 | $8.41 |
| 2556 | 0100 | WELD COUNTY | 15.956 | 0.000 | $424.59 |
| Total | - | - | 47.107 | 57.717 | $2,986.18 |
The estimate of tax is based on the prior year mill levy and the 2025 projected assessment rates. Mill levies and tax estimates will be updated yearly on December 22nd for the current year. Additional information can be found at https://assessor.weld.gov



