Account: R2577586
April 1, 2026
| Account | Parcel | Account Type | Tax Year | Buildings | Actual Value | Local Govt Assessed Value | School Assessed Value |
|---|---|---|---|---|---|---|---|
| R2577586 | 095916302005 | Residential | 2026 | 4 | 597,161 | 37,330 | 42,100 |
| Legal |
|---|
| GR 1PS-1 L1 PETERSON SUB 1ST FILING |
| Subdivision | Block | Lot | Land Economic Area |
|---|---|---|---|
| PETERSON SUB 1ST FG | 1 | PETERSON |
| Property Address | Property City | Section | Township | Range |
|---|---|---|---|---|
| 6805 W 28TH ST | GREELEY | 16 | 05 | 66 |
| Account | Parcel | Account Type | Tax Year | Buildings | Actual Value | Local Govt Assessed Value | School Assessed Value |
|---|---|---|---|---|---|---|---|
| R2577586 | 095916302005 | Residential | 2026 | 4 | 597,161 | 37,330 | 42,100 |
| Account | Owner Name | Address |
|---|---|---|
| R2577586 | AMEZCUA FAMILY TRUST | 6805 W 28TH ST GREELEY, CO 806349656 |
| Account | Parcel | Account Type | Tax Year | Buildings | Actual Value | Local Govt Assessed Value | School Assessed Value |
|---|---|---|---|---|---|---|---|
| R2577586 | 095916302005 | Residential | 2026 | 4 | 597,161 | 37,330 | 42,100 |
| Reception | Rec Date | Type | Grantor | Grantee | Doc Fee | Sale Date | Sale Price |
|---|---|---|---|---|---|---|---|
| 01896310 | 07-01-1982 | WDN | 0.00 | 01-01-1900 | 0 | ||
| 1539939 | NA | SUB | SUBDIVISION | PETERSON 1ST FG | 0.00 | NA | 0 |
| 2218434 | 06-28-1990 | WD | WIRE MORRISE H & WANDA M | ROOSEVELT GEORGE G & DRU A | 10.65 | 06-26-1990 | 106,500 |
| 2312961 | 12-02-1992 | WD | ROOSEVELT GEORGE G & DRU A | SELL DOUGLAS & NANCY | 11.57 | 11-30-1992 | 115,700 |
| 2464045 | 11-16-1995 | QCN | SELL DOUGLAS & NANCY | SELL NANCY | 0.00 | 11-16-1995 | 0 |
| 2499160 | 07-01-1996 | WD | SELL NANCY | RODEN JAMES C | 16.00 | 06-28-1996 | 160,000 |
| 3928913 | 05-01-2013 | PRDNE | RODEN JIMMY C | JUNGE CHRISTOPHER C | 0.00 | 04-30-2013 | 0 |
| 4061960 | 11-17-2014 | WD | JUNGE CHRISTOPHER C; LINTS DERIK S | JANSSEN ASHTON T; JANSSEN AMY D | 41.00 | 11-14-2014 | 410,000 |
| 4070260 | 12-22-2014 | QCN | JANSSEN ASHTON T; JANSSEN AMY D | JANSSEN FARMS LLC | 0.00 | 12-17-2014 | 0 |
| 4216651 | 07-06-2016 | QCN | JANSSEN FARMS LLC | JANSSEN CATTLE LLC | 0.00 | 07-05-2016 | 0 |
| 4244727 | 10-13-2016 | SWDN | JANSSEN ASHTON T; JANSSEN AMY D | JANSSEN FARMS LLC | 0.00 | 10-13-2016 | 0 |
| 4256041 | 11-23-2016 | WD | JANSSEN FARMS LLC | STEVENS RICHARD T | 47.80 | 11-22-2016 | 478,000 |
| 4271623 | 01-20-2017 | QCN | STEVENS RICHARD T | MOTHERLODE LLC | 0.00 | 01-17-2017 | 0 |
| 4761721 | 09-30-2021 | WD | MOTHERLODE LLC | AMEZCUA LUIS | 67.50 | 09-24-2021 | 675,000 |
| 4855290 | 09-15-2022 | WDN | AMEZCUA LUIS | AMEZCUA FAMILY TRUST | 0.00 | 09-13-2022 | 0 |
*If the hyperlink for the reception number does not work, try a manual search in the Clerk and Recorder records. Use the Grantor or Grantee in your search.
| Account | Parcel | Account Type | Tax Year | Buildings | Actual Value | Local Govt Assessed Value | School Assessed Value |
|---|---|---|---|---|---|---|---|
| R2577586 | 095916302005 | Residential | 2026 | 4 | 597,161 | 37,330 | 42,100 |
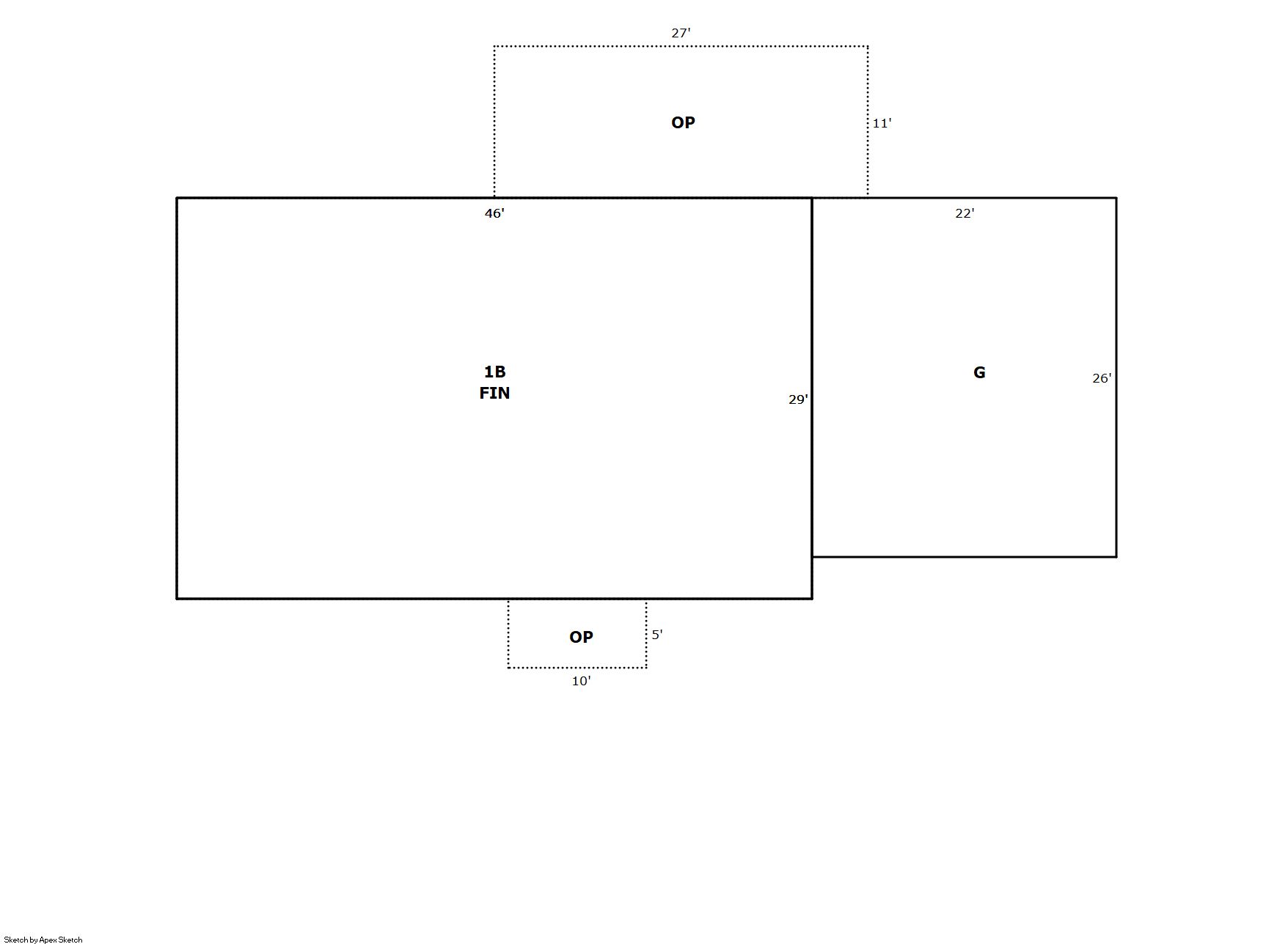
Building 1
| AccountNo | Building ID | Occupancy |
|---|---|---|
| R2577586 | 1 | Single Family Residential |
| ID | Type | NBHD | Occupancy | % Complete | Bedrooms | Baths |
|---|---|---|---|---|---|---|
| 1 | Residential | 2G0060 | Single Family Residential | 100 | 5 | 3.00 |
| ID | Exterior | Roof Cover | Interior | HVAC | Perimeter | Units | Unit Type | Make |
|---|---|---|---|---|---|---|---|---|
| 1 | Frame Masonry Veneer | Composition Shingle | Drywall | Central Air to Air | 150 | 0 | NA | NA |
| ID | Square Ft | Condo SF | Total Basement SF | Finished Basement SF | Garage SF | Carport SF | Balcony SF | Porch SF |
|---|---|---|---|---|---|---|---|---|
| 1 | 1,334 | 0 | 1,334 | 1,334 | 572 | 0 | 0 | 347 |
| ID | Built As | Square Ft | Year Built | Stories | Length | Width |
|---|---|---|---|---|---|---|
| 1.00 | Ranch 1 Story | 1,334 | 1969 | 1 | 0 | 0 |
| ID | Detail Type | Description | Units |
|---|---|---|---|
| 1 | Add On | Fireplace Wood | 1.00 |
| 1 | Basement | Finished | 1334.00 |
| 1 | Basement | Total Basement SF | 1334.00 |
| 1 | Fixture | Full Bath | 3.00 |
| 1 | Garage | Attached | 572.00 |
| 1 | Porch | Slab Roof Ceil | 347.00 |
Building 2
| AccountNo | Building ID | Occupancy |
|---|---|---|
| R2577586 | 2 | Shed - Cattle |
| ID | Type | NBHD | Occupancy | % Complete | Bedrooms | Baths |
|---|---|---|---|---|---|---|
| 2 | Out Building | NA | Shed - Cattle | 100 | 0 | 0.00 |
| ID | Exterior | Roof Cover | Interior | HVAC | Perimeter | Units | Unit Type | Make |
|---|---|---|---|---|---|---|---|---|
| 2 | NA | NA | NA | None | 120 | 0 | NA | NA |
| ID | Square Ft | Condo SF | Total Basement SF | Finished Basement SF | Garage SF | Carport SF | Balcony SF | Porch SF |
|---|---|---|---|---|---|---|---|---|
| 2 | 1,600 | 0 | 0 | 0 | 0 | 0 | 0 | 0 |
| ID | Built As | Square Ft | Year Built | Stories | Length | Width |
|---|---|---|---|---|---|---|
| 2.00 | Shed - Cattle | 1,600 | 1976 | 1 | 80 | 20 |
No Additional Details for Building 2
Building 3
| AccountNo | Building ID | Occupancy |
|---|---|---|
| R2577586 | 3 | Quonset |
| ID | Type | NBHD | Occupancy | % Complete | Bedrooms | Baths |
|---|---|---|---|---|---|---|
| 3 | Out Building | NA | Quonset | 100 | 0 | 0.00 |
| ID | Exterior | Roof Cover | Interior | HVAC | Perimeter | Units | Unit Type | Make |
|---|---|---|---|---|---|---|---|---|
| 3 | NA | NA | NA | None | 88 | 0 | NA | NA |
| ID | Square Ft | Condo SF | Total Basement SF | Finished Basement SF | Garage SF | Carport SF | Balcony SF | Porch SF |
|---|---|---|---|---|---|---|---|---|
| 3 | 480 | 0 | 0 | 0 | 0 | 0 | 0 | 0 |
| ID | Built As | Square Ft | Year Built | Stories | Length | Width |
|---|---|---|---|---|---|---|
| 3.00 | Quonset | 480 | 1990 | 1 | 24 | 20 |
No Additional Details for Building 3
Building 4
| AccountNo | Building ID | Occupancy |
|---|---|---|
| R2577586 | 4 | Utility Building |
| ID | Type | NBHD | Occupancy | % Complete | Bedrooms | Baths |
|---|---|---|---|---|---|---|
| 4 | Out Building | NA | Utility Building | 100 | 0 | 0.00 |
| ID | Exterior | Roof Cover | Interior | HVAC | Perimeter | Units | Unit Type | Make |
|---|---|---|---|---|---|---|---|---|
| 4 | NA | NA | NA | None | 64 | 0 | NA | NA |
| ID | Square Ft | Condo SF | Total Basement SF | Finished Basement SF | Garage SF | Carport SF | Balcony SF | Porch SF |
|---|---|---|---|---|---|---|---|---|
| 4 | 220 | 0 | 0 | 0 | 0 | 0 | 0 | 0 |
| ID | Built As | Square Ft | Year Built | Stories | Length | Width |
|---|---|---|---|---|---|---|
| 4.00 | Utility Building | 220 | 1990 | 1 | 22 | 10 |
No Additional Details for Building 4
| Account | Parcel | Account Type | Tax Year | Buildings | Actual Value | Local Govt Assessed Value | School Assessed Value |
|---|---|---|---|---|---|---|---|
| R2577586 | 095916302005 | Residential | 2026 | 4 | 597,161 | 37,330 | 42,100 |
| Type | Code | Description | Actual Value | Local Govt Assessed Value | School Assessed Value | Acres | Land SqFt |
|---|---|---|---|---|---|---|---|
| Improvement | 1212 | SINGLE FAMILY RESIDENTIAL IMPROVEMENTS | 426,197 | 26,640 | 30,050 | 0.000 | 0 |
| Land | 1112 | SINGLE FAMILY RESIDENTIAL-LAND | 170,964 | 10,690 | 12,050 | 1.790 | 77,972 |
| Totals | - | - | 597,161 | 37,330 | 42,100 | 1.790 | 77,972 |
Comparable sales for your Residential or Commercial property may be found using our SALES SEARCH TOOL
Values are updated annually on May 1st for Real Property and June 15th for Personal Property and Oil and Gas.
| Account | Parcel | Account Type | Tax Year | Buildings | Actual Value | Local Govt Assessed Value | School Assessed Value |
|---|---|---|---|---|---|---|---|
| R2577586 | 095916302005 | Residential | 2026 | 4 | 597,161 | 37,330 | 42,100 |
| Tax Area | District ID | District Name | Local Govt Mill Levy |
School Mill Levy |
Estimated Taxes |
|---|---|---|---|---|---|
| 0683 | 0700 | AIMS JUNIOR COLLEGE | 6.313 | 0.000 | $235.66 |
| 0683 | 0411 | GREELEY CITY | 11.274 | 0.000 | $420.86 |
| 0683 | 1050 | HIGH PLAINS LIBRARY | 3.044 | 0.000 | $113.63 |
| 0683 | 0301 | NORTHERN COLORADO WATER (NCW) | 1.000 | 0.000 | $37.33 |
| 0683 | 0206 | SCHOOL DIST 6-GREELEY | 0.000 | 47.615 | $2,004.59 |
| 0683 | 0100 | WELD COUNTY | 15.956 | 0.000 | $595.64 |
| 0683 | 1200 | WEST GREELEY CONSERVATION | 0.414 | 0.000 | $15.45 |
| Total | - | - | 38.001 | 47.615 | $3,423.17 |
The estimate of tax is based on the prior year mill levy and the 2025 projected assessment rates. Mill levies and tax estimates will be updated yearly on December 22nd for the current year. Additional information can be found at https://assessor.weld.gov


