Account: R2593003
April 1, 2026
| Account | Parcel | Account Type | Tax Year | Buildings | Actual Value | Local Govt Assessed Value | School Assessed Value |
|---|---|---|---|---|---|---|---|
| R2593003 | 131130332002 | Residential | 2026 | 3 | 499,572 | 31,220 | 35,220 |
| Legal |
|---|
| WGEAR L2 BLK6 WOLFF GARDENS & EVANS ADD RESUB |
| Subdivision | Block | Lot | Land Economic Area |
|---|---|---|---|
| WOLFF GARDENS EVANS ADD RESUB | 6 | 2 | EVANSTON |
| Property Address | Property City | Section | Township | Range |
|---|---|---|---|---|
| 220 JOHNSON ST | WELD | 30 | 02 | 67 |
| Account | Parcel | Account Type | Tax Year | Buildings | Actual Value | Local Govt Assessed Value | School Assessed Value |
|---|---|---|---|---|---|---|---|
| R2593003 | 131130332002 | Residential | 2026 | 3 | 499,572 | 31,220 | 35,220 |
| Account | Owner Name | Address |
|---|---|---|
| R2593003 | JKKD 3785 LLC | PO BOX 520 DACONO, CO 805140520 |
| Account | Parcel | Account Type | Tax Year | Buildings | Actual Value | Local Govt Assessed Value | School Assessed Value |
|---|---|---|---|---|---|---|---|
| R2593003 | 131130332002 | Residential | 2026 | 3 | 499,572 | 31,220 | 35,220 |
| Reception | Rec Date | Type | Grantor | Grantee | Doc Fee | Sale Date | Sale Price |
|---|---|---|---|---|---|---|---|
| 3087880 | NA | SUB | SUBDIVISION | WOLFF GARDENS & EVANS ADD RESUB | 0.00 | NA | 0 |
| 3788316 | 08-25-2011 | PTD | HOWELL DALE E | FEDERAL HOME LOAN MORTGAGE CORPORATION | 0.00 | 08-24-2011 | 0 |
| 3875549 | 09-24-2012 | SWDE | FEDERAL HOME LOAN MORTGAGE CORPORATION | JKKD 3785 LLC | 13.10 | 09-21-2012 | 131,000 |
*If the hyperlink for the reception number does not work, try a manual search in the Clerk and Recorder records. Use the Grantor or Grantee in your search.
| Account | Parcel | Account Type | Tax Year | Buildings | Actual Value | Local Govt Assessed Value | School Assessed Value |
|---|---|---|---|---|---|---|---|
| R2593003 | 131130332002 | Residential | 2026 | 3 | 499,572 | 31,220 | 35,220 |
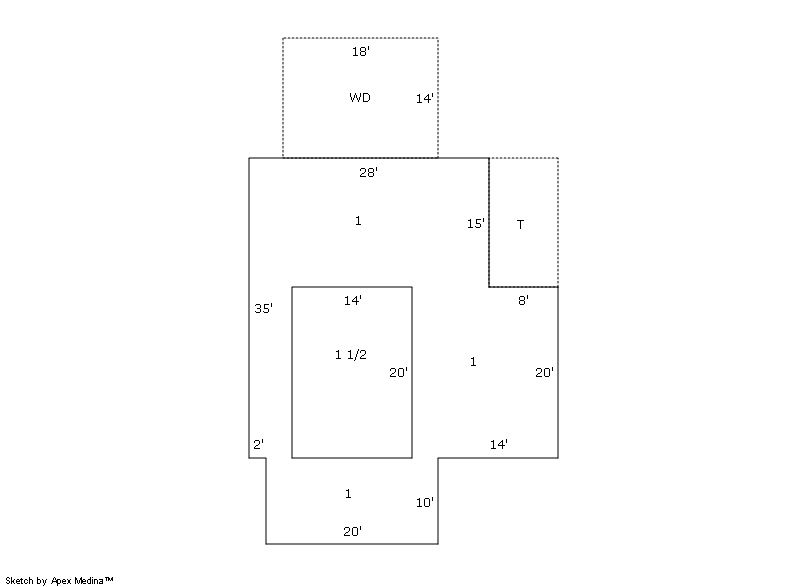
Building 1
| AccountNo | Building ID | Occupancy |
|---|---|---|
| R2593003 | 1 | Single Family Residential |
| ID | Type | NBHD | Occupancy | % Complete | Bedrooms | Baths |
|---|---|---|---|---|---|---|
| 1 | Residential | 3K0023 | Single Family Residential | 100 | 4 | 1.00 |
| ID | Exterior | Roof Cover | Interior | HVAC | Perimeter | Units | Unit Type | Make |
|---|---|---|---|---|---|---|---|---|
| 1 | Frame Masonry Veneer | Formed Seam Metal | Drywall | Forced Air | 0 | 0 | NA | NA |
| ID | Square Ft | Condo SF | Total Basement SF | Finished Basement SF | Garage SF | Carport SF | Balcony SF | Porch SF |
|---|---|---|---|---|---|---|---|---|
| 1 | 1,620 | 0 | 0 | 0 | 0 | 0 | 0 | 120 |
| ID | Built As | Square Ft | Year Built | Stories | Length | Width |
|---|---|---|---|---|---|---|
| 1.00 | 1 1/2 Story Fin | 1,620 | 1918 | 1 | 0 | 0 |
| ID | Detail Type | Description | Units |
|---|---|---|---|
| 1 | Fixture | Full Bath | 1.00 |
| 1 | Porch | Open Slab | 120.00 |
| 1 | Porch | Wood Deck | 252.00 |
Building 2
| AccountNo | Building ID | Occupancy |
|---|---|---|
| R2593003 | 2 | Secondary Single Family Res |
| ID | Type | NBHD | Occupancy | % Complete | Bedrooms | Baths |
|---|---|---|---|---|---|---|
| 2 | Residential | 3K0023 | Secondary Single Family Res | 100 | 2 | 1.00 |
| ID | Exterior | Roof Cover | Interior | HVAC | Perimeter | Units | Unit Type | Make |
|---|---|---|---|---|---|---|---|---|
| 2 | Frame Vinyl | Composition Shingle | Drywall | Forced Air | 0 | 0 | NA | NA |
| ID | Square Ft | Condo SF | Total Basement SF | Finished Basement SF | Garage SF | Carport SF | Balcony SF | Porch SF |
|---|---|---|---|---|---|---|---|---|
| 2 | 888 | 0 | 0 | 0 | 0 | 0 | 0 | 154 |
| ID | Built As | Square Ft | Year Built | Stories | Length | Width |
|---|---|---|---|---|---|---|
| 2.00 | Ranch 1 Story | 888 | 1908 | 1 | 0 | 0 |
| ID | Detail Type | Description | Units |
|---|---|---|---|
| 2 | Fixture | Full Bath | 1.00 |
| 2 | Porch | Wood Deck | 154.00 |
Building 3
| AccountNo | Building ID | Occupancy |
|---|---|---|
| R2593003 | 3 | Shed - Utility |
| ID | Type | NBHD | Occupancy | % Complete | Bedrooms | Baths |
|---|---|---|---|---|---|---|
| 3 | Out Building | NA | Shed - Utility | 100 | 0 | 0.00 |
| ID | Exterior | Roof Cover | Interior | HVAC | Perimeter | Units | Unit Type | Make |
|---|---|---|---|---|---|---|---|---|
| 3 | NA | NA | NA | None | 160 | 0 | NA | NA |
| ID | Square Ft | Condo SF | Total Basement SF | Finished Basement SF | Garage SF | Carport SF | Balcony SF | Porch SF |
|---|---|---|---|---|---|---|---|---|
| 3 | 1,336 | 0 | 0 | 0 | 0 | 0 | 0 | 0 |
| ID | Built As | Square Ft | Year Built | Stories | Length | Width |
|---|---|---|---|---|---|---|
| 3.00 | Shed - Utility | 1,336 | 1945 | 1 | 0 | 0 |
| ID | Detail Type | Description | Units |
|---|---|---|---|
| 3 | Add On | Concrete Slab | 1336.00 |
| Account | Parcel | Account Type | Tax Year | Buildings | Actual Value | Local Govt Assessed Value | School Assessed Value |
|---|---|---|---|---|---|---|---|
| R2593003 | 131130332002 | Residential | 2026 | 3 | 499,572 | 31,220 | 35,220 |
| Type | Code | Description | Actual Value | Local Govt Assessed Value | School Assessed Value | Acres | Land SqFt |
|---|---|---|---|---|---|---|---|
| Improvement | 1212 | SINGLE FAMILY RESIDENTIAL IMPROVEMENTS | 379,572 | 23,720 | 26,760 | 0.000 | 0 |
| Land | 1112 | SINGLE FAMILY RESIDENTIAL-LAND | 120,000 | 7,500 | 8,460 | 0.344 | 14,980 |
| Totals | - | - | 499,572 | 31,220 | 35,220 | 0.344 | 14,980 |
Comparable sales for your Residential or Commercial property may be found using our SALES SEARCH TOOL
Values are updated annually on May 1st for Real Property and June 15th for Personal Property and Oil and Gas.
| Account | Parcel | Account Type | Tax Year | Buildings | Actual Value | Local Govt Assessed Value | School Assessed Value |
|---|---|---|---|---|---|---|---|
| R2593003 | 131130332002 | Residential | 2026 | 3 | 499,572 | 31,220 | 35,220 |
| Tax Area | District ID | District Name | Local Govt Mill Levy |
School Mill Levy |
Estimated Taxes |
|---|---|---|---|---|---|
| 1284 | 0900 | CARBON VALLEY REC | 4.427 | 0.000 | $138.21 |
| 1284 | 0507 | FREDERICK-FIRESTONE FIRE | 15.559 | 0.000 | $485.75 |
| 1284 | 1050 | HIGH PLAINS LIBRARY | 3.044 | 0.000 | $95.03 |
| 1284 | 0301 | NORTHERN COLORADO WATER (NCW) | 1.000 | 0.000 | $31.22 |
| 1284 | 0213 | SCHOOL DIST RE1J-LONGMONT | 0.000 | 57.717 | $2,032.79 |
| 1284 | 0620 | ST VRAIN SANITATION | 0.316 | 0.000 | $9.87 |
| 1284 | 0100 | WELD COUNTY | 15.956 | 0.000 | $498.15 |
| Total | - | - | 40.302 | 57.717 | $3,291.02 |
The estimate of tax is based on the prior year mill levy and the 2025 projected assessment rates. Mill levies and tax estimates will be updated yearly on December 22nd for the current year. Additional information can be found at https://assessor.weld.gov





