Account: R2602803
April 1, 2026
| Account | Parcel | Account Type | Tax Year | Buildings | Actual Value | Local Govt Assessed Value | School Assessed Value |
|---|---|---|---|---|---|---|---|
| R2602803 | 095907404001 | Residential | 2026 | 1 | 407,491 | 25,470 | 28,730 |
| Legal |
|---|
| GR 1MS L1 BLK4 MOUNTAIN SHADOWS 1ST FG |
| Subdivision | Block | Lot | Land Economic Area |
|---|---|---|---|
| MOUNTAIN SHADOWS SUB 1ST FG | 4 | 1 | MOUNTAIN SHADOWS |
| Property Address | Property City | Section | Township | Range |
|---|---|---|---|---|
| 8412 W 19TH STREET RD | GREELEY | 07 | 05 | 66 |
| Account | Parcel | Account Type | Tax Year | Buildings | Actual Value | Local Govt Assessed Value | School Assessed Value |
|---|---|---|---|---|---|---|---|
| R2602803 | 095907404001 | Residential | 2026 | 1 | 407,491 | 25,470 | 28,730 |
| Account | Owner Name | Address |
|---|---|---|
| R2602803 | CONTRERAS EDUARDO GARIBAY | 8412 19TH STREET RD GREELEY, CO 806344643 |
| Account | Parcel | Account Type | Tax Year | Buildings | Actual Value | Local Govt Assessed Value | School Assessed Value |
|---|---|---|---|---|---|---|---|
| R2602803 | 095907404001 | Residential | 2026 | 1 | 407,491 | 25,470 | 28,730 |
| Reception | Rec Date | Type | Grantor | Grantee | Doc Fee | Sale Date | Sale Price |
|---|---|---|---|---|---|---|---|
| 3091602 | NA | SUB | SUBDIVISION | MOUNTAIN SHADOWS 1ST FG | 0.00 | NA | 0 |
| 3101227 | 08-29-2003 | WD | MOUNTAIN SHADOWS OF GREELEY LLC | COOPER LYLE | 12.72 | 08-25-2003 | 127,200 |
| 3237894 | 11-23-2004 | PTD | COOPER LYLE | WELLS FARGO BANK NA | 0.00 | 11-22-2004 | 0 |
| 3378387 | 04-11-2006 | SWD | WELLS FARGO BANK NA | REDEKER RONALD D & | 10.10 | 03-08-2006 | 101,000 |
| 3548035 | 04-16-2008 | QCN | REDEKER RONALD D & | REDEKER RONALD D & | 0.00 | 04-15-2008 | 0 |
| 3549321 | 04-23-2008 | DTHC | REDEKER RONALD D & | REDEKER RONALD D & | 0.00 | 12-23-2006 | 0 |
| 3549323 | 04-23-2008 | WD | REDEKER RONALD D & | NELSON DORIS J & | 14.90 | 04-18-2008 | 149,000 |
| 3622558 | 05-13-2009 | WD | NELSON PERCY J | STEWART WILLIAM | 14.90 | 04-23-2009 | 149,000 |
| 3955658 | 08-13-2013 | WDE | STEWART WILLIAM | LONG TAMMERA L | 18.50 | 08-09-2013 | 185,000 |
| 4080867 | 02-04-2015 | QCN | LONG TAMMERA L | LONG HEATH R | 0.00 | 01-26-2015 | 0 |
| 4468179 | 02-21-2019 | WD | LONG STEVEN M; LONG HEATH R; LONG TAMMERA L | CONTRERAS EDUARDO GARIBAY; PINA ANGEL | 33.00 | 02-19-2019 | 330,000 |
| 4594435 | 05-29-2020 | WDN | PINA ANGEL | CONTRERAS EDUARDO GARIBAY | 0.00 | 05-22-2020 | 0 |
*If the hyperlink for the reception number does not work, try a manual search in the Clerk and Recorder records. Use the Grantor or Grantee in your search.
| Account | Parcel | Account Type | Tax Year | Buildings | Actual Value | Local Govt Assessed Value | School Assessed Value |
|---|---|---|---|---|---|---|---|
| R2602803 | 095907404001 | Residential | 2026 | 1 | 407,491 | 25,470 | 28,730 |
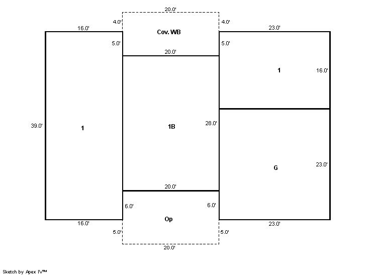
Building 1
| AccountNo | Building ID | Occupancy |
|---|---|---|
| R2602803 | 1 | Single Family Residential |
| ID | Type | NBHD | Occupancy | % Complete | Bedrooms | Baths |
|---|---|---|---|---|---|---|
| 1 | Residential | 2G2008 | Single Family Residential | 100 | 2 | 2.00 |
| ID | Exterior | Roof Cover | Interior | HVAC | Perimeter | Units | Unit Type | Make |
|---|---|---|---|---|---|---|---|---|
| 1 | Frame Masonry Veneer | Composition Shingle | Drywall | Central Air to Air | 0 | 0 | NA | NA |
| ID | Square Ft | Condo SF | Total Basement SF | Finished Basement SF | Garage SF | Carport SF | Balcony SF | Porch SF |
|---|---|---|---|---|---|---|---|---|
| 1 | 1,552 | 0 | 560 | 560 | 529 | 0 | 180 | 220 |
| ID | Built As | Square Ft | Year Built | Stories | Length | Width |
|---|---|---|---|---|---|---|
| 1.00 | Ranch 1 Story | 1,552 | 1971 | 1 | 0 | 0 |
| ID | Detail Type | Description | Units |
|---|---|---|---|
| 1 | Add On | Fireplace Wood | 1.00 |
| 1 | Balcony | Cover Wood Balc | 180.00 |
| 1 | Basement | Finished | 560.00 |
| 1 | Basement | Total Basement SF | 560.00 |
| 1 | Fixture | Full Bath | 2.00 |
| 1 | Garage | Attached | 529.00 |
| 1 | Porch | Slab Roof Ceil | 220.00 |
| Account | Parcel | Account Type | Tax Year | Buildings | Actual Value | Local Govt Assessed Value | School Assessed Value |
|---|---|---|---|---|---|---|---|
| R2602803 | 095907404001 | Residential | 2026 | 1 | 407,491 | 25,470 | 28,730 |
| Type | Code | Description | Actual Value | Local Govt Assessed Value | School Assessed Value | Acres | Land SqFt |
|---|---|---|---|---|---|---|---|
| Improvement | 1212 | SINGLE FAMILY RESIDENTIAL IMPROVEMENTS | 328,491 | 20,530 | 23,160 | 0.000 | 0 |
| Land | 1112 | SINGLE FAMILY RESIDENTIAL-LAND | 79,000 | 4,940 | 5,570 | 0.343 | 14,933 |
| Totals | - | - | 407,491 | 25,470 | 28,730 | 0.343 | 14,933 |
Comparable sales for your Residential or Commercial property may be found using our SALES SEARCH TOOL
Values are updated annually on May 1st for Real Property and June 15th for Personal Property and Oil and Gas.
| Account | Parcel | Account Type | Tax Year | Buildings | Actual Value | Local Govt Assessed Value | School Assessed Value |
|---|---|---|---|---|---|---|---|
| R2602803 | 095907404001 | Residential | 2026 | 1 | 407,491 | 25,470 | 28,730 |
| Tax Area | District ID | District Name | Local Govt Mill Levy |
School Mill Levy |
Estimated Taxes |
|---|---|---|---|---|---|
| 0446 | 0700 | AIMS JUNIOR COLLEGE | 6.313 | 0.000 | $160.79 |
| 0446 | 1051 | CLEARVIEW LIBRARY | 3.546 | 0.000 | $90.32 |
| 0446 | 0411 | GREELEY CITY | 11.274 | 0.000 | $287.15 |
| 0446 | 0301 | NORTHERN COLORADO WATER (NCW) | 1.000 | 0.000 | $25.47 |
| 0446 | 0204 | SCHOOL DIST RE4-WINDSOR | 0.000 | 46.646 | $1,340.14 |
| 0446 | 0100 | WELD COUNTY | 15.956 | 0.000 | $406.40 |
| 0446 | 1200 | WEST GREELEY CONSERVATION | 0.414 | 0.000 | $10.54 |
| Total | - | - | 38.503 | 46.646 | $2,320.81 |
The estimate of tax is based on the prior year mill levy and the 2025 projected assessment rates. Mill levies and tax estimates will be updated yearly on December 22nd for the current year. Additional information can be found at https://assessor.weld.gov



