Account: R2622103
April 5, 2026
| Account | Parcel | Account Type | Tax Year | Buildings | Actual Value | Local Govt Assessed Value | School Assessed Value |
|---|---|---|---|---|---|---|---|
| R2622103 | 095922235011 | Residential | 2026 | 1 | 278,982 | 17,440 | 19,670 |
| Legal |
|---|
| GR WFVC UNIT 611 BLDG 6 WEST FORK VILLAGE CONDO |
| Subdivision | Block | Lot | Land Economic Area |
|---|---|---|---|
| WEST FORK VILLAGE CONDO 5TH SUPP PHASE 6 | 611 | WEST FORK CONDOS |
| Property Address | Property City | Section | Township | Range |
|---|---|---|---|---|
| 5775 W 29TH ST 611 | GREELEY | 22 | 05 | 66 |
| Account | Parcel | Account Type | Tax Year | Buildings | Actual Value | Local Govt Assessed Value | School Assessed Value |
|---|---|---|---|---|---|---|---|
| R2622103 | 095922235011 | Residential | 2026 | 1 | 278,982 | 17,440 | 19,670 |
| Account | Owner Name | Address |
|---|---|---|
| R2622103 | KLAUCK BENJAMIN R | 5775 W 29TH ST UNIT 611 GREELEY, CO 806348341 |
| Account | Parcel | Account Type | Tax Year | Buildings | Actual Value | Local Govt Assessed Value | School Assessed Value |
|---|---|---|---|---|---|---|---|
| R2622103 | 095922235011 | Residential | 2026 | 1 | 278,982 | 17,440 | 19,670 |
| Reception | Rec Date | Type | Grantor | Grantee | Doc Fee | Sale Date | Sale Price |
|---|---|---|---|---|---|---|---|
| 3094316 | NA | SUB | SUBDIVISION | WEST FORK VILLAGE CONDOS 5TH SUPP PH 6 | 0.00 | NA | 0 |
| 3115233 | 10-09-2003 | WD | WEST FORK LLC | STOLZ JASON W & BOTT LAURA J | 12.94 | 10-03-2003 | 129,400 |
| 3352830 | 01-06-2006 | QCN | STOLZ JASON W & | BOTT LAURA J | 0.00 | 12-15-2005 | 0 |
| 3352831 | 01-06-2006 | QCN | BOTT LAURA J | BOTT LAURA J & | 0.00 | 12-23-2005 | 0 |
| 4153294 | 10-27-2015 | WD | BOTT HARVEY M; BOTT LAURA J | KLAUCK BENJAMIN R | 14.99 | 11-06-2015 | 149,900 |
*If the hyperlink for the reception number does not work, try a manual search in the Clerk and Recorder records. Use the Grantor or Grantee in your search.
| Account | Parcel | Account Type | Tax Year | Buildings | Actual Value | Local Govt Assessed Value | School Assessed Value |
|---|---|---|---|---|---|---|---|
| R2622103 | 095922235011 | Residential | 2026 | 1 | 278,982 | 17,440 | 19,670 |
Building 1
| AccountNo | Building ID | Occupancy |
|---|---|---|
| R2622103 | 1 | Condominium unit |
| ID | Type | NBHD | Occupancy | % Complete | Bedrooms | Baths |
|---|---|---|---|---|---|---|
| 1 | Condo | 2G0040 | Condominium unit | 100 | 2 | 1.00 |
| ID | Exterior | Roof Cover | Interior | HVAC | Perimeter | Units | Unit Type | Make |
|---|---|---|---|---|---|---|---|---|
| 1 | Frame Siding | Composition Shingle | Drywall | Central Air to Air | 0 | 1 | End | NA |
| ID | Square Ft | Condo SF | Total Basement SF | Finished Basement SF | Garage SF | Carport SF | Balcony SF | Porch SF |
|---|---|---|---|---|---|---|---|---|
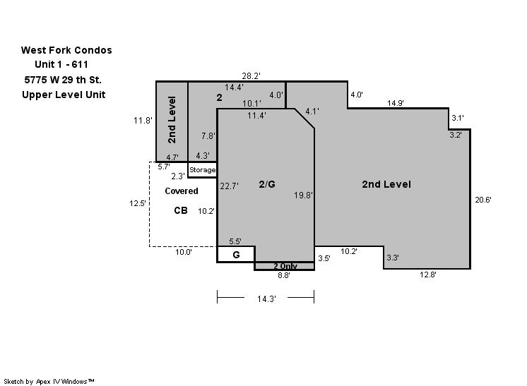
| 1 | 1,098 | 1,098 | 0 | 0 | 320 | 0 | 115 | 0 |
| ID | Built As | Square Ft | Year Built | Stories | Length | Width |
|---|---|---|---|---|---|---|
| 1.00 | Condo <= 3 Stories | 1,098 | 2003 | 2 | 0 | 0 |
| ID | Detail Type | Description | Units |
|---|---|---|---|
| 1 | Add On | Fireplace Gas | 1.00 |
| 1 | Balcony | Cover Concrete Balc | 115.00 |
| 1 | Fixture | Full Bath | 1.00 |
| 1 | Garage | Built In | 320.00 |
| 1 | Storage | Wood | 10.00 |
| Account | Parcel | Account Type | Tax Year | Buildings | Actual Value | Local Govt Assessed Value | School Assessed Value |
|---|---|---|---|---|---|---|---|
| R2622103 | 095922235011 | Residential | 2026 | 1 | 278,982 | 17,440 | 19,670 |
| Type | Code | Description | Actual Value | Local Govt Assessed Value | School Assessed Value | Acres | Land SqFt |
|---|---|---|---|---|---|---|---|
| Improvement | 1230 | CONDOS | 278,982 | 17,440 | 19,670 | 0.000 | 0 |
| Totals | - | - | 278,982 | 17,440 | 19,670 | 0.000 | 0 |
Comparable sales for your Residential or Commercial property may be found using our SALES SEARCH TOOL
Values are updated annually on May 1st for Real Property and June 15th for Personal Property and Oil and Gas.
| Account | Parcel | Account Type | Tax Year | Buildings | Actual Value | Local Govt Assessed Value | School Assessed Value |
|---|---|---|---|---|---|---|---|
| R2622103 | 095922235011 | Residential | 2026 | 1 | 278,982 | 17,440 | 19,670 |
| Tax Area | District ID | District Name | Local Govt Mill Levy |
School Mill Levy |
Estimated Taxes |
|---|---|---|---|---|---|
| 0683 | 0700 | AIMS JUNIOR COLLEGE | 6.313 | 0.000 | $110.10 |
| 0683 | 0411 | GREELEY CITY | 11.274 | 0.000 | $196.62 |
| 0683 | 1050 | HIGH PLAINS LIBRARY | 3.044 | 0.000 | $53.09 |
| 0683 | 0301 | NORTHERN COLORADO WATER (NCW) | 1.000 | 0.000 | $17.44 |
| 0683 | 0206 | SCHOOL DIST 6-GREELEY | 0.000 | 47.615 | $936.59 |
| 0683 | 0100 | WELD COUNTY | 15.956 | 0.000 | $278.27 |
| 0683 | 1200 | WEST GREELEY CONSERVATION | 0.414 | 0.000 | $7.22 |
| Total | - | - | 38.001 | 47.615 | $1,599.32 |
The estimate of tax is based on the prior year mill levy and the 2025 projected assessment rates. Mill levies and tax estimates will be updated yearly on December 22nd for the current year. Additional information can be found at https://assessor.weld.gov



