Account: R2638103
April 5, 2026
| Account | Parcel | Account Type | Tax Year | Buildings | Actual Value | Local Govt Assessed Value | School Assessed Value |
|---|---|---|---|---|---|---|---|
| R2638103 | 080729407007 | Residential | 2026 | 1 | 608,552 | 38,030 | 42,900 |
| Legal |
|---|
| WIN 2PH L7 BLK6 POUDRE HEIGHTS 2ND FG |
| Subdivision | Block | Lot | Land Economic Area |
|---|---|---|---|
| POUDRE HEIGHTS SUB 2ND FG | 6 | 7 | POUDRE HEIGHTS |
| Property Address | Property City | Section | Township | Range |
|---|---|---|---|---|
| 1774 DOLORES RIVER CT | WINDSOR | 29 | 06 | 67 |
| Account | Parcel | Account Type | Tax Year | Buildings | Actual Value | Local Govt Assessed Value | School Assessed Value |
|---|---|---|---|---|---|---|---|
| R2638103 | 080729407007 | Residential | 2026 | 1 | 608,552 | 38,030 | 42,900 |
| Account | Owner Name | Address |
|---|---|---|
| R2638103 | ASHBY CHRISTOPHER A | 1774 DOLORES RIVER CT WINDSOR, CO 805503364 |
| Account | Parcel | Account Type | Tax Year | Buildings | Actual Value | Local Govt Assessed Value | School Assessed Value |
|---|---|---|---|---|---|---|---|
| R2638103 | 080729407007 | Residential | 2026 | 1 | 608,552 | 38,030 | 42,900 |
| Reception | Rec Date | Type | Grantor | Grantee | Doc Fee | Sale Date | Sale Price |
|---|---|---|---|---|---|---|---|
| 3094269 | NA | SUB | SUBDIVISION | POUDRE HEIGHTS 2ND FG | 0.00 | NA | 0 |
| 3112918 | 10-02-2003 | SWD | P H LLC | HARTFORD HOMES INC | 245.67 | 09-29-2003 | 2,456,700 |
| 3201408 | 07-22-2004 | WD | HARTFORD HOMES INC | BECKER COMMUNITIES LLC | 117.85 | 07-19-2004 | 1,178,500 |
| 3780734 | 07-19-2011 | PTD | BECKER COMMUNITIES LLC | PRESTITO LLC | 0.00 | 07-14-2011 | 0 |
| 3975624 | 11-04-2013 | WD | PRESTITO LLC | ROBERT SMITH CONSTRUCTION INC | 2.70 | 11-04-2013 | 27,000 |
| 4196446 | 04-19-2016 | WD | ROBERT SMITH CONSTRUCTION INC | EYTCHESON KYLE; ASPEN AUTUMN | 5.70 | 04-18-2016 | 57,000 |
| 4560560 | 01-23-2020 | WD | ASPEN AUTUMN; EYTCHESON KYLE | ASHBY CHRISTOPHER A | 48.75 | 01-09-2020 | 487,500 |
*If the hyperlink for the reception number does not work, try a manual search in the Clerk and Recorder records. Use the Grantor or Grantee in your search.
| Account | Parcel | Account Type | Tax Year | Buildings | Actual Value | Local Govt Assessed Value | School Assessed Value |
|---|---|---|---|---|---|---|---|
| R2638103 | 080729407007 | Residential | 2026 | 1 | 608,552 | 38,030 | 42,900 |
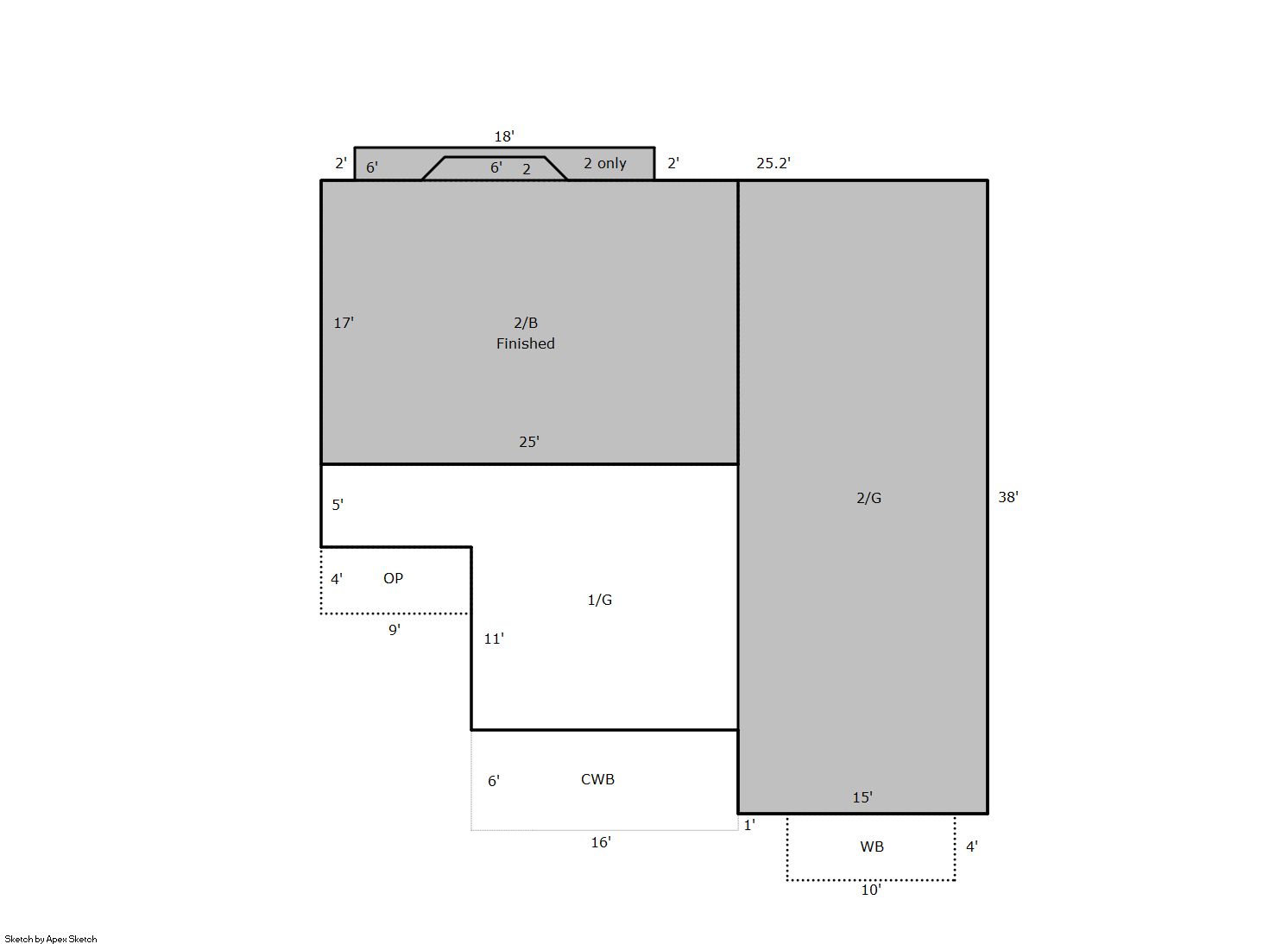
Building 1
| AccountNo | Building ID | Occupancy |
|---|---|---|
| R2638103 | 1 | Single Family Residential |
| ID | Type | NBHD | Occupancy | % Complete | Bedrooms | Baths |
|---|---|---|---|---|---|---|
| 1 | Residential | 2W3008 | Single Family Residential | 100 | 3 | 4.00 |
| ID | Exterior | Roof Cover | Interior | HVAC | Perimeter | Units | Unit Type | Make |
|---|---|---|---|---|---|---|---|---|
| 1 | Frame Siding | Composition Shingle | Drywall | Central Air to Air | 317 | 0 | NA | NA |
| ID | Square Ft | Condo SF | Total Basement SF | Finished Basement SF | Garage SF | Carport SF | Balcony SF | Porch SF |
|---|---|---|---|---|---|---|---|---|
| 1 | 2,337 | 0 | 425 | 425 | 871 | 0 | 96 | 36 |
| ID | Built As | Square Ft | Year Built | Stories | Length | Width |
|---|---|---|---|---|---|---|
| 1.00 | 2 Story | 2,337 | 2017 | 1 | 0 | 0 |
| ID | Detail Type | Description | Units |
|---|---|---|---|
| 1 | Balcony | Cover Wood Balc | 96.00 |
| 1 | Balcony | Wood Wood Fin | 40.00 |
| 1 | Basement | Finished | 425.00 |
| 1 | Basement | Total Basement SF | 425.00 |
| 1 | Fixture | Full Bath | 2.00 |
| 1 | Fixture | Half Bath | 2.00 |
| 1 | Fixture | Wet Bar | 1.00 |
| 1 | Garage | Attached | 871.00 |
| 1 | Porch | Slab Roof Ceil | 36.00 |
| Account | Parcel | Account Type | Tax Year | Buildings | Actual Value | Local Govt Assessed Value | School Assessed Value |
|---|---|---|---|---|---|---|---|
| R2638103 | 080729407007 | Residential | 2026 | 1 | 608,552 | 38,030 | 42,900 |
| Type | Code | Description | Actual Value | Local Govt Assessed Value | School Assessed Value | Acres | Land SqFt |
|---|---|---|---|---|---|---|---|
| Improvement | 1212 | SINGLE FAMILY RESIDENTIAL IMPROVEMENTS | 488,552 | 30,530 | 34,440 | 0.000 | 0 |
| Land | 1112 | SINGLE FAMILY RESIDENTIAL-LAND | 120,000 | 7,500 | 8,460 | 0.198 | 8,627 |
| Totals | - | - | 608,552 | 38,030 | 42,900 | 0.198 | 8,627 |
Comparable sales for your Residential or Commercial property may be found using our SALES SEARCH TOOL
Values are updated annually on May 1st for Real Property and June 15th for Personal Property and Oil and Gas.
| Account | Parcel | Account Type | Tax Year | Buildings | Actual Value | Local Govt Assessed Value | School Assessed Value |
|---|---|---|---|---|---|---|---|
| R2638103 | 080729407007 | Residential | 2026 | 1 | 608,552 | 38,030 | 42,900 |
| Tax Area | District ID | District Name | Local Govt Mill Levy |
School Mill Levy |
Estimated Taxes |
|---|---|---|---|---|---|
| 0436 | 0700 | AIMS JUNIOR COLLEGE | 6.313 | 0.000 | $240.08 |
| 0436 | 1051 | CLEARVIEW LIBRARY | 3.546 | 0.000 | $134.85 |
| 0436 | 0301 | NORTHERN COLORADO WATER (NCW) | 1.000 | 0.000 | $38.03 |
| 0436 | 0204 | SCHOOL DIST RE4-WINDSOR | 0.000 | 46.646 | $2,001.11 |
| 0436 | 0100 | WELD COUNTY | 15.956 | 0.000 | $606.81 |
| 0436 | 1200 | WEST GREELEY CONSERVATION | 0.414 | 0.000 | $15.74 |
| 0436 | 0428 | WINDSOR TOWN | 12.030 | 0.000 | $457.50 |
| 0436 | 0521 | WINDSOR-SEVERANCE FIRE | 8.535 | 0.000 | $324.59 |
| Total | - | - | 47.794 | 46.646 | $3,818.72 |
The estimate of tax is based on the prior year mill levy and the 2025 projected assessment rates. Mill levies and tax estimates will be updated yearly on December 22nd for the current year. Additional information can be found at https://assessor.weld.gov


