Account: R2651886

April 5, 2026

Account Parcel Account Type Tax Year Buildings Actual Value Local Govt Assessed Value School Assessed Value
R2651886 095926310004 Residential 2026 1 264,235 16,510 18,630

Legal
1WHP13-20 L20 BLK13 WEST HILL-N-PARK 1ST FG 1ST RPLT

Subdivision Block Lot Land Economic Area
WEST HILL N PARK 1ST FG 1ST RPLT 13 20 HILL N PARK

Property Address Property City Section Township Range
4309 N SHENANDOAH ST WELD 26 05 66




Account Parcel Account Type Tax Year Buildings Actual Value Local Govt Assessed Value School Assessed Value
R2651886 095926310004 Residential 2026 1 264,235 16,510 18,630

Account Owner Name Address
R2651886 SECRETARY OF HOUSING AND URBAN DEVELOPMENT C/O RESIDENTIAL ENHANCEMENTS INC ATTN: MORTGAGEE 6434 LAWRENCEVILLE HWY TUCKER, GA 300841706


Account Parcel Account Type Tax Year Buildings Actual Value Local Govt Assessed Value School Assessed Value
R2651886 095926310004 Residential 2026 1 264,235 16,510 18,630

Reception Rec Date Type Grantor Grantee Doc Fee Sale Date Sale Price
1620972 NA SUB SUBDIVISION WEST HILL N PARK 1ST FG 0.00 NA 0
1706661 12-22-1976 COZ WELD COUNTY ZONING CASE: Z-167* ZONING R-5 0.00 NA 0
2406181 09-12-1994 WD WEST HILL N PARK INC HOPP GERALDINE K 1.65 09-08-1994 16,500
2809595 11-29-2000 QCN HOPP GERALDINE K ARMIJO AURORA 0.00 11-24-2000 0
3559882 06-11-2008 QCN ARMIJO AURORA & ARMIJO LUCIO & 0.00 06-03-2008 0
3780976 07-20-2011 QCN ARMIJO AURORA ARMIJO LUCIO 0.00 06-03-2008 0
3780977 07-20-2011 DTHC ARMIJO LUCIO ARMIJO LUCIO (HEIRS OF) 0.00 07-20-2011 0
3891008 11-27-2012 AFFD ARMIJO LUCIO HOPP GERALDINE 0.00 11-27-2012 0
3891009 11-27-2012 DTHC ARMIJO AURORA MARIA ARMIJO AURORA MARIA 0.00 09-29-2012 0
3891010 11-27-2012 AFFD HOFF DON J HOPP GERALDINE 0.00 11-27-2012 0
3933384 05-20-2013 WD HOPP GERALDINE MDBP LP 4.90 05-16-2013 49,000
4693149 03-16-2021 WD MDBP LP HIGGINS VICTORIA 23.50 03-15-2021 235,000
4834251 06-10-2022 MHN HIGGINS VICTORIA HIGGINS VICTORIA 0.00 06-10-2022 0
4838855 06-30-2022 PRD HIGGINS VICTORIA CLARK JODY; CLARK SHANON 27.60 06-16-2022 276,000
5074095 12-24-2025 PTD CLARK JODY; CLARK SHANON COLORADO HOUSING AND FINANCE AUTHORITY 0.00 12-23-2025 0
5089687 03-19-2026 SWDN COLORADO HOUSING AND FINANCE AUTHORITY SECRETARY OF HOUSING AND URBAN DEVELOPMENT 0.00 01-21-2026 0



Account Parcel Account Type Tax Year Buildings Actual Value Local Govt Assessed Value School Assessed Value
R2651886 095926310004 Residential 2026 1 264,235 16,510 18,630

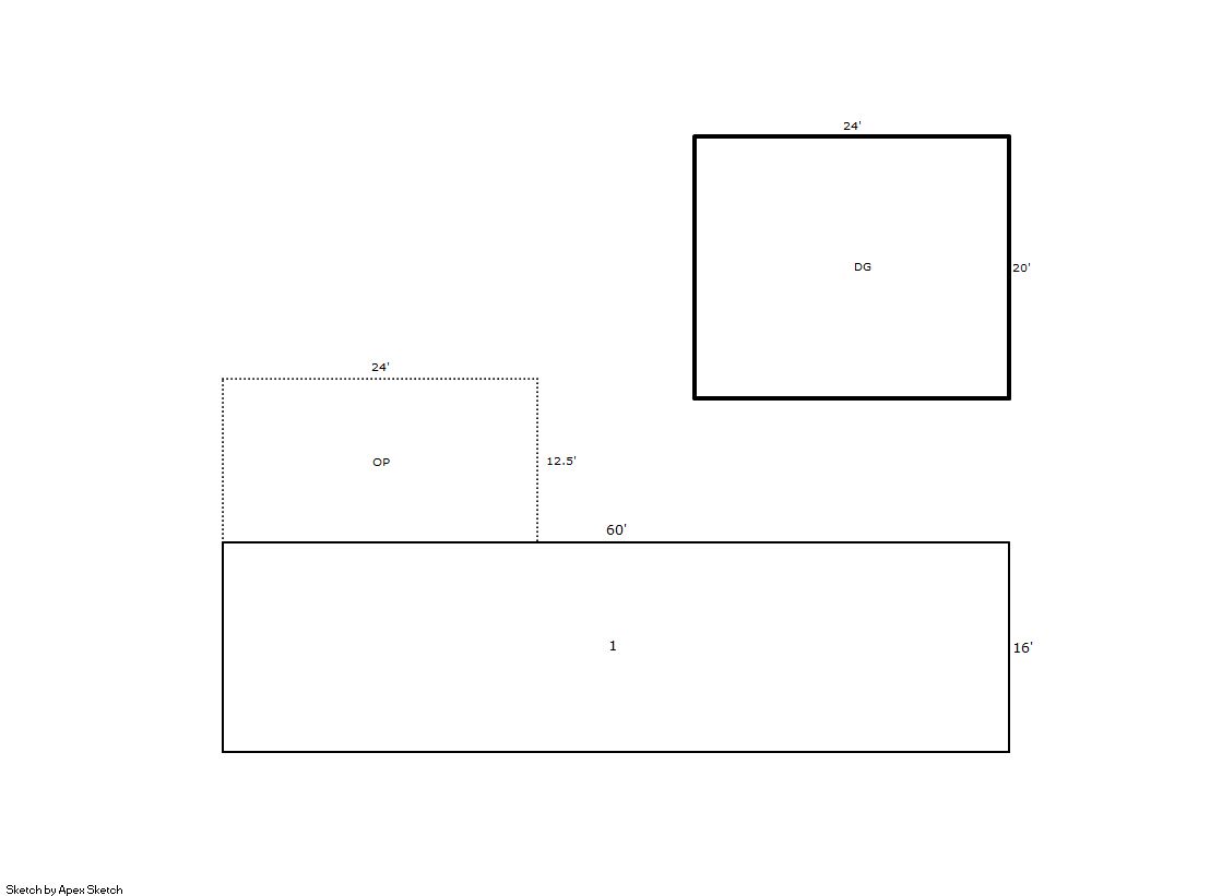
Building 1

AccountNo Building ID Occupancy
R2651886 1 Single Family Residential


ID Type NBHD Occupancy % Complete Bedrooms Baths
1 Manufactured Hm 2R0056 Single Family Residential 100 2 1.00


ID Exterior Roof Cover Interior HVAC Perimeter Units Unit Type Make
1 Hardboard Sheet Metal Ribbed Paneling Forced Air 152 0 NA Champion


ID Square Ft Condo SF Total Basement SF Finished Basement SF Garage SF Carport SF Balcony SF Porch SF
1 960 0 0 0 480 0 20 300


Built As Details for Building 1
ID Built As Square Ft Year Built Stories Length Width
1.00 Mnfctrd Home 1 Story 960 1993 0 60 16


Additional Details for Building 1
ID Detail Type Description Units
1 Balcony Wood Wood Fin 20.00
1 Fixture Full Bath 1.00
1 Garage Detached 480.00
1 Porch Slab Roof Ceil 300.00





Account Parcel Account Type Tax Year Buildings Actual Value Local Govt Assessed Value School Assessed Value
R2651886 095926310004 Residential 2026 1 264,235 16,510 18,630

Type Code Description Actual Value Local Govt Assessed Value School Assessed Value Acres Land SqFt
Improvement 1212 SINGLE FAMILY RESIDENTIAL IMPROVEMENTS 184,235 11,510 12,990 0.000 0
Land 1135 MANUFACTURED HOUSING-LAND 80,000 5,000 5,640 0.147 6,400
Totals - - 264,235 16,510 18,630 0.147 6,400


Account Parcel Account Type Tax Year Buildings Actual Value Local Govt Assessed Value School Assessed Value
R2651886 095926310004 Residential 2026 1 264,235 16,510 18,630

Tax Area District ID District Name Local Govt
Mill Levy
School
Mill Levy
Estimated
Taxes
5728 0700 AIMS JUNIOR COLLEGE 6.313 0.000 $104.23
5728 0510 FRONT RANGE FIRE RESCUE FIRE PROTECTION DISTRICT 11.483 0.000 $189.58
5728 1050 HIGH PLAINS LIBRARY 3.044 0.000 $50.26
5728 0301 NORTHERN COLORADO WATER (NCW) 1.000 0.000 $16.51
5728 0206 SCHOOL DIST 6-GREELEY 0.000 47.615 $887.07
5728 0100 WELD COUNTY 15.956 0.000 $263.43
5728 1200 WEST GREELEY CONSERVATION 0.414 0.000 $6.84
Total - - 38.21 47.615 $1,517.91


The estimate of tax is based on the prior year mill levy and the 2025 projected assessment rates. Mill levies and tax estimates will be updated yearly on December 22nd for the current year. Additional information can be found at https://assessor.weld.gov










Select Reports to Print: