Account: R2655986
April 4, 2026
| Account | Parcel | Account Type | Tax Year | Buildings | Actual Value | Local Govt Assessed Value | School Assessed Value |
|---|---|---|---|---|---|---|---|
| R2655986 | 095926312003 | Residential | 2026 | 1 | 341,507 | 21,340 | 24,080 |
| Legal |
|---|
| 1WHP11-17 L17 BLK11 WEST HILL-N-PARK 1ST FILING 1ST REPLAT |
| Subdivision | Block | Lot | Land Economic Area |
|---|---|---|---|
| WEST HILL N PARK 1ST FG | 11 | 17 | HILL N PARK |
| Property Address | Property City | Section | Township | Range |
|---|---|---|---|---|
| 4505 S SHENANDOAH ST | WELD | 26 | 05 | 66 |
| Account | Parcel | Account Type | Tax Year | Buildings | Actual Value | Local Govt Assessed Value | School Assessed Value |
|---|---|---|---|---|---|---|---|
| R2655986 | 095926312003 | Residential | 2026 | 1 | 341,507 | 21,340 | 24,080 |
| Account | Owner Name | Address |
|---|---|---|
| R2655986 | AYALA KAREN GARCIA | 4505 S SHENANDOAH ST GREELEY, CO 806349205 |
| R2655986 | AYALA VANESSA GARCIA |
| Account | Parcel | Account Type | Tax Year | Buildings | Actual Value | Local Govt Assessed Value | School Assessed Value |
|---|---|---|---|---|---|---|---|
| R2655986 | 095926312003 | Residential | 2026 | 1 | 341,507 | 21,340 | 24,080 |
| Reception | Rec Date | Type | Grantor | Grantee | Doc Fee | Sale Date | Sale Price |
|---|---|---|---|---|---|---|---|
| 1620972 | NA | SUB | SUBDIVISION | WEST HILL N PARK 1ST FG | 0.00 | NA | 0 |
| 1706661 | 12-22-1976 | COZ | WELD COUNTY ZONING | CASE: Z-167* ZONING R-5 | 0.00 | NA | 0 |
| 2455190 | 09-12-1995 | WD | WEST HILL-N-PARK INC | COLORADO FACTORY HOMES INC DBA | 9.00 | 09-11-1995 | 90,000 |
| 2476111 | 02-12-1996 | WD | COLORADO FACTORY HOMES INC DBA | HOPKINS DOUGLAS L | 2.45 | 02-01-1996 | 24,500 |
| 2636782 | 08-31-1998 | QCN | HOPKINS DOUGLAS L | HOPKINS DOUGLAS L & KATHLEEN L | 0.00 | 06-29-1998 | 0 |
| 2784304 | 08-01-2000 | QCN | HOPKINS KATHLEEN L | HOPKINS DOUGLAS L | 0.00 | 07-31-2000 | 0 |
| 2784305 | 08-01-2000 | WD | HOPKINS DOUGLAS L | LENZ BRYAN RICHARD | 9.59 | 07-31-2000 | 95,900 |
| 3009594 | 11-27-2002 | WD | LENZ BRYAN RICHARD | HERRERA ALDO H | 11.90 | 11-25-2002 | 119,000 |
| 3688916 | 04-26-2010 | MHN | HERRERA ALDO H | HERRERA ALDO H | 0.00 | 04-26-2010 | 0 |
| 3690326 | 04-30-2010 | WD | HERRERA ALDO H | SOTO JAVIER | 4.85 | 04-28-2010 | 48,500 |
| 4220652 | 07-20-2016 | QCN | SOTO JAVIER | SOTO ELIZABETH; SOTO JAVIER | 0.00 | 07-15-2016 | 0 |
| 4823454 | 05-02-2022 | WD | SOTO JAVIER; SOTO ELIZABETH | AYALA KAREN GARCIA; AYALA VANESSA GARCIA | 36.50 | 04-29-2022 | 365,000 |
*If the hyperlink for the reception number does not work, try a manual search in the Clerk and Recorder records. Use the Grantor or Grantee in your search.
| Account | Parcel | Account Type | Tax Year | Buildings | Actual Value | Local Govt Assessed Value | School Assessed Value |
|---|---|---|---|---|---|---|---|
| R2655986 | 095926312003 | Residential | 2026 | 1 | 341,507 | 21,340 | 24,080 |
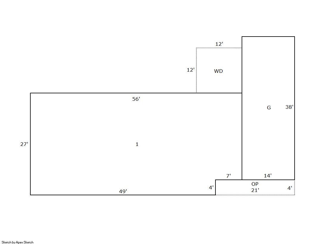
Building 1
| AccountNo | Building ID | Occupancy |
|---|---|---|
| R2655986 | 1 | Single Family Residential |
| ID | Type | NBHD | Occupancy | % Complete | Bedrooms | Baths |
|---|---|---|---|---|---|---|
| 1 | Manufactured Hm | 2R0056 | Single Family Residential | 100 | 3 | 3.00 |
| ID | Exterior | Roof Cover | Interior | HVAC | Perimeter | Units | Unit Type | Make |
|---|---|---|---|---|---|---|---|---|
| 1 | Hardboard Sheet | Shingle Comp | Drywall | Central Air to Air | 166 | 0 | NA | Unknown |
| ID | Square Ft | Condo SF | Total Basement SF | Finished Basement SF | Garage SF | Carport SF | Balcony SF | Porch SF |
|---|---|---|---|---|---|---|---|---|
| 1 | 1,484 | 0 | 0 | 0 | 532 | 0 | 0 | 84 |
| ID | Built As | Square Ft | Year Built | Stories | Length | Width |
|---|---|---|---|---|---|---|
| 1.00 | Mnfctrd Home 1 Story | 1,484 | 1996 | 1 | 56 | 27 |
| ID | Detail Type | Description | Units |
|---|---|---|---|
| 1 | Add On | Shed Frame | 168.00 |
| 1 | Fixture | Full Bath | 3.00 |
| 1 | Garage | Attached | 532.00 |
| 1 | Porch | Slab Roof Ceil | 84.00 |
| Account | Parcel | Account Type | Tax Year | Buildings | Actual Value | Local Govt Assessed Value | School Assessed Value |
|---|---|---|---|---|---|---|---|
| R2655986 | 095926312003 | Residential | 2026 | 1 | 341,507 | 21,340 | 24,080 |
| Type | Code | Description | Actual Value | Local Govt Assessed Value | School Assessed Value | Acres | Land SqFt |
|---|---|---|---|---|---|---|---|
| Improvement | 1212 | SINGLE FAMILY RESIDENTIAL IMPROVEMENTS | 261,507 | 16,340 | 18,440 | 0.000 | 0 |
| Land | 1112 | SINGLE FAMILY RESIDENTIAL-LAND | 80,000 | 5,000 | 5,640 | 0.150 | 6,542 |
| Totals | - | - | 341,507 | 21,340 | 24,080 | 0.150 | 6,542 |
Comparable sales for your Residential or Commercial property may be found using our SALES SEARCH TOOL
Values are updated annually on May 1st for Real Property and June 15th for Personal Property and Oil and Gas.
| Account | Parcel | Account Type | Tax Year | Buildings | Actual Value | Local Govt Assessed Value | School Assessed Value |
|---|---|---|---|---|---|---|---|
| R2655986 | 095926312003 | Residential | 2026 | 1 | 341,507 | 21,340 | 24,080 |
| Tax Area | District ID | District Name | Local Govt Mill Levy |
School Mill Levy |
Estimated Taxes |
|---|---|---|---|---|---|
| 5728 | 0700 | AIMS JUNIOR COLLEGE | 6.313 | 0.000 | $134.72 |
| 5728 | 0510 | FRONT RANGE FIRE RESCUE FIRE PROTECTION DISTRICT | 11.483 | 0.000 | $245.05 |
| 5728 | 1050 | HIGH PLAINS LIBRARY | 3.044 | 0.000 | $64.96 |
| 5728 | 0301 | NORTHERN COLORADO WATER (NCW) | 1.000 | 0.000 | $21.34 |
| 5728 | 0206 | SCHOOL DIST 6-GREELEY | 0.000 | 47.615 | $1,146.57 |
| 5728 | 0100 | WELD COUNTY | 15.956 | 0.000 | $340.50 |
| 5728 | 1200 | WEST GREELEY CONSERVATION | 0.414 | 0.000 | $8.83 |
| Total | - | - | 38.21 | 47.615 | $1,961.97 |
The estimate of tax is based on the prior year mill levy and the 2025 projected assessment rates. Mill levies and tax estimates will be updated yearly on December 22nd for the current year. Additional information can be found at https://assessor.weld.gov


