Account: R2658986

April 4, 2026

Account Parcel Account Type Tax Year Buildings Actual Value Local Govt Assessed Value School Assessed Value
R2658986 095926313016 Residential 2026 1 285,835 17,860 20,150

Legal
1WHP10-5 L5 BLK10 WEST HILL-N-PARK 1ST FILING 1ST REPLAT

Subdivision Block Lot Land Economic Area
WEST HILL N PARK 1ST FG 10 5 HILL N PARK

Property Address Property City Section Township Range
4504 S SHENANDOAH ST WELD 26 05 66




Account Parcel Account Type Tax Year Buildings Actual Value Local Govt Assessed Value School Assessed Value
R2658986 095926313016 Residential 2026 1 285,835 17,860 20,150

Account Owner Name Address
R2658986 GONZALES ARTHUR 4504 S SHENANDOAH ST GREELEY, CO 806349208
R2658986 LOPEZ JESSICA


Account Parcel Account Type Tax Year Buildings Actual Value Local Govt Assessed Value School Assessed Value
R2658986 095926313016 Residential 2026 1 285,835 17,860 20,150

Reception Rec Date Type Grantor Grantee Doc Fee Sale Date Sale Price
1620972 NA SUB SUBDIVISION WEST HILL N PARK 1ST FG 0.00 NA 0
1706661 12-22-1976 COZ WELD COUNTY ZONING CASE: Z-167* ZONING R-5 0.00 NA 0
2432183 03-30-1995 WD WEST HILL N PARK INC SHOCKLEY ROD E & ROSE J 2.00 03-24-1995 20,000
2558864 07-21-1997 WD SHOCKLEY ROD E & ROSE J BERRY DALE A & BETTY A 8.49 07-18-1997 84,900
3525571 12-26-2007 PTD BERRY DALE A & FEDERAL HOME LOAN MORTGAGE CORPORATION 0.00 12-26-2007 0
3584331 10-15-2008 SWD FEDERAL HOME LOAN MORTGAGE CORPORATION HOWLETT LISA RENEE 6.80 07-07-2008 68,000
4142525 09-16-2015 QCN HOWLETT LISA RENEE; HOWLETT CHARLES SHAY GREEN LISA RENEE 0.00 08-21-2015 0
4581786 04-10-2020 PTD GREEN LISA RENEE GONZALES LEONARD 0.00 04-09-2020 0
4596878 06-08-2020 WD GONZALES LEONARD HARRINGTON GLENN 25.99 06-05-2020 259,900
5024792 04-23-2025 MHN HARRINGTON GLENN HARRINGTON GLENN 0.00 04-21-2025 0
5026972 05-05-2025 WD HARRINGTON GLENN GONZALES ARTHUR; LOPEZ JESSICA 34.70 04-30-2025 347,000



Account Parcel Account Type Tax Year Buildings Actual Value Local Govt Assessed Value School Assessed Value
R2658986 095926313016 Residential 2026 1 285,835 17,860 20,150

Building 1

AccountNo Building ID Occupancy
R2658986 1 Single Family Residential


ID Type NBHD Occupancy % Complete Bedrooms Baths
1 Manufactured Hm 2R0056 Single Family Residential 100 3 3.00


ID Exterior Roof Cover Interior HVAC Perimeter Units Unit Type Make
1 Hardboard Sheet Shingle Comp Drywall Forced Air 166 0 NA Unknown


ID Square Ft Condo SF Total Basement SF Finished Basement SF Garage SF Carport SF Balcony SF Porch SF
1 1,492 0 0 0 0 0 220 20


Built As Details for Building 1
ID Built As Square Ft Year Built Stories Length Width
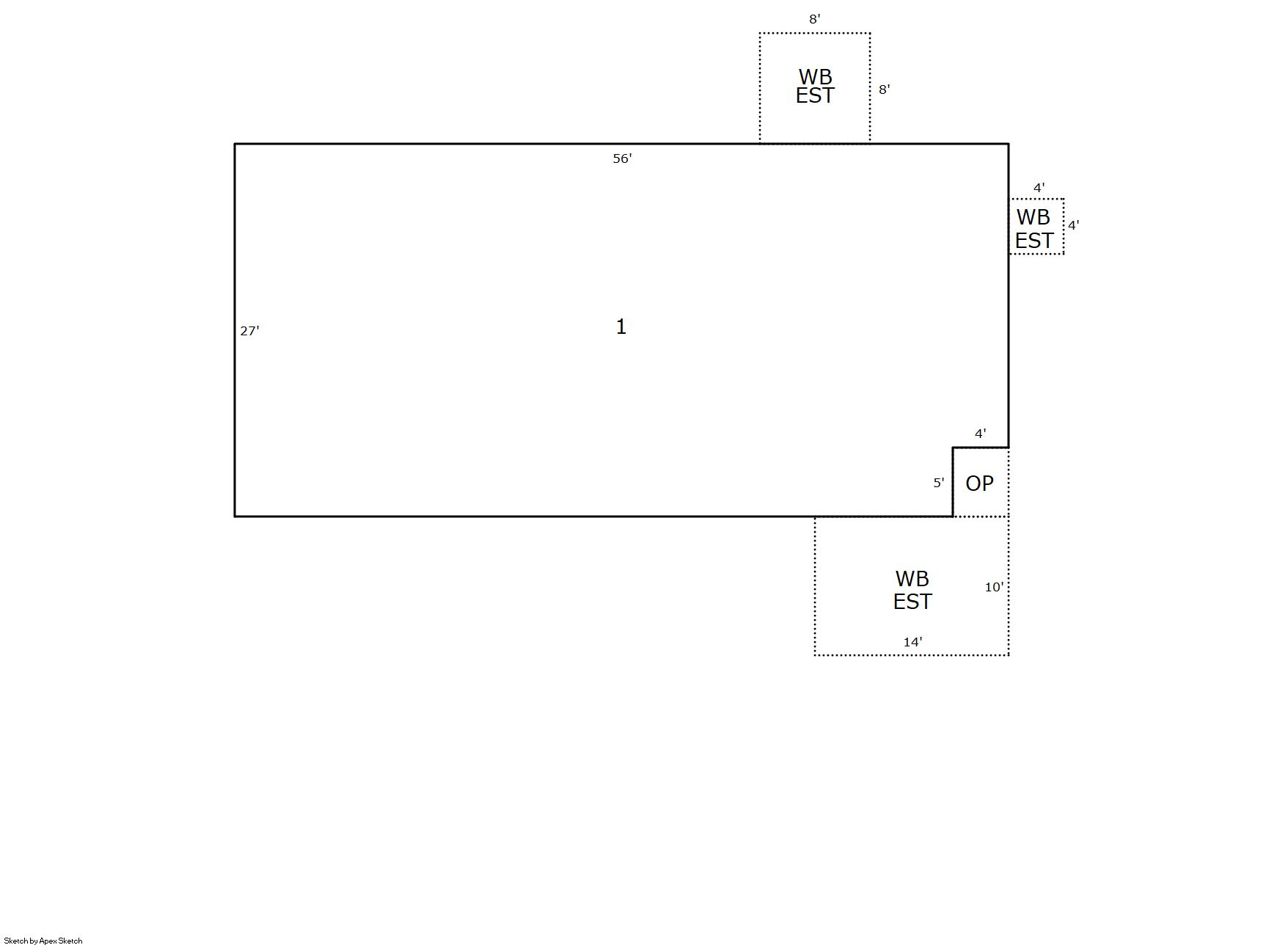
1.00 Mnfctrd Home 1 Story 1,492 1995 1 56 27


Additional Details for Building 1
ID Detail Type Description Units
1 Add On MH Swamp Cooler 1.00
1 Balcony Wood Wood Fin 220.00
1 Fixture Full Bath 3.00
1 Porch Slab Roof Ceil 20.00





Account Parcel Account Type Tax Year Buildings Actual Value Local Govt Assessed Value School Assessed Value
R2658986 095926313016 Residential 2026 1 285,835 17,860 20,150

Type Code Description Actual Value Local Govt Assessed Value School Assessed Value Acres Land SqFt
Improvement 1212 SINGLE FAMILY RESIDENTIAL IMPROVEMENTS 205,835 12,860 14,510 0.000 0
Land 1112 SINGLE FAMILY RESIDENTIAL-LAND 80,000 5,000 5,640 0.153 6,675
Totals - - 285,835 17,860 20,150 0.153 6,675


Account Parcel Account Type Tax Year Buildings Actual Value Local Govt Assessed Value School Assessed Value
R2658986 095926313016 Residential 2026 1 285,835 17,860 20,150

Tax Area District ID District Name Local Govt
Mill Levy
School
Mill Levy
Estimated
Taxes
5728 0700 AIMS JUNIOR COLLEGE 6.313 0.000 $112.75
5728 0510 FRONT RANGE FIRE RESCUE FIRE PROTECTION DISTRICT 11.483 0.000 $205.09
5728 1050 HIGH PLAINS LIBRARY 3.044 0.000 $54.37
5728 0301 NORTHERN COLORADO WATER (NCW) 1.000 0.000 $17.86
5728 0206 SCHOOL DIST 6-GREELEY 0.000 47.615 $959.44
5728 0100 WELD COUNTY 15.956 0.000 $284.97
5728 1200 WEST GREELEY CONSERVATION 0.414 0.000 $7.39
Total - - 38.21 47.615 $1,641.87


The estimate of tax is based on the prior year mill levy and the 2025 projected assessment rates. Mill levies and tax estimates will be updated yearly on December 22nd for the current year. Additional information can be found at https://assessor.weld.gov










Select Reports to Print: