Account: R2661086

April 5, 2026

Account Parcel Account Type Tax Year Buildings Actual Value Local Govt Assessed Value School Assessed Value
R2661086 095926314010 Residential 2026 1 291,554 18,220 20,550

Legal
1WHP15-12 L12 BLK15 WEST HILL-N-PARK 1ST FILING 1ST REPLAT

Subdivision Block Lot Land Economic Area
WEST HILL N PARK 1ST FG 1ST RPLT 15 12 HILL N PARK

Property Address Property City Section Township Range
4300 CORONADO ST WELD 26 05 66




Account Parcel Account Type Tax Year Buildings Actual Value Local Govt Assessed Value School Assessed Value
R2661086 095926314010 Residential 2026 1 291,554 18,220 20,550

Account Owner Name Address
R2661086 PAYAN ANA MARIA 1105 TUR ST SEVERANCE, CO 805503816
R2661086 GANDARA JOCELYN


Account Parcel Account Type Tax Year Buildings Actual Value Local Govt Assessed Value School Assessed Value
R2661086 095926314010 Residential 2026 1 291,554 18,220 20,550

Reception Rec Date Type Grantor Grantee Doc Fee Sale Date Sale Price
1620972 NA SUB SUBDIVISION WEST HILL N PARK 1ST FG 0.00 NA 0
1706661 12-22-1976 COZ WELD COUNTY ZONING CASE: Z-167* ZONING R-5 0.00 NA 0
2359685 11-15-1993 WD WEST HILL N PARK INC PERCY-WEST MICHELLE J 1.45 11-15-1993 14,500
2480539 03-12-1996 WD PERCY-WEST MICHELLE J STEPHENS GEORGE G & HAZEL D 2.40 03-01-1996 24,000
3798929 10-14-2011 WD STEPHENS GEORGE G ZENDEJAS MIGUEL 2.50 10-14-2011 25,000
4930467 11-13-2023 QCN PAYAN ANA MARIA; ZENDEJAS MIGUEL GANDARA JOCELYN; PAYAN ANA MARIA 0.00 11-09-2023 0
4935401 12-13-2023 MHN GANDARA JOCELYN; PAYAN ANA MARIA GANDARA JOCELYN; PAYAN ANA MARIA 0.00 11-13-2023 0



Account Parcel Account Type Tax Year Buildings Actual Value Local Govt Assessed Value School Assessed Value
R2661086 095926314010 Residential 2026 1 291,554 18,220 20,550

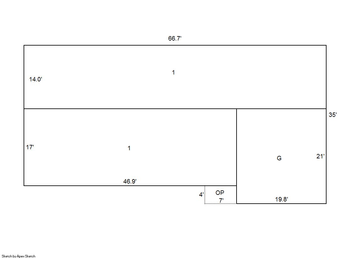
Building 1

AccountNo Building ID Occupancy
R2661086 1 Single Family Residential


ID Type NBHD Occupancy % Complete Bedrooms Baths
1 Manufactured Hm 2R0056 Single Family Residential 100 4 2.00


ID Exterior Roof Cover Interior HVAC Perimeter Units Unit Type Make
1 Hardboard Sheet Metal Ribbed Paneling Forced Air 289 0 NA Homette


ID Square Ft Condo SF Total Basement SF Finished Basement SF Garage SF Carport SF Balcony SF Porch SF
1 1,731 0 0 0 416 0 0 28


Built As Details for Building 1
ID Built As Square Ft Year Built Stories Length Width
1.00 Mnfctrd Home 1 Story 1,731 1978 0 67 14


Additional Details for Building 1
ID Detail Type Description Units
1 Add On MH Swamp Cooler 1.00
1 Fixture Full Bath 2.00
1 Garage Attached 416.00
1 Porch Slab Roof Ceil 28.00





Account Parcel Account Type Tax Year Buildings Actual Value Local Govt Assessed Value School Assessed Value
R2661086 095926314010 Residential 2026 1 291,554 18,220 20,550

Type Code Description Actual Value Local Govt Assessed Value School Assessed Value Acres Land SqFt
Improvement 1212 SINGLE FAMILY RESIDENTIAL IMPROVEMENTS 211,554 13,220 14,910 0.000 0
Land 1112 SINGLE FAMILY RESIDENTIAL-LAND 80,000 5,000 5,640 0.147 6,400
Totals - - 291,554 18,220 20,550 0.147 6,400


Account Parcel Account Type Tax Year Buildings Actual Value Local Govt Assessed Value School Assessed Value
R2661086 095926314010 Residential 2026 1 291,554 18,220 20,550

Tax Area District ID District Name Local Govt
Mill Levy
School
Mill Levy
Estimated
Taxes
5728 0700 AIMS JUNIOR COLLEGE 6.313 0.000 $115.02
5728 0510 FRONT RANGE FIRE RESCUE FIRE PROTECTION DISTRICT 11.483 0.000 $209.22
5728 1050 HIGH PLAINS LIBRARY 3.044 0.000 $55.46
5728 0301 NORTHERN COLORADO WATER (NCW) 1.000 0.000 $18.22
5728 0206 SCHOOL DIST 6-GREELEY 0.000 47.615 $978.49
5728 0100 WELD COUNTY 15.956 0.000 $290.72
5728 1200 WEST GREELEY CONSERVATION 0.414 0.000 $7.54
Total - - 38.21 47.615 $1,674.67


The estimate of tax is based on the prior year mill levy and the 2025 projected assessment rates. Mill levies and tax estimates will be updated yearly on December 22nd for the current year. Additional information can be found at https://assessor.weld.gov










Select Reports to Print: