Account: R2677586
April 4, 2026
| Account | Parcel | Account Type | Tax Year | Buildings | Actual Value | Local Govt Assessed Value | School Assessed Value |
|---|---|---|---|---|---|---|---|
| R2677586 | 095926320010 | Residential | 2026 | 1 | 257,102 | 16,070 | 18,130 |
| Legal |
|---|
| 1WHP5-10 L10 BLK5 WEST HILL-N-PARK 1ST FILING 1ST REPLAT |
| Subdivision | Block | Lot | Land Economic Area |
|---|---|---|---|
| WEST HILL N PARK 1ST FG 1ST RPLT | 5 | 10 | HILL N PARK |
| Property Address | Property City | Section | Township | Range |
|---|---|---|---|---|
| 4616 HOT SPRINGS DR | WELD | 26 | 05 | 66 |
| Account | Parcel | Account Type | Tax Year | Buildings | Actual Value | Local Govt Assessed Value | School Assessed Value |
|---|---|---|---|---|---|---|---|
| R2677586 | 095926320010 | Residential | 2026 | 1 | 257,102 | 16,070 | 18,130 |
| Account | Owner Name | Address |
|---|---|---|
| R2677586 | GALLEGOS LAURIE L | 4616 HOT SPRINGS DR GREELEY, CO 806349221 |
| R2677586 | GALLEGOS RYAN A |
| Account | Parcel | Account Type | Tax Year | Buildings | Actual Value | Local Govt Assessed Value | School Assessed Value |
|---|---|---|---|---|---|---|---|
| R2677586 | 095926320010 | Residential | 2026 | 1 | 257,102 | 16,070 | 18,130 |
| Reception | Rec Date | Type | Grantor | Grantee | Doc Fee | Sale Date | Sale Price |
|---|---|---|---|---|---|---|---|
| 02034543 | 12-04-1985 | WDN | 0.00 | 01-01-1900 | 0 | ||
| 02147883 | 07-13-1988 | QCN | 0.00 | 06-29-1988 | 0 | ||
| 02370641 | 01-25-1994 | QCN | 0.00 | 01-12-1994 | 0 | ||
| 1620972 | NA | SUB | SUBDIVISION | WEST HILL N PARK 1ST FG | 0.00 | NA | 0 |
| 1706661 | 12-22-1976 | COZ | WELD COUNTY ZONING | CASE: Z-167* ZONING R-5 | 0.00 | NA | 0 |
| 2147885 | 07-13-1988 | WD | GREELEY NATIONAL BANK | HOLTMAN BETTY JEAN | 2.80 | 07-01-1988 | 28,000 |
| 2432154 | 03-30-1995 | WD | GEIST ELIZABETH J | HILL JEFFERY & ALISA | 6.50 | 03-30-1995 | 65,000 |
| 2498495 | 06-26-1996 | WD | HILL JEFFERY & ALISA | LLAMAS GEARLDINE | 7.20 | 06-24-1996 | 72,000 |
| 2594618 | 02-17-1998 | QCN | LLAMAS GEARLDINE | GALLEGOS MARIE E | 0.00 | 02-13-1998 | 0 |
| 2594619 | 02-17-1998 | PRDN | GALLEGOS MARIE E | GALLEGOS MARIE E | 0.00 | 02-10-1998 | 0 |
| 3295750 | 06-17-2005 | PTD | GALLEGOS MARIE E | DEUTSCHE BANK NATIONAL TRUST COMPANY | 0.00 | 06-17-2005 | 0 |
| 3361123 | 02-07-2006 | SWD | DEUTSCHE BANK NATIONAL TRUST COMPANY | CORNISH GEORGIA L & | 3.70 | 12-13-2005 | 37,000 |
| 3687970 | 04-20-2010 | DTHC | CORNISH LEE ROY | CORNISH GEORGIA L | 0.00 | 04-20-2010 | 0 |
| 3690396 | 04-30-2010 | WD | CORNISH GEORGIA L | DAVIES CHARLES D | 5.20 | 04-28-2010 | 52,000 |
| 3711924 | 08-16-2010 | QCN | DAVIES CHARLES D | CLAUSEN FREDERICK J | 0.00 | 08-09-2010 | 0 |
| 4010583 | 04-21-2014 | QCN | CLAUSEN FREDERICK J | CLAUSEN ENTERPRISES LLC | 0.00 | 04-17-2014 | 0 |
| 5014306 | 03-04-2025 | MHN | CLAUSEN ENTERPRISES LLC | CLAUSEN ENTERPRISES LLC | 0.00 | 02-24-2025 | 0 |
| 5015345 | 03-10-2025 | SWD | CLAUSEN ENTERPRISES LLC | GALLEGOS LAURIE L; GALLEGOS RYAN A | 19.00 | 03-07-2025 | 190,000 |
*If the hyperlink for the reception number does not work, try a manual search in the Clerk and Recorder records. Use the Grantor or Grantee in your search.
| Account | Parcel | Account Type | Tax Year | Buildings | Actual Value | Local Govt Assessed Value | School Assessed Value |
|---|---|---|---|---|---|---|---|
| R2677586 | 095926320010 | Residential | 2026 | 1 | 257,102 | 16,070 | 18,130 |
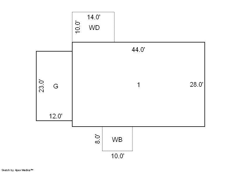
Building 1
| AccountNo | Building ID | Occupancy |
|---|---|---|
| R2677586 | 1 | Single Family Residential |
| ID | Type | NBHD | Occupancy | % Complete | Bedrooms | Baths |
|---|---|---|---|---|---|---|
| 1 | Manufactured Hm | 2R0056 | Single Family Residential | 100 | 3 | 2.00 |
| ID | Exterior | Roof Cover | Interior | HVAC | Perimeter | Units | Unit Type | Make |
|---|---|---|---|---|---|---|---|---|
| 1 | Hardboard Sheet | Shingle Comp | Drywall | Central Air to Air | 0 | 0 | NA | Unknown |
| ID | Square Ft | Condo SF | Total Basement SF | Finished Basement SF | Garage SF | Carport SF | Balcony SF | Porch SF |
|---|---|---|---|---|---|---|---|---|
| 1 | 1,232 | 0 | 0 | 0 | 276 | 0 | 0 | 220 |
| ID | Built As | Square Ft | Year Built | Stories | Length | Width |
|---|---|---|---|---|---|---|
| 1.00 | Mnfctrd Home 1 Story | 1,232 | 1985 | 1 | 44 | 28 |
| ID | Detail Type | Description | Units |
|---|---|---|---|
| 1 | Fixture | Full Bath | 2.00 |
| 1 | Garage | Attached | 276.00 |
| 1 | Porch | Wood Deck | 220.00 |
| Account | Parcel | Account Type | Tax Year | Buildings | Actual Value | Local Govt Assessed Value | School Assessed Value |
|---|---|---|---|---|---|---|---|
| R2677586 | 095926320010 | Residential | 2026 | 1 | 257,102 | 16,070 | 18,130 |
| Type | Code | Description | Actual Value | Local Govt Assessed Value | School Assessed Value | Acres | Land SqFt |
|---|---|---|---|---|---|---|---|
| Improvement | 1212 | SINGLE FAMILY RESIDENTIAL IMPROVEMENTS | 177,102 | 11,070 | 12,490 | 0.000 | 0 |
| Land | 1112 | SINGLE FAMILY RESIDENTIAL-LAND | 80,000 | 5,000 | 5,640 | 0.147 | 6,400 |
| Totals | - | - | 257,102 | 16,070 | 18,130 | 0.147 | 6,400 |
Comparable sales for your Residential or Commercial property may be found using our SALES SEARCH TOOL
Values are updated annually on May 1st for Real Property and June 15th for Personal Property and Oil and Gas.
| Account | Parcel | Account Type | Tax Year | Buildings | Actual Value | Local Govt Assessed Value | School Assessed Value |
|---|---|---|---|---|---|---|---|
| R2677586 | 095926320010 | Residential | 2026 | 1 | 257,102 | 16,070 | 18,130 |
| Tax Area | District ID | District Name | Local Govt Mill Levy |
School Mill Levy |
Estimated Taxes |
|---|---|---|---|---|---|
| 5728 | 0700 | AIMS JUNIOR COLLEGE | 6.313 | 0.000 | $101.45 |
| 5728 | 0510 | FRONT RANGE FIRE RESCUE FIRE PROTECTION DISTRICT | 11.483 | 0.000 | $184.53 |
| 5728 | 1050 | HIGH PLAINS LIBRARY | 3.044 | 0.000 | $48.92 |
| 5728 | 0301 | NORTHERN COLORADO WATER (NCW) | 1.000 | 0.000 | $16.07 |
| 5728 | 0206 | SCHOOL DIST 6-GREELEY | 0.000 | 47.615 | $863.26 |
| 5728 | 0100 | WELD COUNTY | 15.956 | 0.000 | $256.41 |
| 5728 | 1200 | WEST GREELEY CONSERVATION | 0.414 | 0.000 | $6.65 |
| Total | - | - | 38.21 | 47.615 | $1,477.29 |
The estimate of tax is based on the prior year mill levy and the 2025 projected assessment rates. Mill levies and tax estimates will be updated yearly on December 22nd for the current year. Additional information can be found at https://assessor.weld.gov



