Account: R2730286

April 5, 2026

Account Parcel Account Type Tax Year Buildings Actual Value Local Govt Assessed Value School Assessed Value
R2730286 095927203013 Residential 2026 1 703,544 43,970 49,600

Legal
AH13-21 L21 BLK13 ARROWHEAD 4TH FILING

Subdivision Block Lot Land Economic Area
ARROWHEAD SUB 4TH FG 13 21 ARROWHEAD

Property Address Property City Section Township Range
5304 UTE CIR WELD 27 05 66




Account Parcel Account Type Tax Year Buildings Actual Value Local Govt Assessed Value School Assessed Value
R2730286 095927203013 Residential 2026 1 703,544 43,970 49,600

Account Owner Name Address
R2730286 CAMPBELL JAMES L 5304 UTE CIR GREELEY, CO 806349302
R2730286 CAMPBELL LYNDA K


Account Parcel Account Type Tax Year Buildings Actual Value Local Govt Assessed Value School Assessed Value
R2730286 095927203013 Residential 2026 1 703,544 43,970 49,600

Reception Rec Date Type Grantor Grantee Doc Fee Sale Date Sale Price
01-01-1963 COZ WELD COUNTY ZONING CASE: S-250* ZONING A 0.00 NA 0
01719339 05-16-1977 WDN 0.00 01-01-1900 0
1596868 NA SUB SUBDIVISION ARROWHEAD 4TH FG 0.00 NA 0
2108984 07-31-1987 WD HOPPER GEORGE B & JANE E CAMPBELL JAMES L & LYNDA K 2.00 07-29-1987 20,000



Account Parcel Account Type Tax Year Buildings Actual Value Local Govt Assessed Value School Assessed Value
R2730286 095927203013 Residential 2026 1 703,544 43,970 49,600

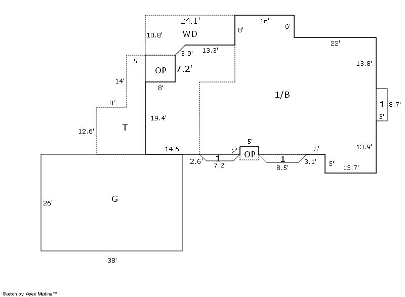
Building 1

AccountNo Building ID Occupancy
R2730286 1 Single Family Residential


ID Type NBHD Occupancy % Complete Bedrooms Baths
1 Residential 2R0058 Single Family Residential 100 4 3.00


ID Exterior Roof Cover Interior HVAC Perimeter Units Unit Type Make
1 Frame Hardboard Composition Shingle Drywall Forced Air 0 0 NA NA


ID Square Ft Condo SF Total Basement SF Finished Basement SF Garage SF Carport SF Balcony SF Porch SF
1 2,038 0 1,972 1,532 988 0 0 76


Built As Details for Building 1
ID Built As Square Ft Year Built Stories Length Width
1.00 Ranch 1 Story 2,038 1989 1 0 0


Additional Details for Building 1
ID Detail Type Description Units
1 Add On Fireplace Gas 1.00
1 Add On Hot Tub 1.00
1 Basement Finished 1532.00
1 Basement Total Basement SF 1972.00
1 Fixture Full Bath 3.00
1 Fixture Half Bath 1.00
1 Garage Attached 988.00
1 Porch Open Slab 234.00
1 Porch Slab Roof Ceil 76.00
1 Porch Wood Deck 218.00





Account Parcel Account Type Tax Year Buildings Actual Value Local Govt Assessed Value School Assessed Value
R2730286 095927203013 Residential 2026 1 703,544 43,970 49,600

Type Code Description Actual Value Local Govt Assessed Value School Assessed Value Acres Land SqFt
Improvement 1212 SINGLE FAMILY RESIDENTIAL IMPROVEMENTS 551,574 34,470 38,890 0.000 0
Land 1112 SINGLE FAMILY RESIDENTIAL-LAND 151,970 9,500 10,710 1.190 51,836
Totals - - 703,544 43,970 49,600 1.190 51,836


Account Parcel Account Type Tax Year Buildings Actual Value Local Govt Assessed Value School Assessed Value
R2730286 095927203013 Residential 2026 1 703,544 43,970 49,600

Tax Area District ID District Name Local Govt
Mill Levy
School
Mill Levy
Estimated
Taxes
5728 0700 AIMS JUNIOR COLLEGE 6.313 0.000 $277.58
5728 0510 FRONT RANGE FIRE RESCUE FIRE PROTECTION DISTRICT 11.483 0.000 $504.91
5728 1050 HIGH PLAINS LIBRARY 3.044 0.000 $133.84
5728 0301 NORTHERN COLORADO WATER (NCW) 1.000 0.000 $43.97
5728 0206 SCHOOL DIST 6-GREELEY 0.000 47.615 $2,361.70
5728 0100 WELD COUNTY 15.956 0.000 $701.59
5728 1200 WEST GREELEY CONSERVATION 0.414 0.000 $18.20
Total - - 38.21 47.615 $4,041.80


The estimate of tax is based on the prior year mill levy and the 2025 projected assessment rates. Mill levies and tax estimates will be updated yearly on December 22nd for the current year. Additional information can be found at https://assessor.weld.gov










Select Reports to Print: