Account: R2807604

April 1, 2026

Account Parcel Account Type Tax Year Buildings Actual Value Local Govt Assessed Value School Assessed Value
R2807604 105908120006 Commercial 2026 1 5,293,000 1,429,110 1,429,110

Legal
JOH 1JCCAR L3B-1 JOHNSTOWN CENTER 1ST COMMERCIAL ADD AMD RPLT L3 & 6 LOT LINE ADJ

Subdivision Block Lot Land Economic Area
JOHNSTOWN CENTER 1ST COMMERCIAL ADD AM RPLT L3,6 LOT LINE ADJ 3B1 JOHNSTOWN COMMERCIAL

Property Address Property City Section Township Range
257 JOHNSTOWN CENTER DR JOHNSTOWN 08 04 67




Account Parcel Account Type Tax Year Buildings Actual Value Local Govt Assessed Value School Assessed Value
R2807604 105908120006 Commercial 2026 1 5,293,000 1,429,110 1,429,110

Account Owner Name Address
R2807604 257 JOHNSTOWN CENTER DRIVE LLC 1712 TOPAZ DR LOVELAND, CO 805375000


Account Parcel Account Type Tax Year Buildings Actual Value Local Govt Assessed Value School Assessed Value
R2807604 105908120006 Commercial 2026 1 5,293,000 1,429,110 1,429,110

Reception Rec Date Type Grantor Grantee Doc Fee Sale Date Sale Price
3137247 NA SUB SUBDIVISION JOHNSTOWN CENTER 1ST COMMERCIAL ADD AMD RPLT LOTS 3 & 6 LOT LINE ADJ 0.00 NA 0
3137251 12-19-2003 SWD SYSTEM CAPITAL REAL PROPERTY CORP JOHNSTOWN STATION DEVELOPMENT GROUP LLC 42.50 12-11-2003 425,000
3357805 01-25-2006 QCN JOHNSTOWN STATION DEVELOPMENT GROUP LLC JOHNSTOWN STATION INVESTORS LTD LLLP 0.00 12-14-2005 0
4198451 04-26-2016 SWD JOHNSTOWN STATION INVESTORS LTD LLLP TUS NUA LLC 370.00 04-22-2016 3,700,000
5076750 01-09-2026 SWD TUS NUA LLC 257 JOHNSTOWN CENTER DRIVE LLC 525.00 01-08-2026 5,250,000



Account Parcel Account Type Tax Year Buildings Actual Value Local Govt Assessed Value School Assessed Value
R2807604 105908120006 Commercial 2026 1 5,293,000 1,429,110 1,429,110

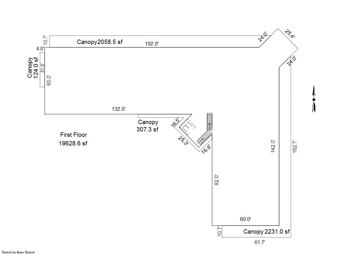
Building 1

AccountNo Building ID Occupancy
R2807604 1 Mixed Retail w/ Office Units


ID Type NBHD Occupancy % Complete Bedrooms Baths
1 Commercial 0907 Mixed Retail w/ Office Units 100 0 0.00


ID Exterior Roof Cover Interior HVAC Perimeter Units Unit Type Make
1 NA NA NA Package Unit 800 0 NA NA


ID Square Ft Condo SF Total Basement SF Finished Basement SF Garage SF Carport SF Balcony SF Porch SF
1 27,856 0 0 0 0 0 0 0


Built As Details for Building 1
ID Built As Square Ft Year Built Stories Length Width
1.00 Mixed Retail w/ Office Units 27,856 2005 2 0 0

No Additional Details for Building 1






Account Parcel Account Type Tax Year Buildings Actual Value Local Govt Assessed Value School Assessed Value
R2807604 105908120006 Commercial 2026 1 5,293,000 1,429,110 1,429,110

Type Code Description Actual Value Local Govt Assessed Value School Assessed Value Acres Land SqFt
Improvement 2212 MERCHANDISING-IMPROVEMENT 4,393,630 1,186,280 1,186,280 0.000 0
Land 2112 MERCHANDISING-LAND 899,370 242,830 242,830 2.294 99,930
Totals - - 5,293,000 1,429,110 1,429,110 2.294 99,930


Account Parcel Account Type Tax Year Buildings Actual Value Local Govt Assessed Value School Assessed Value
R2807604 105908120006 Commercial 2026 1 5,293,000 1,429,110 1,429,110

Tax Area District ID District Name Local Govt
Mill Levy
School
Mill Levy
Estimated
Taxes
0567 0700 AIMS JUNIOR COLLEGE 6.313 0.000 $9,021.97
0567 0510 FRONT RANGE FIRE RESCUE FIRE PROTECTION DISTRICT 11.483 0.000 $16,410.47
0567 0414 JOHNSTOWN TOWN 23.947 0.000 $34,222.90
0567 0301 NORTHERN COLORADO WATER (NCW) 1.000 0.000 $1,429.11
0567 0205 SCHOOL DIST RE5J-JOHNSTOWN 0.000 36.271 $51,835.25
0567 0901 THOMPSON RIVER REC 3.594 0.000 $5,136.22
0567 0100 WELD COUNTY 15.956 0.000 $22,802.88
Total - - 62.293 36.271 $140,858.80


The estimate of tax is based on the prior year mill levy and the 2025 projected assessment rates. Mill levies and tax estimates will be updated yearly on December 22nd for the current year. Additional information can be found at https://assessor.weld.gov










Select Reports to Print: