Account: R2808986

April 1, 2026

Account Parcel Account Type Tax Year Buildings Actual Value Local Govt Assessed Value School Assessed Value
R2808986 096105311006 Commercial 2026 1 2,307,300 622,970 622,970

Legal
GR 4812 L16 THRU L21 BLK38

Subdivision Block Lot Land Economic Area
GREELEY CITY 38 16 COMM N 11 ST E 11 AV

Property Address Property City Section Township Range
715 7TH ST GREELEY 05 05 65




Account Parcel Account Type Tax Year Buildings Actual Value Local Govt Assessed Value School Assessed Value
R2808986 096105311006 Commercial 2026 1 2,307,300 622,970 622,970

Account Owner Name Address
R2808986 AAA GREELEY SELF STORAGE LLC 4411 TWISTED TREE DR AUSTIN, TX 787356431


Account Parcel Account Type Tax Year Buildings Actual Value Local Govt Assessed Value School Assessed Value
R2808986 096105311006 Commercial 2026 1 2,307,300 622,970 622,970

Reception Rec Date Type Grantor Grantee Doc Fee Sale Date Sale Price
02447402 07-19-1995 QCN ERION TRAVIS; ERION AMY MONARCHE TEA LLC 0.00 06-16-1995 0
2290637 06-04-1992 WD KING LUMBER CO FOX DONALD A 6.00 06-03-1992 60,000
2443252 06-20-1995 WD FOX DONALD A ERION TRAVIS & AMY 49.00 06-16-1995 490,000
24738 NA SUB SUBDIVISION GREELEY 0.00 NA 0
2792837 09-11-2000 WD MONARCHE TEA LLC SECURCARE OF GREELEY II LLC 117.50 09-08-2000 1,175,000
3134062 12-10-2003 OTH SECURCARE OF GREELEY II LLC KING SELF STORAGE II LLC 0.00 12-10-2003 0
3134063 12-10-2003 SWDN KING SELF STORAGE II LLC FUCMS 2000-C2 GREELEY STORAGE LLC 0.00 11-19-2003 0
3243707 12-14-2004 SWD FUCMS 2000-C2 GREELEY STORAGE LLC AAA GREELEY SELF STORAGE LLC 57.50 12-07-2004 575,000



Account Parcel Account Type Tax Year Buildings Actual Value Local Govt Assessed Value School Assessed Value
R2808986 096105311006 Commercial 2026 1 2,307,300 622,970 622,970

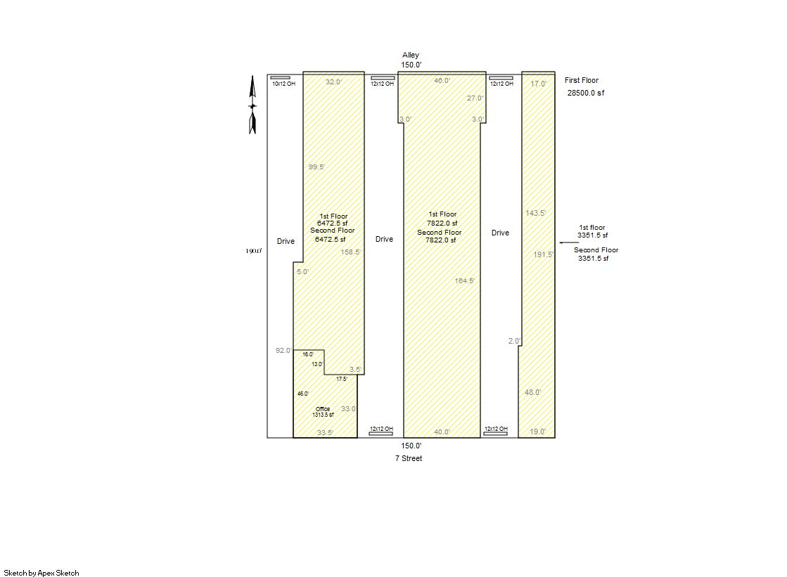
Building 1

AccountNo Building ID Occupancy
R2808986 1 Mini Warehouse


ID Type NBHD Occupancy % Complete Bedrooms Baths
1 Commercial 6907 Mini Warehouse 100 0 0.00


ID Exterior Roof Cover Interior HVAC Perimeter Units Unit Type Make
1 NA NA NA None 2033 310 NA NA


ID Square Ft Condo SF Total Basement SF Finished Basement SF Garage SF Carport SF Balcony SF Porch SF
1 46,146 0 0 0 0 0 0 0


Built As Details for Building 1
ID Built As Square Ft Year Built Stories Length Width
1.00 Mini Warehouse 46,146 1906 2 0 0

No Additional Details for Building 1






Account Parcel Account Type Tax Year Buildings Actual Value Local Govt Assessed Value School Assessed Value
R2808986 096105311006 Commercial 2026 1 2,307,300 622,970 622,970

Type Code Description Actual Value Local Govt Assessed Value School Assessed Value Acres Land SqFt
Improvement 2235 WAREHOUSE/STORAGE-IMPS 2,079,300 561,410 561,410 0.000 0
Land 2135 WAREHOUSE/STORAGE-LAND 228,000 61,560 61,560 0.654 28,500
Totals - - 2,307,300 622,970 622,970 0.654 28,500


Account Parcel Account Type Tax Year Buildings Actual Value Local Govt Assessed Value School Assessed Value
R2808986 096105311006 Commercial 2026 1 2,307,300 622,970 622,970

Tax Area District ID District Name Local Govt
Mill Levy
School
Mill Levy
Estimated
Taxes
2689 0700 AIMS JUNIOR COLLEGE 6.313 0.000 $3,932.81
2689 0411 GREELEY CITY 11.274 0.000 $7,023.36
2689 0802 GREELEY DOWNTOWN DEVELOPMENT AUTHORITY 5.000 0.000 $3,114.85
2689 1050 HIGH PLAINS LIBRARY 3.044 0.000 $1,896.32
2689 0301 NORTHERN COLORADO WATER (NCW) 1.000 0.000 $622.97
2689 0206 SCHOOL DIST 6-GREELEY 0.000 47.615 $29,662.72
2689 0100 WELD COUNTY 15.956 0.000 $9,940.11
Total - - 42.587 47.615 $56,193.14


The estimate of tax is based on the prior year mill levy and the 2025 projected assessment rates. Mill levies and tax estimates will be updated yearly on December 22nd for the current year. Additional information can be found at https://assessor.weld.gov










Select Reports to Print: