Account: R2848786

April 1, 2026

Account Parcel Account Type Tax Year Buildings Actual Value Local Govt Assessed Value School Assessed Value
R2848786 096105420015 Residential 2026 1 282,040 17,630 19,880

Legal
GR 242 N90' E100' L9 BLK128

Subdivision Block Lot Land Economic Area
GREELEY CITY 128 9 HWY 85, 5TH ST TO 16TH ST

Property Address Property City Section Township Range
917 3RD AVE GREELEY 05 05 65




Account Parcel Account Type Tax Year Buildings Actual Value Local Govt Assessed Value School Assessed Value
R2848786 096105420015 Residential 2026 1 282,040 17,630 19,880

Account Owner Name Address
R2848786 JARNAGIN JAY 130 WALNUT AVE EATON, CO 806153626
R2848786 JARNAGIN BONITA RENE


Account Parcel Account Type Tax Year Buildings Actual Value Local Govt Assessed Value School Assessed Value
R2848786 096105420015 Residential 2026 1 282,040 17,630 19,880

Reception Rec Date Type Grantor Grantee Doc Fee Sale Date Sale Price
2291126 06-09-1992 WD TROUDT RUEBEN & ALVINA LISCANO MARTIN L & MARY JEAN 1.80 06-04-1992 18,000
2450188 08-07-1995 WD LISCANO MARTIN L & MARY JEAN BIG R OF GREELEY INC 2.50 08-04-1995 25,000
24738 NA SUB SUBDIVISION GREELEY 0.00 NA 0
2717639 09-01-1999 WD BIG R OF GREELEY INC MUSE EUGENE & MARK & 6.00 08-30-1999 60,000
4118098 06-23-2015 QCN MUSE BRIDGETTE; MUSE MARK JARNAGIN JAY 0.00 06-19-2015 0
4153498 10-28-2015 QCN JARNAGIN JAY JARNAGIN JAY 0.00 10-25-2015 0
4153528 10-28-2015 QCN JARNAGIN JAY JARNAGIN JAY; JARNAGIN BONITA RENE 0.00 10-25-2015 0



Account Parcel Account Type Tax Year Buildings Actual Value Local Govt Assessed Value School Assessed Value
R2848786 096105420015 Residential 2026 1 282,040 17,630 19,880

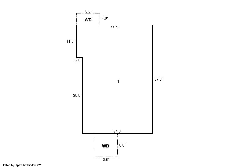
Building 1

AccountNo Building ID Occupancy
R2848786 1 Single Family Residential


ID Type NBHD Occupancy % Complete Bedrooms Baths
1 Residential 6G1036 Single Family Residential 100 2 1.00


ID Exterior Roof Cover Interior HVAC Perimeter Units Unit Type Make
1 Frame Siding Composition Shingle Drywall Forced Air 0 0 NA NA


ID Square Ft Condo SF Total Basement SF Finished Basement SF Garage SF Carport SF Balcony SF Porch SF
1 910 0 0 0 0 0 64 32


Built As Details for Building 1
ID Built As Square Ft Year Built Stories Length Width
1.00 Ranch 1 Story 910 1947 1 0 0


Additional Details for Building 1
ID Detail Type Description Units
1 Balcony Wood Wood Fin 64.00
1 Fixture Full Bath 1.00
1 Porch Wood Deck 32.00





Account Parcel Account Type Tax Year Buildings Actual Value Local Govt Assessed Value School Assessed Value
R2848786 096105420015 Residential 2026 1 282,040 17,630 19,880

Type Code Description Actual Value Local Govt Assessed Value School Assessed Value Acres Land SqFt
Improvement 1212 SINGLE FAMILY RESIDENTIAL IMPROVEMENTS 219,040 13,690 15,440 0.000 0
Land 1112 SINGLE FAMILY RESIDENTIAL-LAND 63,000 3,940 4,440 0.207 9,000
Totals - - 282,040 17,630 19,880 0.207 9,000


Account Parcel Account Type Tax Year Buildings Actual Value Local Govt Assessed Value School Assessed Value
R2848786 096105420015 Residential 2026 1 282,040 17,630 19,880

Tax Area District ID District Name Local Govt
Mill Levy
School
Mill Levy
Estimated
Taxes
0600 0700 AIMS JUNIOR COLLEGE 6.313 0.000 $111.30
0600 0411 GREELEY CITY 11.274 0.000 $198.76
0600 1050 HIGH PLAINS LIBRARY 3.044 0.000 $53.67
0600 0301 NORTHERN COLORADO WATER (NCW) 1.000 0.000 $17.63
0600 0206 SCHOOL DIST 6-GREELEY 0.000 47.615 $946.59
0600 0100 WELD COUNTY 15.956 0.000 $281.30
Total - - 37.587 47.615 $1,609.25


The estimate of tax is based on the prior year mill levy and the 2025 projected assessment rates. Mill levies and tax estimates will be updated yearly on December 22nd for the current year. Additional information can be found at https://assessor.weld.gov










Select Reports to Print: