Account: R2862886
April 2, 2026
| Account | Parcel | Account Type | Tax Year | Buildings | Actual Value | Local Govt Assessed Value | School Assessed Value |
|---|---|---|---|---|---|---|---|
| R2862886 | 096106110002 | Residential | 2026 | 1 | 329,724 | 20,600 | 23,240 |
| Legal |
|---|
| GR 4284 L1 & ALL L2 EXC S28' OF W117' BLK2 BILLINGS & SYLVESTER |
| Subdivision | Block | Lot | Land Economic Area |
|---|---|---|---|
| BILLINGS & SYLVESTER | 2 | 1 | 5TH ST, 23RD AVE WEST TO 8TH AVE |
| Property Address | Property City | Section | Township | Range |
|---|---|---|---|---|
| 122 13TH AVE | GREELEY | 06 | 05 | 65 |
| Account | Parcel | Account Type | Tax Year | Buildings | Actual Value | Local Govt Assessed Value | School Assessed Value |
|---|---|---|---|---|---|---|---|
| R2862886 | 096106110002 | Residential | 2026 | 1 | 329,724 | 20,600 | 23,240 |
| Account | Owner Name | Address |
|---|---|---|
| R2862886 | ALONSO MARTIN PEREZ | 122 13TH AVE GREELEY, CO 806312233 |
| R2862886 | HERNANDEZ NANCY BUCIO |
| Account | Parcel | Account Type | Tax Year | Buildings | Actual Value | Local Govt Assessed Value | School Assessed Value |
|---|---|---|---|---|---|---|---|
| R2862886 | 096106110002 | Residential | 2026 | 1 | 329,724 | 20,600 | 23,240 |
| Reception | Rec Date | Type | Grantor | Grantee | Doc Fee | Sale Date | Sale Price |
|---|---|---|---|---|---|---|---|
| 01656617 | 03-24-1975 | WDN | 0.00 | 01-01-1900 | 0 | ||
| 154105 | NA | SUB | SUBDIVISION | BILLINGS & SYLVESTER | 0.00 | NA | 0 |
| 1656617 | 03-24-1975 | WDN | CANTRELL HEUBERT E & L JEAN | 0.00 | 03-10-1975 | 0 | |
| 2500598 | 07-12-1996 | PRD | CANTRELL HEUBERT E (HEIRS OF) | CANTRELL CORINNA M & | 5.00 | 07-10-1996 | 50,000 |
| 2724903 | 10-06-1999 | QCN | CANTRELL CORINNA M & | CANTRELL CORINNA M & RONALD | 0.00 | 10-06-1999 | 0 |
| 3405489 | 07-25-2006 | WD | CANTRELL CORINNA M & RONALD (HEIRS OF) | BARNES LAURA | 12.50 | 07-25-2006 | 125,000 |
| 3405490 | 07-25-2006 | DTHC | CANTRELL CORINNA M & RONALD | CANTRELL CORINNA M & RONALD (HEIRS OF) | 0.00 | 03-07-2005 | 0 |
| 3446055 | 01-08-2007 | SWDN | BARNES LAURA | 2813 VENTURES GROUP INC | 0.00 | 12-29-2006 | 0 |
| 3502489 | 09-07-2007 | SWDN | 2813 VENTURES GROUP INC | FOGLESONG JOY | 0.00 | 12-29-2006 | 0 |
| 3526848 | 01-02-2008 | QCN | FOGLESONG JOY | HF GREELEY LLC | 0.00 | 11-02-2007 | 0 |
| 3569394 | 07-30-2008 | SWD | HF GREELEY LLC | GARCIA ISMAEL & | 9.00 | 07-25-2008 | 90,000 |
| 4409384 | 06-22-2018 | WD | GARCES MARIA; GARCIA ISMAEL | ALONSO MARTIN PEREZ; HERNANDEZ NANCY BUCIO | 17.50 | 06-18-2018 | 175,000 |
*If the hyperlink for the reception number does not work, try a manual search in the Clerk and Recorder records. Use the Grantor or Grantee in your search.
| Account | Parcel | Account Type | Tax Year | Buildings | Actual Value | Local Govt Assessed Value | School Assessed Value |
|---|---|---|---|---|---|---|---|
| R2862886 | 096106110002 | Residential | 2026 | 1 | 329,724 | 20,600 | 23,240 |
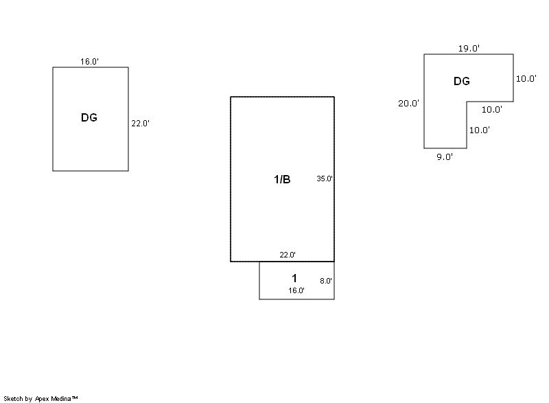
Building 1
| AccountNo | Building ID | Occupancy |
|---|---|---|
| R2862886 | 1 | Single Family Residential |
| ID | Type | NBHD | Occupancy | % Complete | Bedrooms | Baths |
|---|---|---|---|---|---|---|
| 1 | Residential | 6G1037 | Single Family Residential | 100 | 2 | 1.00 |
| ID | Exterior | Roof Cover | Interior | HVAC | Perimeter | Units | Unit Type | Make |
|---|---|---|---|---|---|---|---|---|
| 1 | Frame Hardboard | Composition Shingle | Drywall | Forced Air | 0 | 0 | NA | NA |
| ID | Square Ft | Condo SF | Total Basement SF | Finished Basement SF | Garage SF | Carport SF | Balcony SF | Porch SF |
|---|---|---|---|---|---|---|---|---|
| 1 | 898 | 0 | 770 | 770 | 632 | 0 | 0 | 0 |
| ID | Built As | Square Ft | Year Built | Stories | Length | Width |
|---|---|---|---|---|---|---|
| 1.00 | Ranch 1 Story | 898 | 1900 | 1 | 0 | 0 |
| ID | Detail Type | Description | Units |
|---|---|---|---|
| 1 | Basement | Fair Finish | 770.00 |
| 1 | Basement | Total Basement SF | 770.00 |
| 1 | Fixture | Full Bath | 1.00 |
| 1 | Garage | Detached | 632.00 |
| Account | Parcel | Account Type | Tax Year | Buildings | Actual Value | Local Govt Assessed Value | School Assessed Value |
|---|---|---|---|---|---|---|---|
| R2862886 | 096106110002 | Residential | 2026 | 1 | 329,724 | 20,600 | 23,240 |
| Type | Code | Description | Actual Value | Local Govt Assessed Value | School Assessed Value | Acres | Land SqFt |
|---|---|---|---|---|---|---|---|
| Improvement | 1212 | SINGLE FAMILY RESIDENTIAL IMPROVEMENTS | 253,494 | 15,840 | 17,870 | 0.000 | 0 |
| Land | 1112 | SINGLE FAMILY RESIDENTIAL-LAND | 76,230 | 4,760 | 5,370 | 0.250 | 10,890 |
| Totals | - | - | 329,724 | 20,600 | 23,240 | 0.250 | 10,890 |
Comparable sales for your Residential or Commercial property may be found using our SALES SEARCH TOOL
Values are updated annually on May 1st for Real Property and June 15th for Personal Property and Oil and Gas.
| Account | Parcel | Account Type | Tax Year | Buildings | Actual Value | Local Govt Assessed Value | School Assessed Value |
|---|---|---|---|---|---|---|---|
| R2862886 | 096106110002 | Residential | 2026 | 1 | 329,724 | 20,600 | 23,240 |
| Tax Area | District ID | District Name | Local Govt Mill Levy |
School Mill Levy |
Estimated Taxes |
|---|---|---|---|---|---|
| 0600 | 0700 | AIMS JUNIOR COLLEGE | 6.313 | 0.000 | $130.05 |
| 0600 | 0411 | GREELEY CITY | 11.274 | 0.000 | $232.24 |
| 0600 | 1050 | HIGH PLAINS LIBRARY | 3.044 | 0.000 | $62.71 |
| 0600 | 0301 | NORTHERN COLORADO WATER (NCW) | 1.000 | 0.000 | $20.60 |
| 0600 | 0206 | SCHOOL DIST 6-GREELEY | 0.000 | 47.615 | $1,106.57 |
| 0600 | 0100 | WELD COUNTY | 15.956 | 0.000 | $328.69 |
| Total | - | - | 37.587 | 47.615 | $1,880.86 |
The estimate of tax is based on the prior year mill levy and the 2025 projected assessment rates. Mill levies and tax estimates will be updated yearly on December 22nd for the current year. Additional information can be found at https://assessor.weld.gov



