Account: R2866486
April 5, 2026
| Account | Parcel | Account Type | Tax Year | Buildings | Actual Value | Local Govt Assessed Value | School Assessed Value |
|---|---|---|---|---|---|---|---|
| R2866486 | 096106112001 | Residential | 2026 | 1 | 301,078 | 18,820 | 21,230 |
| Legal |
|---|
| GR 2HO1-8 L8 BLK1 HOLMES SUB 2ND FG AND THE VACATED SOUTHERN 15' 1ST ST ROW LOCATED EAST OF 16TH AVE AND N OF AND ADJ TO LOT 8 BLK1 |
| Subdivision | Block | Lot | Land Economic Area |
|---|---|---|---|
| HOLMES SUB 2ND FG | 1 | 8 | 2ND ST N, 23RD AVE TO 14TH AVE |
| Property Address | Property City | Section | Township | Range |
|---|---|---|---|---|
| 104 16TH AVE | GREELEY | 06 | 05 | 65 |
| Account | Parcel | Account Type | Tax Year | Buildings | Actual Value | Local Govt Assessed Value | School Assessed Value |
|---|---|---|---|---|---|---|---|
| R2866486 | 096106112001 | Residential | 2026 | 1 | 301,078 | 18,820 | 21,230 |
| Account | Owner Name | Address |
|---|---|---|
| R2866486 | MARTINEZ CARLOS J AGUILAR | 21045 COUNTY ROAD 33 LA SALLE, CO 806457906 |
| R2866486 | ROJAS ARMINDA |
| Account | Parcel | Account Type | Tax Year | Buildings | Actual Value | Local Govt Assessed Value | School Assessed Value |
|---|---|---|---|---|---|---|---|
| R2866486 | 096106112001 | Residential | 2026 | 1 | 301,078 | 18,820 | 21,230 |
| Reception | Rec Date | Type | Grantor | Grantee | Doc Fee | Sale Date | Sale Price |
|---|---|---|---|---|---|---|---|
| 01933696 | 07-15-1983 | WDN | 0.00 | 01-01-1900 | 0 | ||
| 1469307 | NA | SUB | SUBDIVISION | WEBER WEST 5TH RPLT | 0.00 | NA | 0 |
| 2346398 | 08-16-1993 | WD | ALVARADO IGNACIO & LORI K | CARMAIN LINDA GAYLE | 4.99 | 08-13-1993 | 49,900 |
| 2430953 | 03-21-1995 | WD | CARMAIN LINDA GAYLE | NAVA GERARDO & EMMA | 6.00 | 03-20-1995 | 60,000 |
| 2565638 | 08-26-1997 | WD | NAVA GERARDO & EMMA | CARPENTER LARRY | 7.25 | 08-25-1997 | 72,500 |
| 2806119 | 11-13-2000 | PTD | CARPENTER LARRY | SECRETARY OF HOUSING & URBAN DEVELOPMENT | 0.00 | 11-13-2000 | 0 |
| 2829120 | 03-01-2001 | WD | SENIOR ENTREPRENEURS FOUNDATION DBA | STROH TIMOTHY D | 5.75 | 02-08-2001 | 57,500 |
| 2856604 | 06-12-2001 | WD | STROH TIMOTHY D | OLIVAS CUTBERTO & | 10.20 | 06-08-2001 | 102,000 |
| 3123076 | 11-03-2003 | WD | OLIVAS CUTBERTO & MARIA DE JESUS PALMA D | MARES-SARDINA JUANA | 12.00 | 10-31-2003 | 120,000 |
| 3582656 | 10-07-2008 | PTD | MARES-SARDINA JUANA | USA HUD | 0.00 | 10-06-2008 | 0 |
| 3636139 | 07-13-2009 | SWD | USA HUD | CRUZ EMMA N | 0.00 | 07-10-2009 | 35,000 |
| 3911353 | 02-20-2013 | ORD | GREELEY CITY ORD 3 | GREELEY CITY ORD 3 | 0.00 | 02-19-2013 | 0 |
| 4346959 | 10-25-2017 | QCN | CRUZ EMMA N | MARTINEZ CARLOS J AGUILAR; ROJAS ARMINDA | 0.00 | 10-25-2017 | 0 |
| X0007480 | 07-15-1983 | CON | ALVARADO IGNACIO & LORI K | 4.35 | 07-15-1983 | 43,500 |
*If the hyperlink for the reception number does not work, try a manual search in the Clerk and Recorder records. Use the Grantor or Grantee in your search.
| Account | Parcel | Account Type | Tax Year | Buildings | Actual Value | Local Govt Assessed Value | School Assessed Value |
|---|---|---|---|---|---|---|---|
| R2866486 | 096106112001 | Residential | 2026 | 1 | 301,078 | 18,820 | 21,230 |
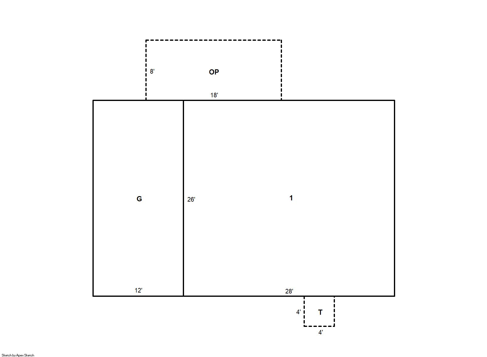
Building 1
| AccountNo | Building ID | Occupancy |
|---|---|---|
| R2866486 | 1 | Single Family Residential |
| ID | Type | NBHD | Occupancy | % Complete | Bedrooms | Baths |
|---|---|---|---|---|---|---|
| 1 | Residential | 6G1037 | Single Family Residential | 100 | 2 | 1.00 |
| ID | Exterior | Roof Cover | Interior | HVAC | Perimeter | Units | Unit Type | Make |
|---|---|---|---|---|---|---|---|---|
| 1 | Frame Siding | Composition Shingle | Drywall | Forced Air | 108 | 0 | NA | NA |
| ID | Square Ft | Condo SF | Total Basement SF | Finished Basement SF | Garage SF | Carport SF | Balcony SF | Porch SF |
|---|---|---|---|---|---|---|---|---|
| 1 | 728 | 0 | 0 | 0 | 312 | 0 | 0 | 144 |
| ID | Built As | Square Ft | Year Built | Stories | Length | Width |
|---|---|---|---|---|---|---|
| 1.00 | Ranch 1 Story | 728 | 1969 | 1 | 0 | 0 |
| ID | Detail Type | Description | Units |
|---|---|---|---|
| 1 | Fixture | Full Bath | 1.00 |
| 1 | Garage | Attached | 312.00 |
| 1 | Porch | Open Slab | 16.00 |
| 1 | Porch | Slab Roof Ceil | 144.00 |
| Account | Parcel | Account Type | Tax Year | Buildings | Actual Value | Local Govt Assessed Value | School Assessed Value |
|---|---|---|---|---|---|---|---|
| R2866486 | 096106112001 | Residential | 2026 | 1 | 301,078 | 18,820 | 21,230 |
| Type | Code | Description | Actual Value | Local Govt Assessed Value | School Assessed Value | Acres | Land SqFt |
|---|---|---|---|---|---|---|---|
| Improvement | 1212 | SINGLE FAMILY RESIDENTIAL IMPROVEMENTS | 247,078 | 15,440 | 17,420 | 0.000 | 0 |
| Land | 1112 | SINGLE FAMILY RESIDENTIAL-LAND | 54,000 | 3,380 | 3,810 | 0.296 | 12,880 |
| Totals | - | - | 301,078 | 18,820 | 21,230 | 0.296 | 12,880 |
Comparable sales for your Residential or Commercial property may be found using our SALES SEARCH TOOL
Values are updated annually on May 1st for Real Property and June 15th for Personal Property and Oil and Gas.
| Account | Parcel | Account Type | Tax Year | Buildings | Actual Value | Local Govt Assessed Value | School Assessed Value |
|---|---|---|---|---|---|---|---|
| R2866486 | 096106112001 | Residential | 2026 | 1 | 301,078 | 18,820 | 21,230 |
| Tax Area | District ID | District Name | Local Govt Mill Levy |
School Mill Levy |
Estimated Taxes |
|---|---|---|---|---|---|
| 0600 | 0700 | AIMS JUNIOR COLLEGE | 6.313 | 0.000 | $118.81 |
| 0600 | 0411 | GREELEY CITY | 11.274 | 0.000 | $212.18 |
| 0600 | 1050 | HIGH PLAINS LIBRARY | 3.044 | 0.000 | $57.29 |
| 0600 | 0301 | NORTHERN COLORADO WATER (NCW) | 1.000 | 0.000 | $18.82 |
| 0600 | 0206 | SCHOOL DIST 6-GREELEY | 0.000 | 47.615 | $1,010.87 |
| 0600 | 0100 | WELD COUNTY | 15.956 | 0.000 | $300.29 |
| Total | - | - | 37.587 | 47.615 | $1,718.25 |
The estimate of tax is based on the prior year mill levy and the 2025 projected assessment rates. Mill levies and tax estimates will be updated yearly on December 22nd for the current year. Additional information can be found at https://assessor.weld.gov


