Account: R2891786
April 4, 2026
| Account | Parcel | Account Type | Tax Year | Buildings | Actual Value | Local Govt Assessed Value | School Assessed Value |
|---|---|---|---|---|---|---|---|
| R2891786 | 096106126002 | Residential | 2026 | 1 | 283,709 | 17,740 | 20,000 |
| Legal |
|---|
| GR 5733-J L2BLK6 EPPLES 1ST |
| Subdivision | Block | Lot | Land Economic Area |
|---|---|---|---|
| EPPLES 1ST ADD | 6 | 2 | 5TH ST, 23RD AVE WEST TO 8TH AVE |
| Property Address | Property City | Section | Township | Range |
|---|---|---|---|---|
| 402 16TH AVENUE CT | GREELEY | 06 | 05 | 65 |
| Account | Parcel | Account Type | Tax Year | Buildings | Actual Value | Local Govt Assessed Value | School Assessed Value |
|---|---|---|---|---|---|---|---|
| R2891786 | 096106126002 | Residential | 2026 | 1 | 283,709 | 17,740 | 20,000 |
| Account | Owner Name | Address |
|---|---|---|
| R2891786 | ARGUELLO PETER A | 402 E 16TH AVENUE CT GREELEY, CO 806312123 |
| R2891786 | DUFFY ERICK A |
| Account | Parcel | Account Type | Tax Year | Buildings | Actual Value | Local Govt Assessed Value | School Assessed Value |
|---|---|---|---|---|---|---|---|
| R2891786 | 096106126002 | Residential | 2026 | 1 | 283,709 | 17,740 | 20,000 |
| Reception | Rec Date | Type | Grantor | Grantee | Doc Fee | Sale Date | Sale Price |
|---|---|---|---|---|---|---|---|
| 1179888 | NA | SUB | SUBDIVISION | EPPLES 1ST | 0.00 | NA | 0 |
| 3439069 | 12-04-2006 | WD | DODGE DONALD & MARY E | 444 TRUST 01/26/04 | 1.00 | 11-17-2006 | 10,000 |
| 3439071 | 12-04-2006 | WD | 444 TRUST 01/26/04 | FAIR REAL ESTATE INVESTORS LLC | 3.75 | 11-17-2006 | 37,500 |
| 3441524 | 12-13-2006 | QCN | FAIR REAL ESTATE INVESTORS LLC | 402 16TH AVENUE TRUST | 0.00 | 12-07-2006 | 0 |
| 3458055 | 02-27-2007 | WD | 402 16TH AVENUE TRUST | TERRAZAS ELIAS A & | 5.08 | 02-23-2007 | 50,800 |
| 4062462 | 11-18-2014 | WD | TERRAZAS MARTHA P; TERRAZAS ELIAS A | ARGUELLO PETER A | 12.58 | 11-14-2014 | 125,800 |
| 4467771 | 02-19-2019 | QCN | ARGUELLO PETER A | DUFFY ERICK A; ARGUELLO PETER A | 0.00 | 02-15-2019 | 0 |
*If the hyperlink for the reception number does not work, try a manual search in the Clerk and Recorder records. Use the Grantor or Grantee in your search.
| Account | Parcel | Account Type | Tax Year | Buildings | Actual Value | Local Govt Assessed Value | School Assessed Value |
|---|---|---|---|---|---|---|---|
| R2891786 | 096106126002 | Residential | 2026 | 1 | 283,709 | 17,740 | 20,000 |
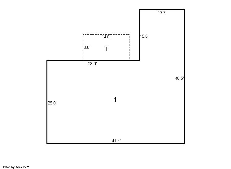
Building 1
| AccountNo | Building ID | Occupancy |
|---|---|---|
| R2891786 | 1 | Single Family Residential |
| ID | Type | NBHD | Occupancy | % Complete | Bedrooms | Baths |
|---|---|---|---|---|---|---|
| 1 | Residential | 6G1037 | Single Family Residential | 100 | 2 | 2.00 |
| ID | Exterior | Roof Cover | Interior | HVAC | Perimeter | Units | Unit Type | Make |
|---|---|---|---|---|---|---|---|---|
| 1 | Frame Stucco | Composition Shingle | Drywall | Forced Air | 0 | 0 | NA | NA |
| ID | Square Ft | Condo SF | Total Basement SF | Finished Basement SF | Garage SF | Carport SF | Balcony SF | Porch SF |
|---|---|---|---|---|---|---|---|---|
| 1 | 1,255 | 0 | 0 | 0 | 0 | 0 | 0 | 112 |
| ID | Built As | Square Ft | Year Built | Stories | Length | Width |
|---|---|---|---|---|---|---|
| 1.00 | Ranch 1 Story | 1,255 | 1954 | 1 | 0 | 0 |
| ID | Detail Type | Description | Units |
|---|---|---|---|
| 1 | Fixture | Full Bath | 2.00 |
| 1 | Porch | Open Slab | 112.00 |
| Account | Parcel | Account Type | Tax Year | Buildings | Actual Value | Local Govt Assessed Value | School Assessed Value |
|---|---|---|---|---|---|---|---|
| R2891786 | 096106126002 | Residential | 2026 | 1 | 283,709 | 17,740 | 20,000 |
| Type | Code | Description | Actual Value | Local Govt Assessed Value | School Assessed Value | Acres | Land SqFt |
|---|---|---|---|---|---|---|---|
| Improvement | 1212 | SINGLE FAMILY RESIDENTIAL IMPROVEMENTS | 245,209 | 15,330 | 17,290 | 0.000 | 0 |
| Land | 1112 | SINGLE FAMILY RESIDENTIAL-LAND | 38,500 | 2,410 | 2,710 | 0.126 | 5,500 |
| Totals | - | - | 283,709 | 17,740 | 20,000 | 0.126 | 5,500 |
Comparable sales for your Residential or Commercial property may be found using our SALES SEARCH TOOL
Values are updated annually on May 1st for Real Property and June 15th for Personal Property and Oil and Gas.
| Account | Parcel | Account Type | Tax Year | Buildings | Actual Value | Local Govt Assessed Value | School Assessed Value |
|---|---|---|---|---|---|---|---|
| R2891786 | 096106126002 | Residential | 2026 | 1 | 283,709 | 17,740 | 20,000 |
| Tax Area | District ID | District Name | Local Govt Mill Levy |
School Mill Levy |
Estimated Taxes |
|---|---|---|---|---|---|
| 0600 | 0700 | AIMS JUNIOR COLLEGE | 6.313 | 0.000 | $111.99 |
| 0600 | 0411 | GREELEY CITY | 11.274 | 0.000 | $200.00 |
| 0600 | 1050 | HIGH PLAINS LIBRARY | 3.044 | 0.000 | $54.00 |
| 0600 | 0301 | NORTHERN COLORADO WATER (NCW) | 1.000 | 0.000 | $17.74 |
| 0600 | 0206 | SCHOOL DIST 6-GREELEY | 0.000 | 47.615 | $952.30 |
| 0600 | 0100 | WELD COUNTY | 15.956 | 0.000 | $283.06 |
| Total | - | - | 37.587 | 47.615 | $1,619.09 |
The estimate of tax is based on the prior year mill levy and the 2025 projected assessment rates. Mill levies and tax estimates will be updated yearly on December 22nd for the current year. Additional information can be found at https://assessor.weld.gov



