Account: R2899504

April 1, 2026

Account Parcel Account Type Tax Year Buildings Actual Value Local Govt Assessed Value School Assessed Value
R2899504 080715201055 Residential 2026 1 512,016 32,000 36,100

Legal
WIN 1WF L55 WINTER FARM 1ST FG

Subdivision Block Lot Land Economic Area
WINTER FARMS SUB 1ST FG 55 WINTER FARM 1ST

Property Address Property City Section Township Range
602 YUKON CT WINDSOR 15 06 67




Account Parcel Account Type Tax Year Buildings Actual Value Local Govt Assessed Value School Assessed Value
R2899504 080715201055 Residential 2026 1 512,016 32,000 36,100

Account Owner Name Address
R2899504 BLACKLER ROBERT JACOB 602 YUKON CT WINDSOR, CO 805503187
R2899504 ANDERSON MAX DYLAN


Account Parcel Account Type Tax Year Buildings Actual Value Local Govt Assessed Value School Assessed Value
R2899504 080715201055 Residential 2026 1 512,016 32,000 36,100

Reception Rec Date Type Grantor Grantee Doc Fee Sale Date Sale Price
3160633 NA SUB SUBDIVISION WINTER FARM 1ST FG 0.00 NA 0
3302366 07-12-2005 WDN WINTER FARM DEVELOPMENT LLC WINTER FARM-WINDSOR LLC 0.00 06-23-2005 0
3876972 09-28-2012 WD WINTER FARM WINDSOR LLC PRESTIGE HOMES LLC 7.40 09-28-2012 74,000
3903990 01-18-2013 WD PRESTIGE HOMES LLC ZELENKO ANNA 22.36 01-18-2013 223,600
5035384 06-13-2025 WD ZELENKO ANNA BLACKLER ROBERT JACOB; ANDERSON MAX DYLAN 50.70 06-11-2025 507,000



Account Parcel Account Type Tax Year Buildings Actual Value Local Govt Assessed Value School Assessed Value
R2899504 080715201055 Residential 2026 1 512,016 32,000 36,100

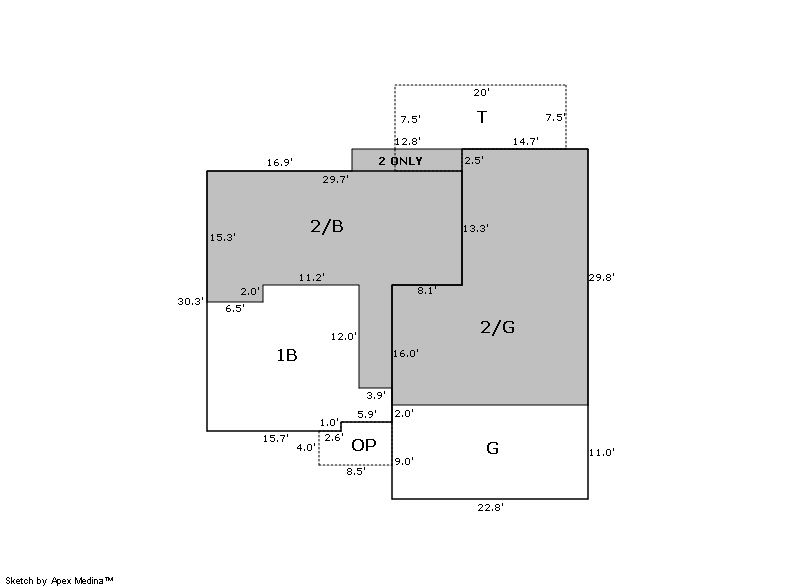
Building 1

AccountNo Building ID Occupancy
R2899504 1 Single Family Residential


ID Type NBHD Occupancy % Complete Bedrooms Baths
1 Residential 2W0013 Single Family Residential 100 4 3.00


ID Exterior Roof Cover Interior HVAC Perimeter Units Unit Type Make
1 Frame Siding Composition Shingle Drywall Central Air to Air 0 0 NA NA


ID Square Ft Condo SF Total Basement SF Finished Basement SF Garage SF Carport SF Balcony SF Porch SF
1 1,794 0 756 0 802 0 0 170


Built As Details for Building 1
ID Built As Square Ft Year Built Stories Length Width
1.00 2 Story 1,794 2012 1 0 0


Additional Details for Building 1
ID Detail Type Description Units
1 Basement Total Basement SF 756.00
1 Fixture Full Bath 2.00
1 Fixture Half Bath 1.00
1 Garage Attached 802.00
1 Porch Open Slab 170.00
1 Porch Slab Roof Ceil 40.00
1 Rough In Rough In 1.00





Account Parcel Account Type Tax Year Buildings Actual Value Local Govt Assessed Value School Assessed Value
R2899504 080715201055 Residential 2026 1 512,016 32,000 36,100

Type Code Description Actual Value Local Govt Assessed Value School Assessed Value Acres Land SqFt
Improvement 1212 SINGLE FAMILY RESIDENTIAL IMPROVEMENTS 392,016 24,500 27,640 0.000 0
Land 1112 SINGLE FAMILY RESIDENTIAL-LAND 120,000 7,500 8,460 0.188 8,168
Totals - - 512,016 32,000 36,100 0.188 8,168


Account Parcel Account Type Tax Year Buildings Actual Value Local Govt Assessed Value School Assessed Value
R2899504 080715201055 Residential 2026 1 512,016 32,000 36,100

Tax Area District ID District Name Local Govt
Mill Levy
School
Mill Levy
Estimated
Taxes
2543 0700 AIMS JUNIOR COLLEGE 6.313 0.000 $202.02
2543 1051 CLEARVIEW LIBRARY 3.546 0.000 $113.47
2543 0304 NORTH WELD COUNTY WATER (NWC) 0.000 0.000 $0.00
2543 0301 NORTHERN COLORADO WATER (NCW) 1.000 0.000 $32.00
2543 0204 SCHOOL DIST RE4-WINDSOR 0.000 46.646 $1,683.92
2543 0100 WELD COUNTY 15.956 0.000 $510.59
2543 1200 WEST GREELEY CONSERVATION 0.414 0.000 $13.25
2543 0428 WINDSOR TOWN 12.030 0.000 $384.96
2543 0521 WINDSOR-SEVERANCE FIRE 8.535 0.000 $273.12
2543 1322 WINTER FARM METRO DIST 2 31.593 0.000 $1,010.98
Total - - 79.387 46.646 $4,224.30


The estimate of tax is based on the prior year mill levy and the 2025 projected assessment rates. Mill levies and tax estimates will be updated yearly on December 22nd for the current year. Additional information can be found at https://assessor.weld.gov










Select Reports to Print: