Account: R2900104

April 1, 2026

Account Parcel Account Type Tax Year Buildings Actual Value Local Govt Assessed Value School Assessed Value
R2900104 080715201061 Residential 2026 1 560,358 35,020 39,510

Legal
WIN 1WF L61 WINTER FARM 1ST FG

Subdivision Block Lot Land Economic Area
WINTER FARMS SUB 1ST FG 61 WINTER FARM 1ST

Property Address Property City Section Township Range
662 YUKON CT WINDSOR 15 06 67




Account Parcel Account Type Tax Year Buildings Actual Value Local Govt Assessed Value School Assessed Value
R2900104 080715201061 Residential 2026 1 560,358 35,020 39,510

Account Owner Name Address
R2900104 FOPPE CY P 662 YUKON CT WINDSOR, CO 805503187
R2900104 FOPPE TIFFANY P


Account Parcel Account Type Tax Year Buildings Actual Value Local Govt Assessed Value School Assessed Value
R2900104 080715201061 Residential 2026 1 560,358 35,020 39,510

Reception Rec Date Type Grantor Grantee Doc Fee Sale Date Sale Price
3160633 NA SUB SUBDIVISION WINTER FARM 1ST FG 0.00 NA 0
3302366 07-12-2005 WDN WINTER FARM DEVELOPMENT LLC WINTER FARM-WINDSOR LLC 0.00 06-23-2005 0
3651506 09-30-2009 WD WINTER FARM WINDSOR LLC SAGE HOMES LLC 10.20 09-23-2009 102,000
3769938 05-23-2011 WD SAGE HOMES LLC FOPPE CY P 26.90 05-18-2011 269,000



Account Parcel Account Type Tax Year Buildings Actual Value Local Govt Assessed Value School Assessed Value
R2900104 080715201061 Residential 2026 1 560,358 35,020 39,510

Building 1

AccountNo Building ID Occupancy
R2900104 1 Single Family Residential


ID Type NBHD Occupancy % Complete Bedrooms Baths
1 Residential 2W0013 Single Family Residential 100 3 3.00


ID Exterior Roof Cover Interior HVAC Perimeter Units Unit Type Make
1 Frame Hardboard Composition Shingle Drywall Central Air to Air 0 0 NA NA


ID Square Ft Condo SF Total Basement SF Finished Basement SF Garage SF Carport SF Balcony SF Porch SF
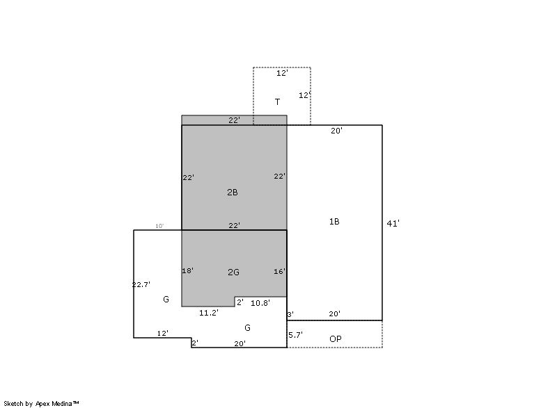
1 2,162 0 1,304 0 765 0 0 113


Built As Details for Building 1
ID Built As Square Ft Year Built Stories Length Width
1.00 2 Story 2,162 2009 1 0 0


Additional Details for Building 1
ID Detail Type Description Units
1 Add On Fireplace Gas 1.00
1 Basement Total Basement SF 1304.00
1 Fixture Full Bath 2.00
1 Fixture Half Bath 1.00
1 Garage Attached 765.00
1 Porch Open Slab 144.00
1 Porch Slab Roof Ceil 113.00
1 Rough In Rough In 1.00





Account Parcel Account Type Tax Year Buildings Actual Value Local Govt Assessed Value School Assessed Value
R2900104 080715201061 Residential 2026 1 560,358 35,020 39,510

Type Code Description Actual Value Local Govt Assessed Value School Assessed Value Acres Land SqFt
Improvement 1212 SINGLE FAMILY RESIDENTIAL IMPROVEMENTS 440,358 27,520 31,050 0.000 0
Land 1112 SINGLE FAMILY RESIDENTIAL-LAND 120,000 7,500 8,460 0.234 10,186
Totals - - 560,358 35,020 39,510 0.234 10,186


Account Parcel Account Type Tax Year Buildings Actual Value Local Govt Assessed Value School Assessed Value
R2900104 080715201061 Residential 2026 1 560,358 35,020 39,510

Tax Area District ID District Name Local Govt
Mill Levy
School
Mill Levy
Estimated
Taxes
2543 0700 AIMS JUNIOR COLLEGE 6.313 0.000 $221.08
2543 1051 CLEARVIEW LIBRARY 3.546 0.000 $124.18
2543 0304 NORTH WELD COUNTY WATER (NWC) 0.000 0.000 $0.00
2543 0301 NORTHERN COLORADO WATER (NCW) 1.000 0.000 $35.02
2543 0204 SCHOOL DIST RE4-WINDSOR 0.000 46.646 $1,842.98
2543 0100 WELD COUNTY 15.956 0.000 $558.78
2543 1200 WEST GREELEY CONSERVATION 0.414 0.000 $14.50
2543 0428 WINDSOR TOWN 12.030 0.000 $421.29
2543 0521 WINDSOR-SEVERANCE FIRE 8.535 0.000 $298.90
2543 1322 WINTER FARM METRO DIST 2 31.593 0.000 $1,106.39
Total - - 79.387 46.646 $4,623.12


The estimate of tax is based on the prior year mill levy and the 2025 projected assessment rates. Mill levies and tax estimates will be updated yearly on December 22nd for the current year. Additional information can be found at https://assessor.weld.gov










Select Reports to Print: