Account: R2908604

April 1, 2026

Account Parcel Account Type Tax Year Buildings Actual Value Local Govt Assessed Value School Assessed Value
R2908604 080715201250 Residential 2026 1 521,853 32,620 36,790

Legal
WIN 1WF L250 WINTER FARM 1ST FG

Subdivision Block Lot Land Economic Area
WINTER FARMS SUB 1ST FG 250 WINTER FARM 1ST

Property Address Property City Section Township Range
571 WIND RIVER DR WINDSOR 15 06 67




Account Parcel Account Type Tax Year Buildings Actual Value Local Govt Assessed Value School Assessed Value
R2908604 080715201250 Residential 2026 1 521,853 32,620 36,790

Account Owner Name Address
R2908604 ROCKET LEFT LLC 2809 E HARMONY RD STE 310 FORT COLLINS, CO 805283142


Account Parcel Account Type Tax Year Buildings Actual Value Local Govt Assessed Value School Assessed Value
R2908604 080715201250 Residential 2026 1 521,853 32,620 36,790

Reception Rec Date Type Grantor Grantee Doc Fee Sale Date Sale Price
3160633 NA SUB SUBDIVISION WINTER FARM 1ST FG 0.00 NA 0
3302366 07-12-2005 WDN WINTER FARM DEVELOPMENT LLC WINTER FARM-WINDSOR LLC 0.00 06-23-2005 0
3612905 03-26-2009 WD WINTER FARM WINDSOR LLC TRI COUNTY HOLDINGS LLC 37.20 03-19-2009 372,000
3673885 02-04-2010 WD TRI COUNTY HOLDINGS LLC SCOTT JAMES J & STOVER KAITLYN C 21.40 01-29-2010 214,000
3928151 04-29-2013 QCN SCOTT JAMES J SCOTT JAMES J 0.00 04-24-2013 0
4634240 09-28-2020 WD SCOTT JAMES J; SCOTT KAITLYN C ROCKET LEFT LLC 41.25 09-23-2020 412,500



Account Parcel Account Type Tax Year Buildings Actual Value Local Govt Assessed Value School Assessed Value
R2908604 080715201250 Residential 2026 1 521,853 32,620 36,790

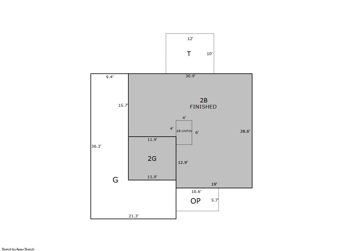
Building 1

AccountNo Building ID Occupancy
R2908604 1 Single Family Residential


ID Type NBHD Occupancy % Complete Bedrooms Baths
1 Residential 2W0013 Single Family Residential 100 4 4.00


ID Exterior Roof Cover Interior HVAC Perimeter Units Unit Type Make
1 Frame Hardboard Composition Shingle Drywall Central Air to Air 0 0 NA NA


ID Square Ft Condo SF Total Basement SF Finished Basement SF Garage SF Carport SF Balcony SF Porch SF
1 1,590 0 730 706 586 0 0 60


Built As Details for Building 1
ID Built As Square Ft Year Built Stories Length Width
1.00 2 Story 1,590 2009 1 0 0


Additional Details for Building 1
ID Detail Type Description Units
1 Add On Fireplace Gas 1.00
1 Basement Finished 706.00
1 Basement Total Basement SF 730.00
1 Fixture Full Bath 3.00
1 Fixture Half Bath 1.00
1 Garage Attached 586.00
1 Porch Open Slab 120.00
1 Porch Slab Roof Ceil 60.00





Account Parcel Account Type Tax Year Buildings Actual Value Local Govt Assessed Value School Assessed Value
R2908604 080715201250 Residential 2026 1 521,853 32,620 36,790

Type Code Description Actual Value Local Govt Assessed Value School Assessed Value Acres Land SqFt
Improvement 1212 SINGLE FAMILY RESIDENTIAL IMPROVEMENTS 401,853 25,120 28,330 0.000 0
Land 1112 SINGLE FAMILY RESIDENTIAL-LAND 120,000 7,500 8,460 0.161 6,992
Totals - - 521,853 32,620 36,790 0.161 6,992


Account Parcel Account Type Tax Year Buildings Actual Value Local Govt Assessed Value School Assessed Value
R2908604 080715201250 Residential 2026 1 521,853 32,620 36,790

Tax Area District ID District Name Local Govt
Mill Levy
School
Mill Levy
Estimated
Taxes
2543 0700 AIMS JUNIOR COLLEGE 6.313 0.000 $205.93
2543 1051 CLEARVIEW LIBRARY 3.546 0.000 $115.67
2543 0304 NORTH WELD COUNTY WATER (NWC) 0.000 0.000 $0.00
2543 0301 NORTHERN COLORADO WATER (NCW) 1.000 0.000 $32.62
2543 0204 SCHOOL DIST RE4-WINDSOR 0.000 46.646 $1,716.11
2543 0100 WELD COUNTY 15.956 0.000 $520.48
2543 1200 WEST GREELEY CONSERVATION 0.414 0.000 $13.50
2543 0428 WINDSOR TOWN 12.030 0.000 $392.42
2543 0521 WINDSOR-SEVERANCE FIRE 8.535 0.000 $278.41
2543 1322 WINTER FARM METRO DIST 2 31.593 0.000 $1,030.56
Total - - 79.387 46.646 $4,305.71


The estimate of tax is based on the prior year mill levy and the 2025 projected assessment rates. Mill levies and tax estimates will be updated yearly on December 22nd for the current year. Additional information can be found at https://assessor.weld.gov










Select Reports to Print: