Account: R2911904

April 1, 2026

Account Parcel Account Type Tax Year Buildings Actual Value Local Govt Assessed Value School Assessed Value
R2911904 080715301038 Residential 2026 1 547,840 34,240 38,620

Legal
WIN 1WF L38 WINTER FARM 1ST FG

Subdivision Block Lot Land Economic Area
WINTER FARMS SUB 1ST FG 38 WINTER FARM 1ST

Property Address Property City Section Township Range
530 WIND RIVER DR WINDSOR 15 06 67




Account Parcel Account Type Tax Year Buildings Actual Value Local Govt Assessed Value School Assessed Value
R2911904 080715301038 Residential 2026 1 547,840 34,240 38,620

Account Owner Name Address
R2911904 SFR II BORROWER 2021-3 LLC TRICON RESIDENTIAL C/O RYAN LLC PO BOX 4900 SCOTTSDALE, AZ 852614900


Account Parcel Account Type Tax Year Buildings Actual Value Local Govt Assessed Value School Assessed Value
R2911904 080715301038 Residential 2026 1 547,840 34,240 38,620

Reception Rec Date Type Grantor Grantee Doc Fee Sale Date Sale Price
3160633 NA SUB SUBDIVISION WINTER FARM 1ST FG 0.00 NA 0
3302366 07-12-2005 WDN WINTER FARM DEVELOPMENT LLC WINTER FARM-WINDSOR LLC 0.00 06-23-2005 0
3863629 08-03-2012 WD WINTER FARM WINDSOR LLC CB SIGNATURE HOMES LLC 7.40 07-31-2012 74,000
3926645 04-23-2013 SWD CB SIGNATURE HOMES LLC FUNDALINSKI JUSTIN M 24.99 04-22-2013 249,900
4428839 09-06-2018 WD FUNDALINSKI JUSTIN M; FUNDALINSKI KATHLEEN J VANHORN JUSTIN 37.35 08-31-2018 373,500
4726404 06-16-2021 WD VANHORN JUSTIN HPA US1 LLC 47.50 06-15-2021 475,000
4822100 04-27-2022 SWDN HPA US1 LLC SFR II BORROWER 2021-3 LLC 0.00 12-22-2021 0



Account Parcel Account Type Tax Year Buildings Actual Value Local Govt Assessed Value School Assessed Value
R2911904 080715301038 Residential 2026 1 547,840 34,240 38,620

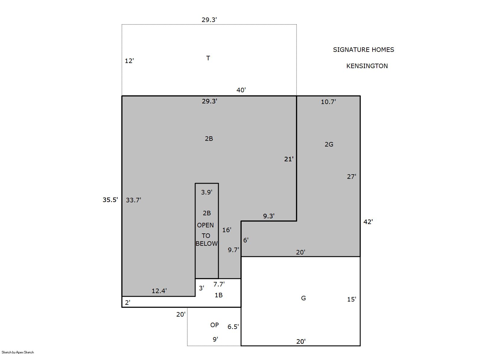
Building 1

AccountNo Building ID Occupancy
R2911904 1 Single Family Residential


ID Type NBHD Occupancy % Complete Bedrooms Baths
1 Residential 2W0013 Single Family Residential 100 4 3.00


ID Exterior Roof Cover Interior HVAC Perimeter Units Unit Type Make
1 Frame Siding Composition Shingle Drywall Central Air to Air 317 0 NA NA


ID Square Ft Condo SF Total Basement SF Finished Basement SF Garage SF Carport SF Balcony SF Porch SF
1 2,034 0 905 0 645 0 0 352


Built As Details for Building 1
ID Built As Square Ft Year Built Stories Length Width
1.00 2 Story 2,034 2013 2 0 0


Additional Details for Building 1
ID Detail Type Description Units
1 Add On Fireplace Gas 1.00
1 Basement Total Basement SF 905.00
1 Fixture Full Bath 2.00
1 Fixture Half Bath 1.00
1 Garage Attached 645.00
1 Porch Open Slab 352.00
1 Porch Slab Roof Ceil 59.00
1 Rough In Rough In 1.00





Account Parcel Account Type Tax Year Buildings Actual Value Local Govt Assessed Value School Assessed Value
R2911904 080715301038 Residential 2026 1 547,840 34,240 38,620

Type Code Description Actual Value Local Govt Assessed Value School Assessed Value Acres Land SqFt
Improvement 1212 SINGLE FAMILY RESIDENTIAL IMPROVEMENTS 427,840 26,740 30,160 0.000 0
Land 1112 SINGLE FAMILY RESIDENTIAL-LAND 120,000 7,500 8,460 0.139 6,032
Totals - - 547,840 34,240 38,620 0.139 6,032


Account Parcel Account Type Tax Year Buildings Actual Value Local Govt Assessed Value School Assessed Value
R2911904 080715301038 Residential 2026 1 547,840 34,240 38,620

Tax Area District ID District Name Local Govt
Mill Levy
School
Mill Levy
Estimated
Taxes
2543 0700 AIMS JUNIOR COLLEGE 6.313 0.000 $216.16
2543 1051 CLEARVIEW LIBRARY 3.546 0.000 $121.42
2543 0304 NORTH WELD COUNTY WATER (NWC) 0.000 0.000 $0.00
2543 0301 NORTHERN COLORADO WATER (NCW) 1.000 0.000 $34.24
2543 0204 SCHOOL DIST RE4-WINDSOR 0.000 46.646 $1,801.47
2543 0100 WELD COUNTY 15.956 0.000 $546.33
2543 1200 WEST GREELEY CONSERVATION 0.414 0.000 $14.18
2543 0428 WINDSOR TOWN 12.030 0.000 $411.91
2543 0521 WINDSOR-SEVERANCE FIRE 8.535 0.000 $292.24
2543 1322 WINTER FARM METRO DIST 2 31.593 0.000 $1,081.74
Total - - 79.387 46.646 $4,519.68


The estimate of tax is based on the prior year mill levy and the 2025 projected assessment rates. Mill levies and tax estimates will be updated yearly on December 22nd for the current year. Additional information can be found at https://assessor.weld.gov










Select Reports to Print: