Account: R2919204

April 1, 2026

Account Parcel Account Type Tax Year Buildings Actual Value Local Govt Assessed Value School Assessed Value
R2919204 080715301214 Residential 2026 1 586,732 36,670 41,360

Legal
WIN 1WF L214 WINTER FARM 1ST FG

Subdivision Block Lot Land Economic Area
WINTER FARMS SUB 1ST FG 214 WINTER FARM 1ST

Property Address Property City Section Township Range
362 SARATOGA WAY WINDSOR 15 06 67




Account Parcel Account Type Tax Year Buildings Actual Value Local Govt Assessed Value School Assessed Value
R2919204 080715301214 Residential 2026 1 586,732 36,670 41,360

Account Owner Name Address
R2919204 MAJ KEVIN M 362 SARATOGA WAY WINDSOR, CO 805503196
R2919204 MAJ SHAWNA M


Account Parcel Account Type Tax Year Buildings Actual Value Local Govt Assessed Value School Assessed Value
R2919204 080715301214 Residential 2026 1 586,732 36,670 41,360

Reception Rec Date Type Grantor Grantee Doc Fee Sale Date Sale Price
3160633 NA SUB SUBDIVISION WINTER FARM 1ST FG 0.00 NA 0
3302366 07-12-2005 WDN WINTER FARM DEVELOPMENT LLC WINTER FARM-WINDSOR LLC 0.00 06-23-2005 0
3810002 12-06-2011 WD WINTER FARM WINDSOR LLC SAGE HOMES LLC 7.00 11-30-2011 70,000
3862662 07-31-2012 WD SAGE HOMES LLC LAMAR FRANKLIN P 25.00 07-27-2012 250,000
4163573 12-08-2015 WD LAMAR FRANKLIN P; LAMAR CHRISTINA M MAJ KEVIN M; MAJ SHAWNA M 34.80 12-03-2015 348,000



Account Parcel Account Type Tax Year Buildings Actual Value Local Govt Assessed Value School Assessed Value
R2919204 080715301214 Residential 2026 1 586,732 36,670 41,360

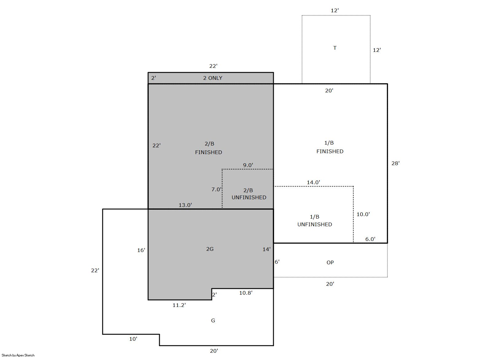
Building 1

AccountNo Building ID Occupancy
R2919204 1 Single Family Residential


ID Type NBHD Occupancy % Complete Bedrooms Baths
1 Residential 2W0013 Single Family Residential 100 3 4.00


ID Exterior Roof Cover Interior HVAC Perimeter Units Unit Type Make
1 Frame Hardboard Composition Shingle Drywall Central Air to Air 264 0 NA NA


ID Square Ft Condo SF Total Basement SF Finished Basement SF Garage SF Carport SF Balcony SF Porch SF
1 1,902 0 1,044 841 700 0 0 144


Built As Details for Building 1
ID Built As Square Ft Year Built Stories Length Width
1.00 2 Story 1,902 2012 2 0 0


Additional Details for Building 1
ID Detail Type Description Units
1 Add On Fireplace Gas 1.00
1 Basement Finished 841.00
1 Basement Total Basement SF 1044.00
1 Fixture Full Bath 3.00
1 Fixture Half Bath 1.00
1 Fixture Wet Bar 1.00
1 Garage Attached 700.00
1 Porch Open Slab 144.00
1 Porch Slab Roof Ceil 120.00





Account Parcel Account Type Tax Year Buildings Actual Value Local Govt Assessed Value School Assessed Value
R2919204 080715301214 Residential 2026 1 586,732 36,670 41,360

Type Code Description Actual Value Local Govt Assessed Value School Assessed Value Acres Land SqFt
Improvement 1212 SINGLE FAMILY RESIDENTIAL IMPROVEMENTS 466,732 29,170 32,900 0.000 0
Land 1112 SINGLE FAMILY RESIDENTIAL-LAND 120,000 7,500 8,460 0.205 8,912
Totals - - 586,732 36,670 41,360 0.205 8,912


Account Parcel Account Type Tax Year Buildings Actual Value Local Govt Assessed Value School Assessed Value
R2919204 080715301214 Residential 2026 1 586,732 36,670 41,360

Tax Area District ID District Name Local Govt
Mill Levy
School
Mill Levy
Estimated
Taxes
2543 0700 AIMS JUNIOR COLLEGE 6.313 0.000 $231.50
2543 1051 CLEARVIEW LIBRARY 3.546 0.000 $130.03
2543 0304 NORTH WELD COUNTY WATER (NWC) 0.000 0.000 $0.00
2543 0301 NORTHERN COLORADO WATER (NCW) 1.000 0.000 $36.67
2543 0204 SCHOOL DIST RE4-WINDSOR 0.000 46.646 $1,929.28
2543 0100 WELD COUNTY 15.956 0.000 $585.11
2543 1200 WEST GREELEY CONSERVATION 0.414 0.000 $15.18
2543 0428 WINDSOR TOWN 12.030 0.000 $441.14
2543 0521 WINDSOR-SEVERANCE FIRE 8.535 0.000 $312.98
2543 1322 WINTER FARM METRO DIST 2 31.593 0.000 $1,158.52
Total - - 79.387 46.646 $4,840.40


The estimate of tax is based on the prior year mill levy and the 2025 projected assessment rates. Mill levies and tax estimates will be updated yearly on December 22nd for the current year. Additional information can be found at https://assessor.weld.gov










Select Reports to Print: