Account: R3005904
April 1, 2026
| Account | Parcel | Account Type | Tax Year | Buildings | Actual Value | Local Govt Assessed Value | School Assessed Value |
|---|---|---|---|---|---|---|---|
| R3005904 | 095924331024 | Residential | 2026 | 1 | 379,109 | 23,690 | 26,730 |
| Legal |
|---|
| EVS 6NP L24 BLK1 NORTH POINT FG #6 |
| Subdivision | Block | Lot | Land Economic Area |
|---|---|---|---|
| NORTH POINT SUB 6TH FG | 1 | 24 | NORTH POINT |
| Property Address | Property City | Section | Township | Range |
|---|---|---|---|---|
| 3001 SHADY OAKS DR | EVANS | 24 | 05 | 66 |
| Account | Parcel | Account Type | Tax Year | Buildings | Actual Value | Local Govt Assessed Value | School Assessed Value |
|---|---|---|---|---|---|---|---|
| R3005904 | 095924331024 | Residential | 2026 | 1 | 379,109 | 23,690 | 26,730 |
| Account | Owner Name | Address |
|---|---|---|
| R3005904 | ANCHONDO FRANCISCO JAVIER RIVERA | 3001 SHADY OAKS DR EVANS, CO 806208972 |
| Account | Parcel | Account Type | Tax Year | Buildings | Actual Value | Local Govt Assessed Value | School Assessed Value |
|---|---|---|---|---|---|---|---|
| R3005904 | 095924331024 | Residential | 2026 | 1 | 379,109 | 23,690 | 26,730 |
| Reception | Rec Date | Type | Grantor | Grantee | Doc Fee | Sale Date | Sale Price |
|---|---|---|---|---|---|---|---|
| 3180480 | NA | SUB | SUBDIVISION | NORTH POINT FG #6 | 0.00 | NA | 0 |
| 3240800 | 12-03-2004 | WD | NORTH POINT EVANS DEVELOPMENT LLC | FRONT RANGE LAND RESOURCES INC | 100.00 | 11-30-2004 | 1,000,000 |
| 4469013 | 02-25-2019 | SWD | FRONT RANGE LAND RESOURCES INC | NORTH POINT LAND DEVELOPERS LLC | 185.63 | 02-22-2019 | 1,856,300 |
| 4505172 | 07-12-2019 | QCN | NORTH POINT LAND DEVELOPERS LLC | AJG NP DEVELOPMENT LLC | 0.00 | 07-10-2019 | 0 |
| 4506154 | 07-17-2019 | SWD | AJG NP DEVELOPMENT LLC | TRINITY ASSETS INC | 58.00 | 07-11-2019 | 580,000 |
| 4527580 | 09-27-2019 | SWD | TRINITY ASSETS INC | BAESSLER RESIDENTAL COLORADO LLC | 23.20 | 09-27-2019 | 232,000 |
| 4564989 | 02-10-2020 | SWD | BAESSLER RESIDENTAL COLORADO LLC | ENSLEY JEREMY | 26.85 | 02-07-2020 | 268,500 |
| 4782181 | 12-06-2021 | SWD | ENSLEY JEREMY | ANCHONDO FRANCISCO JAVIER RIVERA | 35.80 | 11-30-2021 | 358,000 |
*If the hyperlink for the reception number does not work, try a manual search in the Clerk and Recorder records. Use the Grantor or Grantee in your search.
| Account | Parcel | Account Type | Tax Year | Buildings | Actual Value | Local Govt Assessed Value | School Assessed Value |
|---|---|---|---|---|---|---|---|
| R3005904 | 095924331024 | Residential | 2026 | 1 | 379,109 | 23,690 | 26,730 |
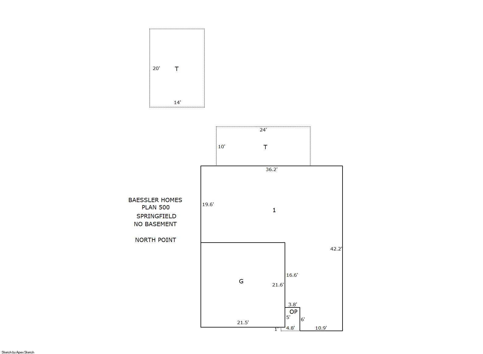
Building 1
| AccountNo | Building ID | Occupancy |
|---|---|---|
| R3005904 | 1 | Single Family Residential |
| ID | Type | NBHD | Occupancy | % Complete | Bedrooms | Baths |
|---|---|---|---|---|---|---|
| 1 | Residential | 6E1027 | Single Family Residential | 100 | 2 | 2.00 |
| ID | Exterior | Roof Cover | Interior | HVAC | Perimeter | Units | Unit Type | Make |
|---|---|---|---|---|---|---|---|---|
| 1 | Frame Siding | Composition Shingle | Drywall | Central Air to Air | 157 | 0 | NA | NA |
| ID | Square Ft | Condo SF | Total Basement SF | Finished Basement SF | Garage SF | Carport SF | Balcony SF | Porch SF |
|---|---|---|---|---|---|---|---|---|
| 1 | 1,019 | 0 | 0 | 0 | 464 | 0 | 0 | 520 |
| ID | Built As | Square Ft | Year Built | Stories | Length | Width |
|---|---|---|---|---|---|---|
| 1.00 | Ranch 1 Story | 1,019 | 2019 | 1 | 0 | 0 |
| ID | Detail Type | Description | Units |
|---|---|---|---|
| 1 | Fixture | Full Bath | 2.00 |
| 1 | Garage | Attached | 464.00 |
| 1 | Porch | Open Slab | 520.00 |
| 1 | Porch | Slab Roof Ceil | 24.00 |
| Account | Parcel | Account Type | Tax Year | Buildings | Actual Value | Local Govt Assessed Value | School Assessed Value |
|---|---|---|---|---|---|---|---|
| R3005904 | 095924331024 | Residential | 2026 | 1 | 379,109 | 23,690 | 26,730 |
| Type | Code | Description | Actual Value | Local Govt Assessed Value | School Assessed Value | Acres | Land SqFt |
|---|---|---|---|---|---|---|---|
| Improvement | 1212 | SINGLE FAMILY RESIDENTIAL IMPROVEMENTS | 299,109 | 18,690 | 21,090 | 0.000 | 0 |
| Land | 1112 | SINGLE FAMILY RESIDENTIAL-LAND | 80,000 | 5,000 | 5,640 | 0.145 | 6,300 |
| Totals | - | - | 379,109 | 23,690 | 26,730 | 0.145 | 6,300 |
Comparable sales for your Residential or Commercial property may be found using our SALES SEARCH TOOL
Values are updated annually on May 1st for Real Property and June 15th for Personal Property and Oil and Gas.
| Account | Parcel | Account Type | Tax Year | Buildings | Actual Value | Local Govt Assessed Value | School Assessed Value |
|---|---|---|---|---|---|---|---|
| R3005904 | 095924331024 | Residential | 2026 | 1 | 379,109 | 23,690 | 26,730 |
| Tax Area | District ID | District Name | Local Govt Mill Levy |
School Mill Levy |
Estimated Taxes |
|---|---|---|---|---|---|
| 0650 | 0700 | AIMS JUNIOR COLLEGE | 6.313 | 0.000 | $149.55 |
| 0650 | 0405 | EVANS CITY | 3.536 | 0.000 | $83.77 |
| 0650 | 0534 | EVANS FIRE | 15.500 | 0.000 | $367.20 |
| 0650 | 1050 | HIGH PLAINS LIBRARY | 3.044 | 0.000 | $72.11 |
| 0650 | 0301 | NORTHERN COLORADO WATER (NCW) | 1.000 | 0.000 | $23.69 |
| 0650 | 0206 | SCHOOL DIST 6-GREELEY | 0.000 | 47.615 | $1,272.75 |
| 0650 | 0100 | WELD COUNTY | 15.956 | 0.000 | $378.00 |
| Total | - | - | 45.349 | 47.615 | $2,347.07 |
The estimate of tax is based on the prior year mill levy and the 2025 projected assessment rates. Mill levies and tax estimates will be updated yearly on December 22nd for the current year. Additional information can be found at https://assessor.weld.gov


