Account: R3082086
April 1, 2026
| Account | Parcel | Account Type | Tax Year | Buildings | Actual Value | Local Govt Assessed Value | School Assessed Value |
|---|---|---|---|---|---|---|---|
| R3082086 | 096107125011 | Residential | 2026 | 1 | 320,412 | 20,030 | 22,590 |
| Legal |
|---|
| GR 3161 W90' L20 & S20' W90' L19 BLK159 2ND ADD CRANFORD |
| Subdivision | Block | Lot | Land Economic Area |
|---|---|---|---|
| CRANFORDS 2ND ADD | 159 | 19 | 16TH ST N, 21ST AVE TO 8TH AVE |
| Property Address | Property City | Section | Township | Range |
|---|---|---|---|---|
| 1325 16TH ST | GREELEY | 07 | 05 | 65 |
| Account | Parcel | Account Type | Tax Year | Buildings | Actual Value | Local Govt Assessed Value | School Assessed Value |
|---|---|---|---|---|---|---|---|
| R3082086 | 096107125011 | Residential | 2026 | 1 | 320,412 | 20,030 | 22,590 |
| Account | Owner Name | Address |
|---|---|---|
| R3082086 | ALVAREZ JUAN MANUEL | 1325 16TH ST GREELEY, CO 806315423 |
| Account | Parcel | Account Type | Tax Year | Buildings | Actual Value | Local Govt Assessed Value | School Assessed Value |
|---|---|---|---|---|---|---|---|
| R3082086 | 096107125011 | Residential | 2026 | 1 | 320,412 | 20,030 | 22,590 |
| Reception | Rec Date | Type | Grantor | Grantee | Doc Fee | Sale Date | Sale Price |
|---|---|---|---|---|---|---|---|
| 02039025 | 01-14-1986 | PRDN | 0.00 | 01-01-1900 | 0 | ||
| 110787 | NA | SUB | SUBDIVISION | CRANFORD 2ND ADD | 0.00 | NA | 0 |
| 2380208 | 03-25-1994 | WD | KAUFFMAN BRUCE L | SEXTON THOMAS | 4.25 | 03-01-1994 | 42,500 |
| 2380210 | 03-25-1994 | WD | SEXTON THOMAS | MOSER SHERRI L | 6.90 | 03-25-1994 | 69,000 |
| 4024808 | 06-19-2014 | WD | MOSER SHERRI L | LAMB L SCOTT | 12.70 | 06-16-2014 | 127,000 |
| 4210223 | 06-09-2016 | WD | LAMB L SCOTT; LAMB TAMMY | KRAUS CHERRI L; KRAUS BEAU B | 16.80 | 06-09-2016 | 168,000 |
| 5043743 | 07-28-2025 | WD | KRAUS CHERRI L; KRAUS BEAU B | ALVAREZ JUAN MANUEL | 36.00 | 07-18-2025 | 360,000 |
| X0008127 | 01-14-1986 | CON | KAUFFMAN BRUCE L | 4.25 | 01-14-1986 | 42,500 |
*If the hyperlink for the reception number does not work, try a manual search in the Clerk and Recorder records. Use the Grantor or Grantee in your search.
| Account | Parcel | Account Type | Tax Year | Buildings | Actual Value | Local Govt Assessed Value | School Assessed Value |
|---|---|---|---|---|---|---|---|
| R3082086 | 096107125011 | Residential | 2026 | 1 | 320,412 | 20,030 | 22,590 |
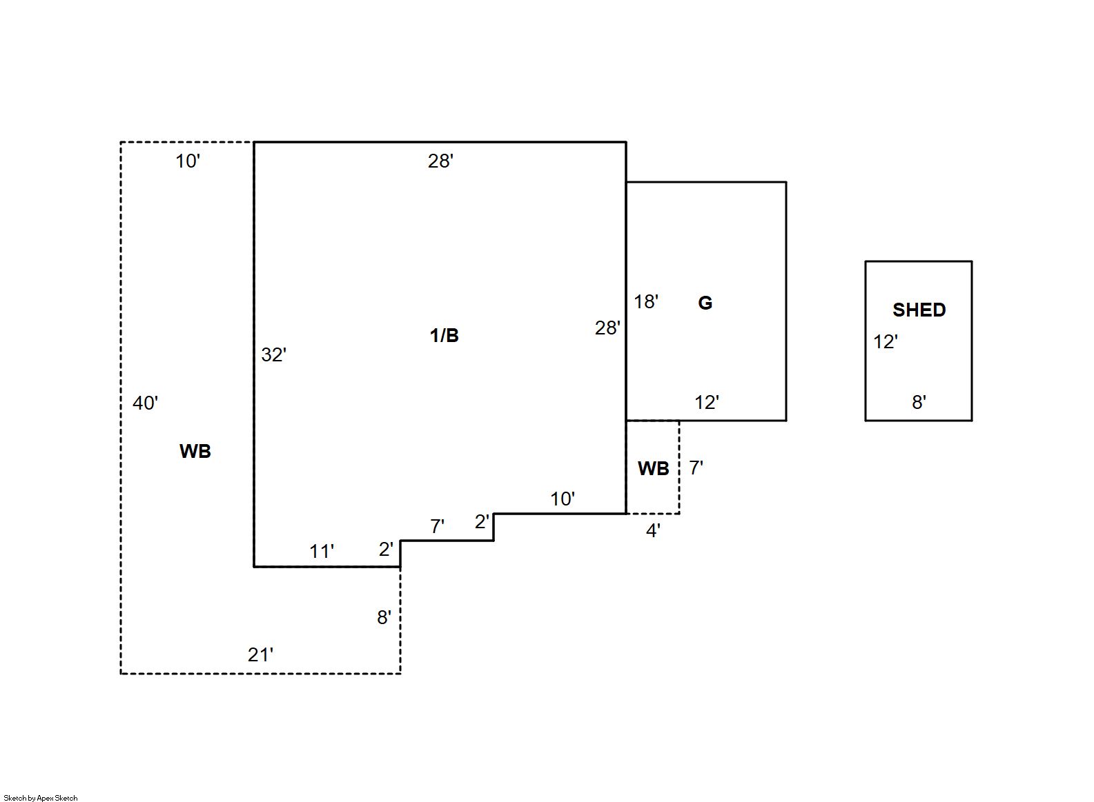
Building 1
| AccountNo | Building ID | Occupancy |
|---|---|---|
| R3082086 | 1 | Single Family Residential |
| ID | Type | NBHD | Occupancy | % Complete | Bedrooms | Baths |
|---|---|---|---|---|---|---|
| 1 | Residential | 6G1033 | Single Family Residential | 100 | 4 | 2.00 |
| ID | Exterior | Roof Cover | Interior | HVAC | Perimeter | Units | Unit Type | Make |
|---|---|---|---|---|---|---|---|---|
| 1 | Frame Siding | Composition Shingle | Drywall | Forced Air | 120 | 0 | NA | NA |
| ID | Square Ft | Condo SF | Total Basement SF | Finished Basement SF | Garage SF | Carport SF | Balcony SF | Porch SF |
|---|---|---|---|---|---|---|---|---|
| 1 | 842 | 0 | 842 | 842 | 216 | 0 | 516 | 0 |
| ID | Built As | Square Ft | Year Built | Stories | Length | Width |
|---|---|---|---|---|---|---|
| 1.00 | Ranch 1 Story | 842 | 1939 | 1 | 0 | 0 |
| ID | Detail Type | Description | Units |
|---|---|---|---|
| 1 | Balcony | Wood Wood Fin | 516.00 |
| 1 | Basement | Finished | 842.00 |
| 1 | Basement | Total Basement SF | 842.00 |
| 1 | Fixture | Full Bath | 2.00 |
| 1 | Garage | Attached | 216.00 |
| 1 | Storage | Wood | 96.00 |
| Account | Parcel | Account Type | Tax Year | Buildings | Actual Value | Local Govt Assessed Value | School Assessed Value |
|---|---|---|---|---|---|---|---|
| R3082086 | 096107125011 | Residential | 2026 | 1 | 320,412 | 20,030 | 22,590 |
| Type | Code | Description | Actual Value | Local Govt Assessed Value | School Assessed Value | Acres | Land SqFt |
|---|---|---|---|---|---|---|---|
| Improvement | 1212 | SINGLE FAMILY RESIDENTIAL IMPROVEMENTS | 277,572 | 17,350 | 19,570 | 0.000 | 0 |
| Land | 1112 | SINGLE FAMILY RESIDENTIAL-LAND | 42,840 | 2,680 | 3,020 | 0.141 | 6,120 |
| Totals | - | - | 320,412 | 20,030 | 22,590 | 0.141 | 6,120 |
Comparable sales for your Residential or Commercial property may be found using our SALES SEARCH TOOL
Values are updated annually on May 1st for Real Property and June 15th for Personal Property and Oil and Gas.
| Account | Parcel | Account Type | Tax Year | Buildings | Actual Value | Local Govt Assessed Value | School Assessed Value |
|---|---|---|---|---|---|---|---|
| R3082086 | 096107125011 | Residential | 2026 | 1 | 320,412 | 20,030 | 22,590 |
| Tax Area | District ID | District Name | Local Govt Mill Levy |
School Mill Levy |
Estimated Taxes |
|---|---|---|---|---|---|
| 0600 | 0700 | AIMS JUNIOR COLLEGE | 6.313 | 0.000 | $126.45 |
| 0600 | 0411 | GREELEY CITY | 11.274 | 0.000 | $225.82 |
| 0600 | 1050 | HIGH PLAINS LIBRARY | 3.044 | 0.000 | $60.97 |
| 0600 | 0301 | NORTHERN COLORADO WATER (NCW) | 1.000 | 0.000 | $20.03 |
| 0600 | 0206 | SCHOOL DIST 6-GREELEY | 0.000 | 47.615 | $1,075.62 |
| 0600 | 0100 | WELD COUNTY | 15.956 | 0.000 | $319.60 |
| Total | - | - | 37.587 | 47.615 | $1,828.49 |
The estimate of tax is based on the prior year mill levy and the 2025 projected assessment rates. Mill levies and tax estimates will be updated yearly on December 22nd for the current year. Additional information can be found at https://assessor.weld.gov


