Account: R3087686

April 1, 2026

Account Parcel Account Type Tax Year Buildings Actual Value Local Govt Assessed Value School Assessed Value
R3087686 096107203009 Residential 2026 1 353,647 22,100 24,930

Legal
GR 2610 L18BLK3 DAVIS

Subdivision Block Lot Land Economic Area
DAVIS ADD 3 18 WEST OF 23RD AVE AND SOUTH OF 10TH

Property Address Property City Section Township Range
2211 11TH ST GREELEY 07 05 65




Account Parcel Account Type Tax Year Buildings Actual Value Local Govt Assessed Value School Assessed Value
R3087686 096107203009 Residential 2026 1 353,647 22,100 24,930

Account Owner Name Address
R3087686 2211 11TH ST TRUST 155 BOARDWALK DR # 545 FORT COLLINS, CO 805253040


Account Parcel Account Type Tax Year Buildings Actual Value Local Govt Assessed Value School Assessed Value
R3087686 096107203009 Residential 2026 1 353,647 22,100 24,930

Reception Rec Date Type Grantor Grantee Doc Fee Sale Date Sale Price
4182225 02-19-2016 AFFDE GERK JANE M; GERK LAWRENCE E GERK JANE M 0.00 02-19-2016 0
4182226 02-19-2016 DTHC GERK LAWRENCE E GERK LAWRENCE E 0.00 01-21-2013 0
4182228 02-19-2016 PRDE GERK JANE M MOORE JEREMY E 18.99 02-19-2016 189,900
4506879 07-19-2019 WD MOORE JEREMY E MCDANIEL IAN M; BALDWIN HEATHER B 28.50 07-17-2019 285,000
5069624 12-01-2025 WDN MCDANIEL IAN M; BALDWIN HEATHER B 2211 11TH ST TRUST 0.00 05-20-2025 0
973726 NA SUB SUBDIVISION DAVIS ADD 0.00 NA 0



Account Parcel Account Type Tax Year Buildings Actual Value Local Govt Assessed Value School Assessed Value
R3087686 096107203009 Residential 2026 1 353,647 22,100 24,930

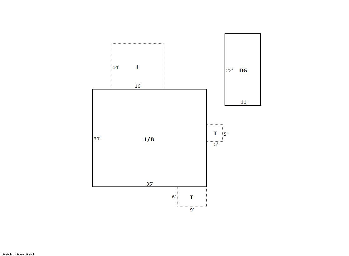
Building 1

AccountNo Building ID Occupancy
R3087686 1 Single Family Residential


ID Type NBHD Occupancy % Complete Bedrooms Baths
1 Residential 6G1034 Single Family Residential 100 5 2.00


ID Exterior Roof Cover Interior HVAC Perimeter Units Unit Type Make
1 Frame Hardboard Composition Shingle Plaster Central Air to Air 130 0 NA NA


ID Square Ft Condo SF Total Basement SF Finished Basement SF Garage SF Carport SF Balcony SF Porch SF
1 1,050 0 1,050 1,050 242 0 0 303


Built As Details for Building 1
ID Built As Square Ft Year Built Stories Length Width
1.00 Ranch 1 Story 1,050 1952 1 0 0


Additional Details for Building 1
ID Detail Type Description Units
1 Basement Finished 1050.00
1 Basement Total Basement SF 1050.00
1 Fixture Full Bath 2.00
1 Garage Detached 242.00
1 Porch Open Slab 303.00





Account Parcel Account Type Tax Year Buildings Actual Value Local Govt Assessed Value School Assessed Value
R3087686 096107203009 Residential 2026 1 353,647 22,100 24,930

Type Code Description Actual Value Local Govt Assessed Value School Assessed Value Acres Land SqFt
Improvement 1212 SINGLE FAMILY RESIDENTIAL IMPROVEMENTS 299,047 18,690 21,080 0.000 0
Land 1112 SINGLE FAMILY RESIDENTIAL-LAND 54,600 3,410 3,850 0.179 7,800
Totals - - 353,647 22,100 24,930 0.179 7,800


Account Parcel Account Type Tax Year Buildings Actual Value Local Govt Assessed Value School Assessed Value
R3087686 096107203009 Residential 2026 1 353,647 22,100 24,930

Tax Area District ID District Name Local Govt
Mill Levy
School
Mill Levy
Estimated
Taxes
0600 0700 AIMS JUNIOR COLLEGE 6.313 0.000 $139.52
0600 0411 GREELEY CITY 11.274 0.000 $249.16
0600 1050 HIGH PLAINS LIBRARY 3.044 0.000 $67.27
0600 0301 NORTHERN COLORADO WATER (NCW) 1.000 0.000 $22.10
0600 0206 SCHOOL DIST 6-GREELEY 0.000 47.615 $1,187.04
0600 0100 WELD COUNTY 15.956 0.000 $352.63
Total - - 37.587 47.615 $2,017.71


The estimate of tax is based on the prior year mill levy and the 2025 projected assessment rates. Mill levies and tax estimates will be updated yearly on December 22nd for the current year. Additional information can be found at https://assessor.weld.gov










Select Reports to Print: