Account: R3103586
April 1, 2026
| Account | Parcel | Account Type | Tax Year | Buildings | Actual Value | Local Govt Assessed Value | School Assessed Value |
|---|---|---|---|---|---|---|---|
| R3103586 | 096107215009 | Residential | 2026 | 1 | 362,034 | 22,630 | 25,530 |
| Legal |
|---|
| GR 2920 L14 BLK5 MAPLEWOOD |
| Subdivision | Block | Lot | Land Economic Area |
|---|---|---|---|
| MAPLEWOOD | 5 | 14 | 16TH ST N, 21ST AVE TO 8TH AVE |
| Property Address | Property City | Section | Township | Range |
|---|---|---|---|---|
| 1809 13TH ST | GREELEY | 07 | 05 | 65 |
| Account | Parcel | Account Type | Tax Year | Buildings | Actual Value | Local Govt Assessed Value | School Assessed Value |
|---|---|---|---|---|---|---|---|
| R3103586 | 096107215009 | Residential | 2026 | 1 | 362,034 | 22,630 | 25,530 |
| Account | Owner Name | Address |
|---|---|---|
| R3103586 | 1809 13TH STREET LLC | 168 PATRICK DR DEFUNIAK SPRINGS, FL 324337680 |
| Account | Parcel | Account Type | Tax Year | Buildings | Actual Value | Local Govt Assessed Value | School Assessed Value |
|---|---|---|---|---|---|---|---|
| R3103586 | 096107215009 | Residential | 2026 | 1 | 362,034 | 22,630 | 25,530 |
| Reception | Rec Date | Type | Grantor | Grantee | Doc Fee | Sale Date | Sale Price |
|---|---|---|---|---|---|---|---|
| 01643630 | 08-28-1974 | RITL | 0.00 | 01-01-1900 | 0 | ||
| 02156777 | 09-27-1988 | WDN | 0.00 | 09-27-1988 | 0 | ||
| 151629 | NA | SUB | SUBDIVISION | MAPLEWOOD | 0.00 | NA | 0 |
| 2717217 | 08-31-1999 | WD | BORN ROBERT A | DALPRA CORY & | 11.80 | 08-27-1999 | 118,000 |
| 2902753 | 11-21-2001 | WD | DALPRA CORY & SUSEMIHL MICHELLE NKA DALP | GRANT LOIS M | 14.30 | 11-15-2001 | 143,000 |
| 3981900 | 12-04-2013 | WD | GRANT LOIS M | DUNLAP BRANDI RENEA | 14.00 | 12-03-2013 | 140,000 |
| 4295840 | 04-21-2017 | WD | DUNLAP BRANDI RENEA; DUNLAP ROBERT WAYNE | NORTH DAVID G; NORTH AMY E | 22.96 | 04-20-2017 | 229,600 |
| 4738335 | 07-22-2021 | QCN | NORTH AMY E; NORTH DAVID G | 1809 13TH STREET LLC | 0.00 | 06-24-2021 | 0 |
*If the hyperlink for the reception number does not work, try a manual search in the Clerk and Recorder records. Use the Grantor or Grantee in your search.
| Account | Parcel | Account Type | Tax Year | Buildings | Actual Value | Local Govt Assessed Value | School Assessed Value |
|---|---|---|---|---|---|---|---|
| R3103586 | 096107215009 | Residential | 2026 | 1 | 362,034 | 22,630 | 25,530 |
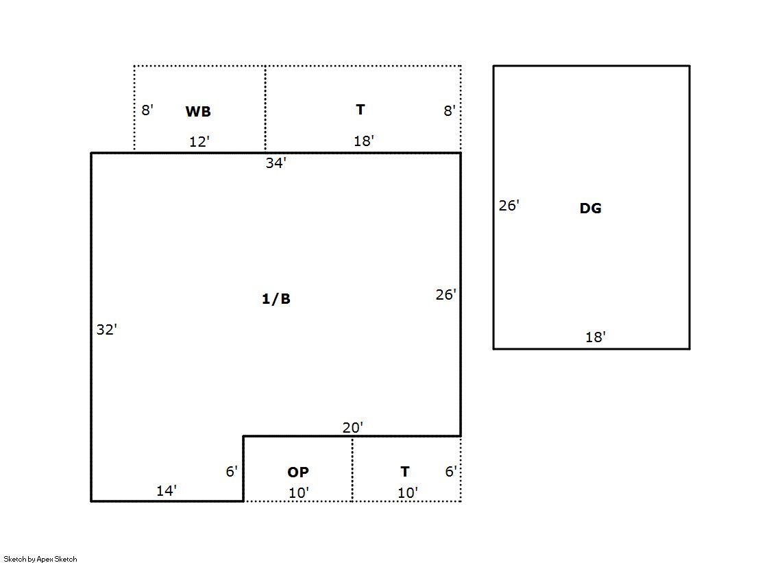
Building 1
| AccountNo | Building ID | Occupancy |
|---|---|---|
| R3103586 | 1 | Single Family Residential |
| ID | Type | NBHD | Occupancy | % Complete | Bedrooms | Baths |
|---|---|---|---|---|---|---|
| 1 | Residential | 6G1034 | Single Family Residential | 100 | 3 | 2.00 |
| ID | Exterior | Roof Cover | Interior | HVAC | Perimeter | Units | Unit Type | Make |
|---|---|---|---|---|---|---|---|---|
| 1 | Frame Hardboard | Composition Shingle | Drywall | Forced Air | 132 | 0 | NA | NA |
| ID | Square Ft | Condo SF | Total Basement SF | Finished Basement SF | Garage SF | Carport SF | Balcony SF | Porch SF |
|---|---|---|---|---|---|---|---|---|
| 1 | 968 | 0 | 968 | 968 | 468 | 0 | 96 | 204 |
| ID | Built As | Square Ft | Year Built | Stories | Length | Width |
|---|---|---|---|---|---|---|
| 1.00 | Ranch 1 Story | 968 | 1949 | 1 | 0 | 0 |
| ID | Detail Type | Description | Units |
|---|---|---|---|
| 1 | Balcony | Wood Wood Fin | 96.00 |
| 1 | Basement | Finished | 968.00 |
| 1 | Basement | Outside Entrance | 1.00 |
| 1 | Basement | Total Basement SF | 968.00 |
| 1 | Fixture | Full Bath | 2.00 |
| 1 | Garage | Detached | 468.00 |
| 1 | Porch | Open Slab | 204.00 |
| 1 | Porch | Slab Roof Ceil | 60.00 |
| Account | Parcel | Account Type | Tax Year | Buildings | Actual Value | Local Govt Assessed Value | School Assessed Value |
|---|---|---|---|---|---|---|---|
| R3103586 | 096107215009 | Residential | 2026 | 1 | 362,034 | 22,630 | 25,530 |
| Type | Code | Description | Actual Value | Local Govt Assessed Value | School Assessed Value | Acres | Land SqFt |
|---|---|---|---|---|---|---|---|
| Improvement | 1212 | SINGLE FAMILY RESIDENTIAL IMPROVEMENTS | 293,434 | 18,340 | 20,690 | 0.000 | 0 |
| Land | 1112 | SINGLE FAMILY RESIDENTIAL-LAND | 68,600 | 4,290 | 4,840 | 0.225 | 9,800 |
| Totals | - | - | 362,034 | 22,630 | 25,530 | 0.225 | 9,800 |
Comparable sales for your Residential or Commercial property may be found using our SALES SEARCH TOOL
Values are updated annually on May 1st for Real Property and June 15th for Personal Property and Oil and Gas.
| Account | Parcel | Account Type | Tax Year | Buildings | Actual Value | Local Govt Assessed Value | School Assessed Value |
|---|---|---|---|---|---|---|---|
| R3103586 | 096107215009 | Residential | 2026 | 1 | 362,034 | 22,630 | 25,530 |
| Tax Area | District ID | District Name | Local Govt Mill Levy |
School Mill Levy |
Estimated Taxes |
|---|---|---|---|---|---|
| 0600 | 0700 | AIMS JUNIOR COLLEGE | 6.313 | 0.000 | $142.86 |
| 0600 | 0411 | GREELEY CITY | 11.274 | 0.000 | $255.13 |
| 0600 | 1050 | HIGH PLAINS LIBRARY | 3.044 | 0.000 | $68.89 |
| 0600 | 0301 | NORTHERN COLORADO WATER (NCW) | 1.000 | 0.000 | $22.63 |
| 0600 | 0206 | SCHOOL DIST 6-GREELEY | 0.000 | 47.615 | $1,215.61 |
| 0600 | 0100 | WELD COUNTY | 15.956 | 0.000 | $361.08 |
| Total | - | - | 37.587 | 47.615 | $2,066.20 |
The estimate of tax is based on the prior year mill levy and the 2025 projected assessment rates. Mill levies and tax estimates will be updated yearly on December 22nd for the current year. Additional information can be found at https://assessor.weld.gov


