Account: R3124386

April 4, 2026

Account Parcel Account Type Tax Year Buildings Actual Value Local Govt Assessed Value School Assessed Value
R3124386 096107303004 Residential 2026 1 434,862 27,180 30,660

Legal
GR 1908 S59' L24 & ALSO N13.65' OF L23 BLK5 FAIRACRES 1ST

Subdivision Block Lot Land Economic Area
FAIRACRES 1ST ADD 5 23 FAIRACRES

Property Address Property City Section Township Range
1722 18TH AVE GREELEY 07 05 65




Account Parcel Account Type Tax Year Buildings Actual Value Local Govt Assessed Value School Assessed Value
R3124386 096107303004 Residential 2026 1 434,862 27,180 30,660

Account Owner Name Address
R3124386 BOLANOS GINGER PHAN 1722 18TH AVE GREELEY, CO 806315134
R3124386 BOLANOS GALETH


Account Parcel Account Type Tax Year Buildings Actual Value Local Govt Assessed Value School Assessed Value
R3124386 096107303004 Residential 2026 1 434,862 27,180 30,660

Reception Rec Date Type Grantor Grantee Doc Fee Sale Date Sale Price
01751104 04-21-1978 WDN 0.00 01-01-1900 0
1034769 NA SUB SUBDIVISION FAIRACRES 1ST ADD 0.00 NA 0
2554162 06-20-1997 QCN LUCERO SALLY J & GREEN EMILY A LUCERO SALLY JO TRUST 1\2 INT & 0.00 06-18-1997 0
2690805 04-30-1999 WD LUCERO SALLY JO TRUST 1\2 INT AYERS RANDY L & KATHLEEN I 13.90 04-29-1999 139,000
2896993 11-01-2001 WD AYERS RANDY L & KATHLEEN I GARDINER BRANDON J & TARA J 14.95 10-26-2001 149,500
3433129 11-07-2006 WD GARDINER BRANDON J & FABIAN RONALD D JR & 18.70 10-27-2006 187,000
4870505 12-05-2022 SWD FABIAN PAMELA J; FABIAN RONALD D JR UNITED COLORADO LLC 28.00 11-25-2022 280,000
4870569 12-06-2022 SWD UNITED COLORADO LLC RECYCLED PROPERTIES LLC 29.70 11-28-2022 297,000
4939601 01-12-2024 WD RECYCLED PROPERTIES LLC BOLANOS GINGER PHAN; BOLANOS GALETH 45.70 01-11-2024 457,000



Account Parcel Account Type Tax Year Buildings Actual Value Local Govt Assessed Value School Assessed Value
R3124386 096107303004 Residential 2026 1 434,862 27,180 30,660

Building 1

AccountNo Building ID Occupancy
R3124386 1 Single Family Residential


ID Type NBHD Occupancy % Complete Bedrooms Baths
1 Residential 6G3030 Single Family Residential 100 5 2.00


ID Exterior Roof Cover Interior HVAC Perimeter Units Unit Type Make
1 Frame Siding Composition Shingle Drywall Central Air to Air 170 0 NA NA


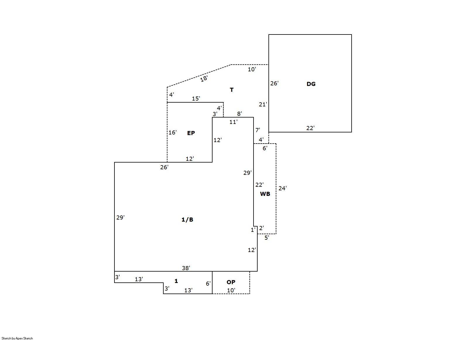
ID Square Ft Condo SF Total Basement SF Finished Basement SF Garage SF Carport SF Balcony SF Porch SF
1 1,334 0 1,217 1,217 572 0 142 295


Built As Details for Building 1
ID Built As Square Ft Year Built Stories Length Width
1.00 Ranch 1 Story 1,334 1953 1 0 0


Additional Details for Building 1
ID Detail Type Description Units
1 Balcony Wood Wood Fin 142.00
1 Basement Finished 1217.00
1 Basement Total Basement SF 1217.00
1 Fixture Bar Sink 1.00
1 Fixture Full Bath 2.00
1 Garage Detached 572.00
1 Porch Encl Solid Wall 204.00
1 Porch Open Slab 295.00
1 Porch Slab Roof Ceil 60.00





Account Parcel Account Type Tax Year Buildings Actual Value Local Govt Assessed Value School Assessed Value
R3124386 096107303004 Residential 2026 1 434,862 27,180 30,660

Type Code Description Actual Value Local Govt Assessed Value School Assessed Value Acres Land SqFt
Improvement 1212 SINGLE FAMILY RESIDENTIAL IMPROVEMENTS 381,582 23,850 26,900 0.000 0
Land 1112 SINGLE FAMILY RESIDENTIAL-LAND 53,280 3,330 3,760 0.204 8,880
Totals - - 434,862 27,180 30,660 0.204 8,880


Account Parcel Account Type Tax Year Buildings Actual Value Local Govt Assessed Value School Assessed Value
R3124386 096107303004 Residential 2026 1 434,862 27,180 30,660

Tax Area District ID District Name Local Govt
Mill Levy
School
Mill Levy
Estimated
Taxes
0600 0700 AIMS JUNIOR COLLEGE 6.313 0.000 $171.59
0600 0411 GREELEY CITY 11.274 0.000 $306.43
0600 1050 HIGH PLAINS LIBRARY 3.044 0.000 $82.74
0600 0301 NORTHERN COLORADO WATER (NCW) 1.000 0.000 $27.18
0600 0206 SCHOOL DIST 6-GREELEY 0.000 47.615 $1,459.88
0600 0100 WELD COUNTY 15.956 0.000 $433.68
Total - - 37.587 47.615 $2,481.49


The estimate of tax is based on the prior year mill levy and the 2025 projected assessment rates. Mill levies and tax estimates will be updated yearly on December 22nd for the current year. Additional information can be found at https://assessor.weld.gov










Select Reports to Print: