Account: R3237504
April 4, 2026
| Account | Parcel | Account Type | Tax Year | Buildings | Actual Value | Local Govt Assessed Value | School Assessed Value |
|---|---|---|---|---|---|---|---|
| R3237504 | 146733253004 | Residential | 2026 | 1 | 650,982 | 40,680 | 45,890 |
| Legal |
|---|
| ERI 1VVR L4 BLK1 VISTA RIDGE FILING 1V |
| Subdivision | Block | Lot | Land Economic Area |
|---|---|---|---|
| VISTA RIDGE FG#1V | 1 | 4 | VISTA RIDGE |
| Property Address | Property City | Section | Township | Range |
|---|---|---|---|---|
| 2048 TUNDRA CIR | ERIE | 33 | 01 | 68 |
| Account | Parcel | Account Type | Tax Year | Buildings | Actual Value | Local Govt Assessed Value | School Assessed Value |
|---|---|---|---|---|---|---|---|
| R3237504 | 146733253004 | Residential | 2026 | 1 | 650,982 | 40,680 | 45,890 |
| Account | Owner Name | Address |
|---|---|---|
| R3237504 | ABOTE STEVEN JAMES | 2048 TUNDRA CIR ERIE, CO 805164041 |
| R3237504 | ABOTE STEPHANIE NICOLE |
| Account | Parcel | Account Type | Tax Year | Buildings | Actual Value | Local Govt Assessed Value | School Assessed Value |
|---|---|---|---|---|---|---|---|
| R3237504 | 146733253004 | Residential | 2026 | 1 | 650,982 | 40,680 | 45,890 |
| Reception | Rec Date | Type | Grantor | Grantee | Doc Fee | Sale Date | Sale Price |
|---|---|---|---|---|---|---|---|
| 3210333 | NA | SUB | SUBDIVISION | VISTA RIDGE FG #1V | 0.00 | NA | 0 |
| 3456213 | 02-20-2007 | WD | KDB HOMES INC | CLIFFORD ROBERT W | 26.44 | 02-16-2007 | 264,400 |
| 3536552 | 02-21-2008 | QCN | CLIFFORD ROBERT W | CLIFFORD ROBERT W & | 0.00 | 02-19-2008 | 0 |
| 4092117 | 03-23-2015 | QCN | CLIFFORD ROBERT W | HOCKSTRA DONNA M | 0.00 | 02-25-2015 | 0 |
| 4151503 | 10-20-2015 | WD | HOCKSTRA JERRY R; HOCKSTRA DONNA M | ABOTE STEVEN JAMES; ABOTE STEPHANIE NICOLE | 37.80 | 10-16-2015 | 378,000 |
*If the hyperlink for the reception number does not work, try a manual search in the Clerk and Recorder records. Use the Grantor or Grantee in your search.
| Account | Parcel | Account Type | Tax Year | Buildings | Actual Value | Local Govt Assessed Value | School Assessed Value |
|---|---|---|---|---|---|---|---|
| R3237504 | 146733253004 | Residential | 2026 | 1 | 650,982 | 40,680 | 45,890 |
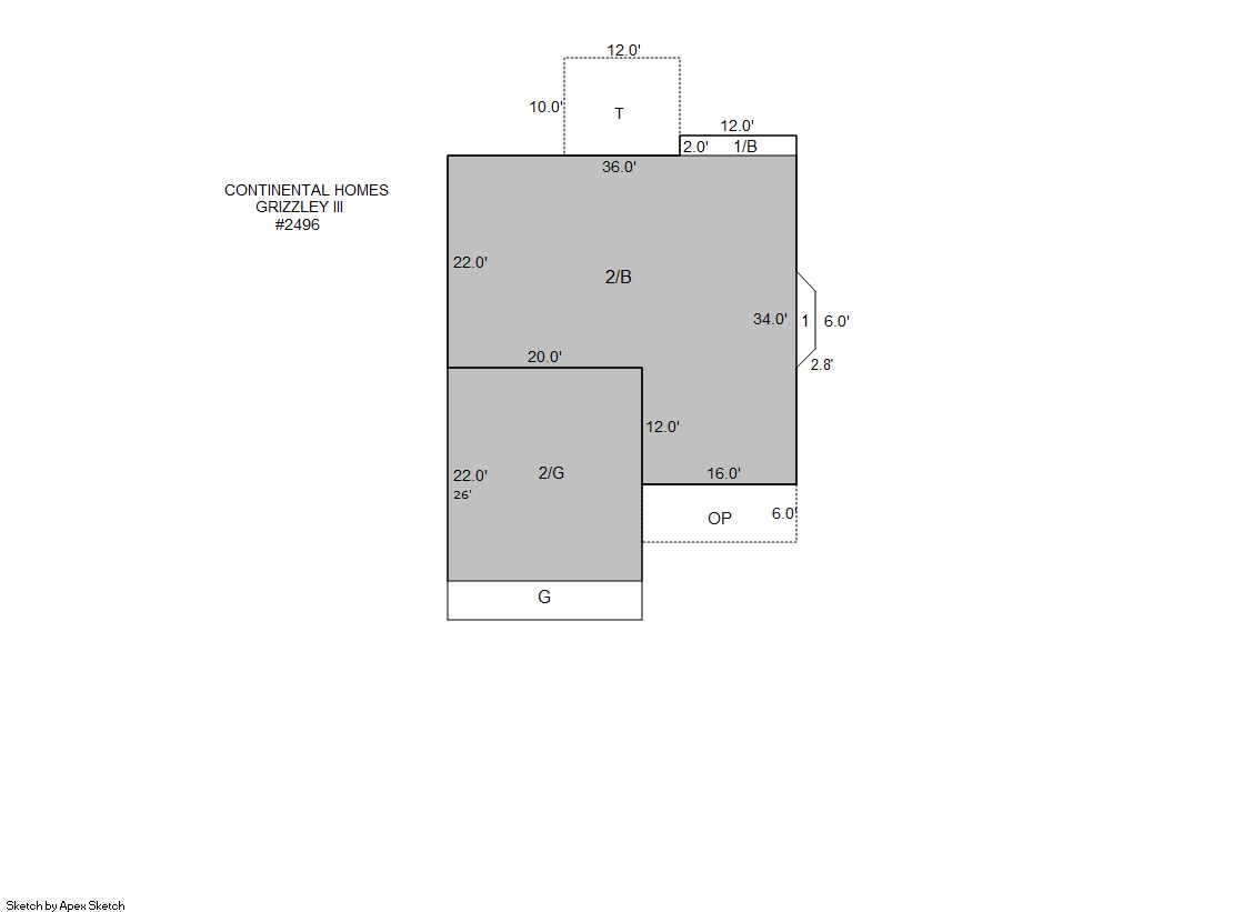
Building 1
| AccountNo | Building ID | Occupancy |
|---|---|---|
| R3237504 | 1 | Single Family Residential |
| ID | Type | NBHD | Occupancy | % Complete | Bedrooms | Baths |
|---|---|---|---|---|---|---|
| 1 | Residential | 3E3013 | Single Family Residential | 100 | 4 | 3.00 |
| ID | Exterior | Roof Cover | Interior | HVAC | Perimeter | Units | Unit Type | Make |
|---|---|---|---|---|---|---|---|---|
| 1 | Frame Hardboard | Composition Shingle | Drywall | Central Air to Air | 0 | 0 | NA | NA |
| ID | Square Ft | Condo SF | Total Basement SF | Finished Basement SF | Garage SF | Carport SF | Balcony SF | Porch SF |
|---|---|---|---|---|---|---|---|---|
| 1 | 2,448 | 0 | 1,008 | 0 | 520 | 0 | 0 | 120 |
| ID | Built As | Square Ft | Year Built | Stories | Length | Width |
|---|---|---|---|---|---|---|
| 1.00 | 2 Story | 2,448 | 2006 | 2 | 0 | 0 |
| ID | Detail Type | Description | Units |
|---|---|---|---|
| 1 | Add On | Fireplace Gas | 1.00 |
| 1 | Basement | Total Basement SF | 1008.00 |
| 1 | Fixture | Full Bath | 2.00 |
| 1 | Fixture | Half Bath | 1.00 |
| 1 | Garage | Attached | 520.00 |
| 1 | Porch | Open Slab | 120.00 |
| 1 | Porch | Slab Roof Ceil | 96.00 |
| 1 | Rough In | Rough In | 1.00 |
| Account | Parcel | Account Type | Tax Year | Buildings | Actual Value | Local Govt Assessed Value | School Assessed Value |
|---|---|---|---|---|---|---|---|
| R3237504 | 146733253004 | Residential | 2026 | 1 | 650,982 | 40,680 | 45,890 |
| Type | Code | Description | Actual Value | Local Govt Assessed Value | School Assessed Value | Acres | Land SqFt |
|---|---|---|---|---|---|---|---|
| Improvement | 1212 | SINGLE FAMILY RESIDENTIAL IMPROVEMENTS | 505,982 | 31,620 | 35,670 | 0.000 | 0 |
| Land | 1112 | SINGLE FAMILY RESIDENTIAL-LAND | 145,000 | 9,060 | 10,220 | 0.121 | 5,250 |
| Totals | - | - | 650,982 | 40,680 | 45,890 | 0.121 | 5,250 |
Comparable sales for your Residential or Commercial property may be found using our SALES SEARCH TOOL
Values are updated annually on May 1st for Real Property and June 15th for Personal Property and Oil and Gas.
| Account | Parcel | Account Type | Tax Year | Buildings | Actual Value | Local Govt Assessed Value | School Assessed Value |
|---|---|---|---|---|---|---|---|
| R3237504 | 146733253004 | Residential | 2026 | 1 | 650,982 | 40,680 | 45,890 |
| Tax Area | District ID | District Name | Local Govt Mill Levy |
School Mill Levy |
Estimated Taxes |
|---|---|---|---|---|---|
| 3520 | 0404 | ERIE TOWN | 13.237 | 0.000 | $538.48 |
| 3520 | 1050 | HIGH PLAINS LIBRARY | 3.044 | 0.000 | $123.83 |
| 3520 | 0512 | MOUNTAIN VIEW FIRE PROTECTION DISTRICT | 16.342 | 0.000 | $664.79 |
| 3520 | 0301 | NORTHERN COLORADO WATER (NCW) | 1.000 | 0.000 | $40.68 |
| 3520 | 1360 | RTD | 0.000 | 0.000 | $0.00 |
| 3520 | 0213 | SCHOOL DIST RE1J-LONGMONT | 0.000 | 57.717 | $2,648.63 |
| 3520 | 1315 | VISTA RIDGE METRO DISTRICT | 47.000 | 0.000 | $1,911.96 |
| 3520 | 0100 | WELD COUNTY | 15.956 | 0.000 | $649.09 |
| Total | - | - | 96.579 | 57.717 | $6,577.47 |
The estimate of tax is based on the prior year mill levy and the 2025 projected assessment rates. Mill levies and tax estimates will be updated yearly on December 22nd for the current year. Additional information can be found at https://assessor.weld.gov



