Account: R3272486
April 1, 2026
| Account | Parcel | Account Type | Tax Year | Buildings | Actual Value | Local Govt Assessed Value | School Assessed Value |
|---|---|---|---|---|---|---|---|
| R3272486 | 096108227023 | Residential | 2026 | 1 | 290,678 | 18,170 | 20,490 |
| Legal |
|---|
| GR 3238 L11 EXC N80' BLK163 PATTON & BIGGERS |
| Subdivision | Block | Lot | Land Economic Area |
|---|---|---|---|
| PATTON BIGGAR'S SUB | 163 | 11 | 16TH ST N, 21ST AVE TO 8TH AVE |
| Property Address | Property City | Section | Township | Range |
|---|---|---|---|---|
| 1531 9TH AVE | GREELEY | 08 | 05 | 65 |
| Account | Parcel | Account Type | Tax Year | Buildings | Actual Value | Local Govt Assessed Value | School Assessed Value |
|---|---|---|---|---|---|---|---|
| R3272486 | 096108227023 | Residential | 2026 | 1 | 290,678 | 18,170 | 20,490 |
| Account | Owner Name | Address |
|---|---|---|
| R3272486 | ABEYTA ERNEST C | 1531 9TH AVE GREELEY, CO 806314610 |
| R3272486 | ABEYTA CHRISTINA |
| Account | Parcel | Account Type | Tax Year | Buildings | Actual Value | Local Govt Assessed Value | School Assessed Value |
|---|---|---|---|---|---|---|---|
| R3272486 | 096108227023 | Residential | 2026 | 1 | 290,678 | 18,170 | 20,490 |
| Reception | Rec Date | Type | Grantor | Grantee | Doc Fee | Sale Date | Sale Price |
|---|---|---|---|---|---|---|---|
| 01996454 | 01-25-1985 | WDN | 0.00 | 01-01-1900 | 0 | ||
| 2366941 | 12-30-1993 | WD | BRYAN MARK T & CANDACE C | MCHATTIE BRENT W & SARA E | 6.50 | 12-30-1993 | 65,000 |
| 3882714 | 10-22-2012 | WDE | MCHATTIE BRENT W | KOVARI PAIGE | 12.49 | 10-19-2012 | 124,900 |
| 4313481 | 06-27-2017 | WD | KOVARI PAIGE; KOVARI CSABA | NIXON CHAD | 23.80 | 06-23-2017 | 238,000 |
| 4371689 | 01-30-2018 | QCN | NIXON CHAD | 1531 NXN LLC | 0.00 | 01-30-2018 | 0 |
| 4479578 | 04-08-2019 | WD | 1531 NXN LLC | ABEYTA ERNEST C; ABEYTA CHRISTINA | 25.00 | 03-28-2019 | 250,000 |
| 47353 | NA | SUB | SUBDIVISION | PATTON & BIGGARS | 0.00 | NA | 0 |
| X0008508 | 01-25-1985 | CON | BRYAN MARK T & CANDACE C | 4.35 | 01-25-1985 | 43,500 |
*If the hyperlink for the reception number does not work, try a manual search in the Clerk and Recorder records. Use the Grantor or Grantee in your search.
| Account | Parcel | Account Type | Tax Year | Buildings | Actual Value | Local Govt Assessed Value | School Assessed Value |
|---|---|---|---|---|---|---|---|
| R3272486 | 096108227023 | Residential | 2026 | 1 | 290,678 | 18,170 | 20,490 |
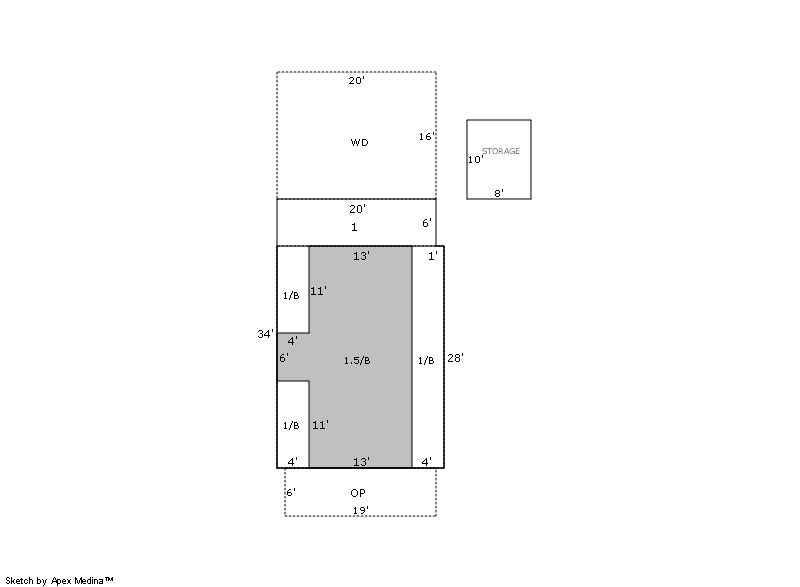
Building 1
| AccountNo | Building ID | Occupancy |
|---|---|---|
| R3272486 | 1 | Single Family Residential |
| ID | Type | NBHD | Occupancy | % Complete | Bedrooms | Baths |
|---|---|---|---|---|---|---|
| 1 | Residential | 6G1033 | Single Family Residential | 100 | 4 | 2.00 |
| ID | Exterior | Roof Cover | Interior | HVAC | Perimeter | Units | Unit Type | Make |
|---|---|---|---|---|---|---|---|---|
| 1 | Frame Siding | Composition Shingle | Drywall | Forced Air | 0 | 0 | NA | NA |
| ID | Square Ft | Condo SF | Total Basement SF | Finished Basement SF | Garage SF | Carport SF | Balcony SF | Porch SF |
|---|---|---|---|---|---|---|---|---|
| 1 | 1,096 | 0 | 588 | 588 | 0 | 0 | 0 | 320 |
| ID | Built As | Square Ft | Year Built | Stories | Length | Width |
|---|---|---|---|---|---|---|
| 1.00 | 1 1/2 Story Fin | 1,096 | 1903 | 2 | 0 | 0 |
| ID | Detail Type | Description | Units |
|---|---|---|---|
| 1 | Add On | Fireplace Wood | 1.00 |
| 1 | Basement | Finished | 588.00 |
| 1 | Basement | Total Basement SF | 588.00 |
| 1 | Fixture | Full Bath | 2.00 |
| 1 | Porch | Slab Roof Ceil | 114.00 |
| 1 | Porch | Wood Deck | 320.00 |
| 1 | Storage | Wood | 80.00 |
| Account | Parcel | Account Type | Tax Year | Buildings | Actual Value | Local Govt Assessed Value | School Assessed Value |
|---|---|---|---|---|---|---|---|
| R3272486 | 096108227023 | Residential | 2026 | 1 | 290,678 | 18,170 | 20,490 |
| Type | Code | Description | Actual Value | Local Govt Assessed Value | School Assessed Value | Acres | Land SqFt |
|---|---|---|---|---|---|---|---|
| Improvement | 1212 | SINGLE FAMILY RESIDENTIAL IMPROVEMENTS | 280,178 | 17,510 | 19,750 | 0.000 | 0 |
| Land | 1112 | SINGLE FAMILY RESIDENTIAL-LAND | 10,500 | 660 | 740 | 0.034 | 1,500 |
| Totals | - | - | 290,678 | 18,170 | 20,490 | 0.034 | 1,500 |
Comparable sales for your Residential or Commercial property may be found using our SALES SEARCH TOOL
Values are updated annually on May 1st for Real Property and June 15th for Personal Property and Oil and Gas.
| Account | Parcel | Account Type | Tax Year | Buildings | Actual Value | Local Govt Assessed Value | School Assessed Value |
|---|---|---|---|---|---|---|---|
| R3272486 | 096108227023 | Residential | 2026 | 1 | 290,678 | 18,170 | 20,490 |
| Tax Area | District ID | District Name | Local Govt Mill Levy |
School Mill Levy |
Estimated Taxes |
|---|---|---|---|---|---|
| 2689 | 0700 | AIMS JUNIOR COLLEGE | 6.313 | 0.000 | $114.71 |
| 2689 | 0411 | GREELEY CITY | 11.274 | 0.000 | $204.85 |
| 2689 | 0802 | GREELEY DOWNTOWN DEVELOPMENT AUTHORITY | 5.000 | 0.000 | $90.85 |
| 2689 | 1050 | HIGH PLAINS LIBRARY | 3.044 | 0.000 | $55.31 |
| 2689 | 0301 | NORTHERN COLORADO WATER (NCW) | 1.000 | 0.000 | $18.17 |
| 2689 | 0206 | SCHOOL DIST 6-GREELEY | 0.000 | 47.615 | $975.63 |
| 2689 | 0100 | WELD COUNTY | 15.956 | 0.000 | $289.92 |
| Total | - | - | 42.587 | 47.615 | $1,749.44 |
The estimate of tax is based on the prior year mill levy and the 2025 projected assessment rates. Mill levies and tax estimates will be updated yearly on December 22nd for the current year. Additional information can be found at https://assessor.weld.gov



