Account: R3281886
April 5, 2026
| Account | Parcel | Account Type | Tax Year | Buildings | Actual Value | Local Govt Assessed Value | School Assessed Value |
|---|---|---|---|---|---|---|---|
| R3281886 | 096108303006 | Residential | 2026 | 1 | 1,201,200 | 75,080 | 84,680 |
| Legal |
|---|
| GR 3359 W10' L28 & ALL L29 TO 32 EXC S63' THEREOF NORMAL PL(REGENT APT) |
| Subdivision | Block | Lot | Land Economic Area |
|---|---|---|---|
| NORMAL PLACE | 28 | ARLINGTON |
| Property Address | Property City | Section | Township | Range |
|---|---|---|---|---|
| 1632 9TH AVE | GREELEY | 08 | 05 | 65 |
| Account | Parcel | Account Type | Tax Year | Buildings | Actual Value | Local Govt Assessed Value | School Assessed Value |
|---|---|---|---|---|---|---|---|
| R3281886 | 096108303006 | Residential | 2026 | 1 | 1,201,200 | 75,080 | 84,680 |
| Account | Owner Name | Address |
|---|---|---|
| R3281886 | BLUE OAK PROPERTIES LLC | 3400 W 16TH ST BLDG 1 SUITE B GREELEY, CO 806346862 |
| Account | Parcel | Account Type | Tax Year | Buildings | Actual Value | Local Govt Assessed Value | School Assessed Value |
|---|---|---|---|---|---|---|---|
| R3281886 | 096108303006 | Residential | 2026 | 1 | 1,201,200 | 75,080 | 84,680 |
| Reception | Rec Date | Type | Grantor | Grantee | Doc Fee | Sale Date | Sale Price |
|---|---|---|---|---|---|---|---|
| 3213587 | 08-30-2004 | WD | FRISTROM ELMER L | THOMPSON RONALD G (25% INT) & | 47.50 | 08-27-2004 | 475,000 |
| 3242088 | 12-07-2004 | QCN | THOMPSON RONALD G (25% INT) & | REGENT APARTMENT/GREELEY LLC | 0.00 | 12-06-2004 | 0 |
| 4311848 | 06-20-2017 | QCN | REGENT APARTMENT/GREELEY LLC | THOMPSON RONALD G; THOMPSON LINDE J; MONTOYA PRESLANO | 0.00 | 06-20-2017 | 0 |
| 4315097 | 07-05-2017 | WD | MONTOYA PRESLANO; THOMPSON RONALD G; THOMPSON LINDE J | THOMPSON RONALD G; THOMPSON LINDE J | 37.90 | 06-29-2017 | 379,000 |
| 4315098 | 07-05-2017 | QCN | THOMPSON RONALD G; THOMPSON LINDE J | REGENT APARTMENTS GREELEY LLC | 0.00 | 06-29-2017 | 0 |
| 4616448 | 08-05-2020 | SWD | REGENT APARTMENTS GREELEY LLC | BLUE OAK PROPERTIES LLC | 110.00 | 08-03-2020 | 1,100,000 |
| 76129 | NA | SUB | SUBDIVISION | NORMAL PLACE | 0.00 | NA | 0 |
*If the hyperlink for the reception number does not work, try a manual search in the Clerk and Recorder records. Use the Grantor or Grantee in your search.
| Account | Parcel | Account Type | Tax Year | Buildings | Actual Value | Local Govt Assessed Value | School Assessed Value |
|---|---|---|---|---|---|---|---|
| R3281886 | 096108303006 | Residential | 2026 | 1 | 1,201,200 | 75,080 | 84,680 |
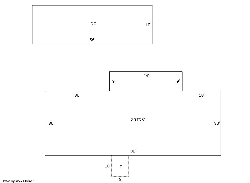
Building 1
| AccountNo | Building ID | Occupancy |
|---|---|---|
| R3281886 | 1 | Apartment w/4-8 Units |
| ID | Type | NBHD | Occupancy | % Complete | Bedrooms | Baths |
|---|---|---|---|---|---|---|
| 1 | Multiple Unit | 6G4045 | Apartment w/4-8 Units | 100 | 14 | 7.00 |
| ID | Exterior | Roof Cover | Interior | HVAC | Perimeter | Units | Unit Type | Make |
|---|---|---|---|---|---|---|---|---|
| 1 | Frame Stucco | Built Up Rock | Drywall | Hot Water Baseboard | 0 | 7 | NA | NA |
| ID | Square Ft | Condo SF | Total Basement SF | Finished Basement SF | Garage SF | Carport SF | Balcony SF | Porch SF |
|---|---|---|---|---|---|---|---|---|
| 1 | 8,298 | 0 | 0 | 0 | 1,008 | 0 | 0 | 80 |
| ID | Built As | Square Ft | Year Built | Stories | Length | Width |
|---|---|---|---|---|---|---|
| 1.00 | Apartment <= 3 Stories | 8,298 | 1924 | 3 | 0 | 0 |
| ID | Detail Type | Description | Units |
|---|---|---|---|
| 1 | Add On | Concrete Slab | 1760.00 |
| 1 | Fixture | Full Bath | 7.00 |
| 1 | Garage | Detached | 1008.00 |
| 1 | Porch | Slab w/Steps | 80.00 |
| 1 | Stairway | Stair Wood Exterior Fin | 3.00 |
| Account | Parcel | Account Type | Tax Year | Buildings | Actual Value | Local Govt Assessed Value | School Assessed Value |
|---|---|---|---|---|---|---|---|
| R3281886 | 096108303006 | Residential | 2026 | 1 | 1,201,200 | 75,080 | 84,680 |
| Type | Code | Description | Actual Value | Local Govt Assessed Value | School Assessed Value | Acres | Land SqFt |
|---|---|---|---|---|---|---|---|
| Improvement | 1220 | MULTI-UNITS(4-8)-IMPRVMTS | 1,123,980 | 70,250 | 79,240 | 0.000 | 0 |
| Land | 1120 | MULTI-UNITS(4-8)-LAND | 77,220 | 4,830 | 5,440 | 0.296 | 12,870 |
| Totals | - | - | 1,201,200 | 75,080 | 84,680 | 0.296 | 12,870 |
Comparable sales for your Residential or Commercial property may be found using our SALES SEARCH TOOL
Values are updated annually on May 1st for Real Property and June 15th for Personal Property and Oil and Gas.
| Account | Parcel | Account Type | Tax Year | Buildings | Actual Value | Local Govt Assessed Value | School Assessed Value |
|---|---|---|---|---|---|---|---|
| R3281886 | 096108303006 | Residential | 2026 | 1 | 1,201,200 | 75,080 | 84,680 |
| Tax Area | District ID | District Name | Local Govt Mill Levy |
School Mill Levy |
Estimated Taxes |
|---|---|---|---|---|---|
| 2689 | 0700 | AIMS JUNIOR COLLEGE | 6.313 | 0.000 | $473.98 |
| 2689 | 0411 | GREELEY CITY | 11.274 | 0.000 | $846.45 |
| 2689 | 0802 | GREELEY DOWNTOWN DEVELOPMENT AUTHORITY | 5.000 | 0.000 | $375.40 |
| 2689 | 1050 | HIGH PLAINS LIBRARY | 3.044 | 0.000 | $228.54 |
| 2689 | 0301 | NORTHERN COLORADO WATER (NCW) | 1.000 | 0.000 | $75.08 |
| 2689 | 0206 | SCHOOL DIST 6-GREELEY | 0.000 | 47.615 | $4,032.04 |
| 2689 | 0100 | WELD COUNTY | 15.956 | 0.000 | $1,197.98 |
| Total | - | - | 42.587 | 47.615 | $7,229.47 |
The estimate of tax is based on the prior year mill levy and the 2025 projected assessment rates. Mill levies and tax estimates will be updated yearly on December 22nd for the current year. Additional information can be found at https://assessor.weld.gov




