Account: R3283804
April 1, 2026
| Account | Parcel | Account Type | Tax Year | Buildings | Actual Value | Local Govt Assessed Value | School Assessed Value |
|---|---|---|---|---|---|---|---|
| R3283804 | 080702229012 | Residential | 2026 | 1 | 436,873 | 27,310 | 30,800 |
| Legal |
|---|
| SEV 3SV L 12 BLK 1 SUMMIT VIEW 3 FG |
| Subdivision | Block | Lot | Land Economic Area |
|---|---|---|---|
| SUMMIT VIEW SUB 3RD FG | 1 | 12 | SUMMIT VIEW |
| Property Address | Property City | Section | Township | Range |
|---|---|---|---|---|
| 89 ARAPAHO ST | SEVERANCE | 02 | 06 | 67 |
| Account | Parcel | Account Type | Tax Year | Buildings | Actual Value | Local Govt Assessed Value | School Assessed Value |
|---|---|---|---|---|---|---|---|
| R3283804 | 080702229012 | Residential | 2026 | 1 | 436,873 | 27,310 | 30,800 |
| Account | Owner Name | Address |
|---|---|---|
| R3283804 | GARZA MIGUEL | 89 ARAPAHO ST SEVERANCE, CO 805502659 |
| R3283804 | GARZA DALANA STARR |
| Account | Parcel | Account Type | Tax Year | Buildings | Actual Value | Local Govt Assessed Value | School Assessed Value |
|---|---|---|---|---|---|---|---|
| R3283804 | 080702229012 | Residential | 2026 | 1 | 436,873 | 27,310 | 30,800 |
| Reception | Rec Date | Type | Grantor | Grantee | Doc Fee | Sale Date | Sale Price |
|---|---|---|---|---|---|---|---|
| 3224619 | NA | SUB | SUBDIVISION | SUMMIT VIEW 3RD FG | 0.00 | NA | 0 |
| 3251735 | 01-11-2005 | SWD | SUMMIT VIEW DEVELOPMENT LLC | JOURNEY HOMES LLC | 166.50 | 01-07-2005 | 1,665,000 |
| 3335302 | 10-28-2005 | WD | JOURNEY HOMES LLC | WINTER BOWEN J | 19.68 | 10-26-2005 | 196,800 |
| 3928876 | 05-01-2013 | WD | WINTER BOWEN J | PEARSON MATTHEW T | 22.45 | 04-16-2013 | 224,500 |
| 4196068 | 04-18-2016 | WD | PEARSON MATTHEW T; EHRENBERGER EMILY L | CHERRY KEVIN L; CHERRY LORNA J | 30.00 | 04-14-2016 | 300,000 |
| 4738818 | 07-23-2021 | WDN | CHERRY KEVIN L; CHERRY LORNA J | CHERRY KEVIN L FAMILY TRUST; CHERRY LORNA J FAMILY TRUST | 0.00 | 07-23-2021 | 0 |
| 4778789 | 11-23-2021 | WD | CHERRY KEVIN L FAMILY TRUST; CHERRY LORNA J FAMILY TRUST | CISCO JACQUELINE L | 44.00 | 11-19-2021 | 440,000 |
| 5033489 | 06-04-2025 | WD | CISCO JACQUELINE L | GARZA MIGUEL; GARZA DALANA STARR | 47.50 | 05-30-2025 | 475,000 |
*If the hyperlink for the reception number does not work, try a manual search in the Clerk and Recorder records. Use the Grantor or Grantee in your search.
| Account | Parcel | Account Type | Tax Year | Buildings | Actual Value | Local Govt Assessed Value | School Assessed Value |
|---|---|---|---|---|---|---|---|
| R3283804 | 080702229012 | Residential | 2026 | 1 | 436,873 | 27,310 | 30,800 |
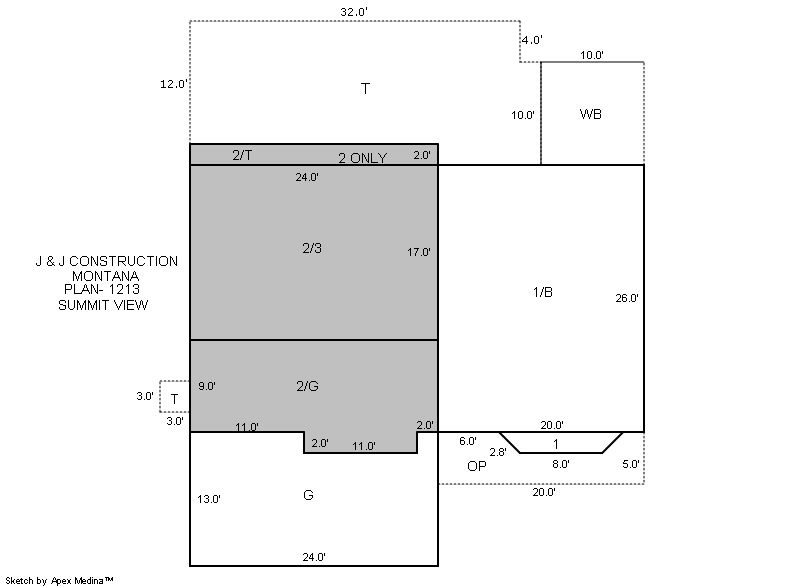
Building 1
| AccountNo | Building ID | Occupancy |
|---|---|---|
| R3283804 | 1 | Single Family Residential |
| ID | Type | NBHD | Occupancy | % Complete | Bedrooms | Baths |
|---|---|---|---|---|---|---|
| 1 | Residential | 2S3051 | Single Family Residential | 100 | 3 | 3.00 |
| ID | Exterior | Roof Cover | Interior | HVAC | Perimeter | Units | Unit Type | Make |
|---|---|---|---|---|---|---|---|---|
| 1 | Frame Siding | Composition Shingle | Drywall | Central Air to Air | 0 | 0 | NA | NA |
| ID | Square Ft | Condo SF | Total Basement SF | Finished Basement SF | Garage SF | Carport SF | Balcony SF | Porch SF |
|---|---|---|---|---|---|---|---|---|
| 1 | 1,642 | 0 | 520 | 520 | 528 | 0 | 100 | 80 |
| ID | Built As | Square Ft | Year Built | Stories | Length | Width |
|---|---|---|---|---|---|---|
| 1.00 | Split Level | 1,642 | 2005 | 1 | 0 | 0 |
| ID | Detail Type | Description | Units |
|---|---|---|---|
| 1 | Balcony | Wood Wood Fin | 100.00 |
| 1 | Basement | Finished | 520.00 |
| 1 | Basement | Total Basement SF | 520.00 |
| 1 | Fixture | Full Bath | 2.00 |
| 1 | Fixture | Half Bath | 1.00 |
| 1 | Garage | Attached | 528.00 |
| 1 | Porch | Open Slab | 477.00 |
| 1 | Porch | Slab Roof Ceil | 80.00 |
| Account | Parcel | Account Type | Tax Year | Buildings | Actual Value | Local Govt Assessed Value | School Assessed Value |
|---|---|---|---|---|---|---|---|
| R3283804 | 080702229012 | Residential | 2026 | 1 | 436,873 | 27,310 | 30,800 |
| Type | Code | Description | Actual Value | Local Govt Assessed Value | School Assessed Value | Acres | Land SqFt |
|---|---|---|---|---|---|---|---|
| Improvement | 1212 | SINGLE FAMILY RESIDENTIAL IMPROVEMENTS | 350,873 | 21,930 | 24,740 | 0.000 | 0 |
| Land | 1112 | SINGLE FAMILY RESIDENTIAL-LAND | 86,000 | 5,380 | 6,060 | 0.188 | 8,191 |
| Totals | - | - | 436,873 | 27,310 | 30,800 | 0.188 | 8,191 |
Comparable sales for your Residential or Commercial property may be found using our SALES SEARCH TOOL
Values are updated annually on May 1st for Real Property and June 15th for Personal Property and Oil and Gas.
| Account | Parcel | Account Type | Tax Year | Buildings | Actual Value | Local Govt Assessed Value | School Assessed Value |
|---|---|---|---|---|---|---|---|
| R3283804 | 080702229012 | Residential | 2026 | 1 | 436,873 | 27,310 | 30,800 |
| Tax Area | District ID | District Name | Local Govt Mill Levy |
School Mill Levy |
Estimated Taxes |
|---|---|---|---|---|---|
| 0434 | 0700 | AIMS JUNIOR COLLEGE | 6.313 | 0.000 | $172.41 |
| 0434 | 1051 | CLEARVIEW LIBRARY | 3.546 | 0.000 | $96.84 |
| 0434 | 0304 | NORTH WELD COUNTY WATER (NWC) | 0.000 | 0.000 | $0.00 |
| 0434 | 0301 | NORTHERN COLORADO WATER (NCW) | 1.000 | 0.000 | $27.31 |
| 0434 | 0204 | SCHOOL DIST RE4-WINDSOR | 0.000 | 46.646 | $1,436.70 |
| 0434 | 0427 | SEVERANCE TOWN | 12.635 | 0.000 | $345.06 |
| 0434 | 0100 | WELD COUNTY | 15.956 | 0.000 | $435.76 |
| 0434 | 1200 | WEST GREELEY CONSERVATION | 0.414 | 0.000 | $11.31 |
| 0434 | 0521 | WINDSOR-SEVERANCE FIRE | 8.535 | 0.000 | $233.09 |
| Total | - | - | 48.399 | 46.646 | $2,758.47 |
The estimate of tax is based on the prior year mill levy and the 2025 projected assessment rates. Mill levies and tax estimates will be updated yearly on December 22nd for the current year. Additional information can be found at https://assessor.weld.gov



