Account: R3305505
April 5, 2026
| Account | Parcel | Account Type | Tax Year | Buildings | Actual Value | Local Govt Assessed Value | School Assessed Value |
|---|---|---|---|---|---|---|---|
| R3305505 | 095903229016 | Residential | 2026 | 1 | 363,160 | 22,700 | 25,600 |
| Legal |
|---|
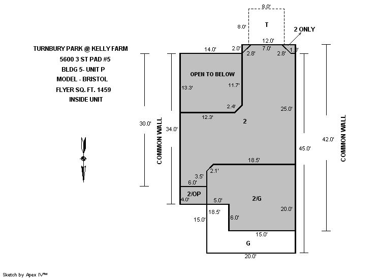
| GR 1TPKFC UNIT P TURNBURY PARK AT KELLY FARM CONDOS 1ST SUPP |
| Subdivision | Block | Lot | Land Economic Area |
|---|---|---|---|
| TURNBURY PARK AT KELLY FARM 1ST SUPP CONDO MAP PAD 5 | P | TURNBURY CONDO |
| Property Address | Property City | Section | Township | Range |
|---|---|---|---|---|
| 5600 3RD ST 5-P | GREELEY | 03 | 05 | 66 |
| Account | Parcel | Account Type | Tax Year | Buildings | Actual Value | Local Govt Assessed Value | School Assessed Value |
|---|---|---|---|---|---|---|---|
| R3305505 | 095903229016 | Residential | 2026 | 1 | 363,160 | 22,700 | 25,600 |
| Account | Owner Name | Address |
|---|---|---|
| R3305505 | ROHRER GROUP LLC | 5180 MONROE AVE LOVELAND, CO 805381849 |
| Account | Parcel | Account Type | Tax Year | Buildings | Actual Value | Local Govt Assessed Value | School Assessed Value |
|---|---|---|---|---|---|---|---|
| R3305505 | 095903229016 | Residential | 2026 | 1 | 363,160 | 22,700 | 25,600 |
| Reception | Rec Date | Type | Grantor | Grantee | Doc Fee | Sale Date | Sale Price |
|---|---|---|---|---|---|---|---|
| 3229769 | NA | SUB | SUBDIVISION | TURNBURY PARK AT KELLY FARM CONDO 1ST SUPP | 0.00 | NA | 0 |
| 3231351 | 10-28-2004 | WD | HIGHPOINTE INC | DAUKSCH ANDRE F & | 18.31 | 10-27-2004 | 183,100 |
| 3767104 | 05-06-2011 | DTHC | DAUKSCH ANDRE F | DAUKSCH RUTH E | 0.00 | 04-10-2011 | 0 |
| 4114419 | 06-09-2015 | WD | DAUKSCH RUTH E | ROHRER CHARLES W JR | 19.50 | 06-05-2015 | 195,000 |
| 4908492 | 07-11-2023 | QCN | ROHRER CHARLES W JR | ROHRER GROUP LLC | 0.00 | 07-11-2023 | 0 |
*If the hyperlink for the reception number does not work, try a manual search in the Clerk and Recorder records. Use the Grantor or Grantee in your search.
| Account | Parcel | Account Type | Tax Year | Buildings | Actual Value | Local Govt Assessed Value | School Assessed Value |
|---|---|---|---|---|---|---|---|
| R3305505 | 095903229016 | Residential | 2026 | 1 | 363,160 | 22,700 | 25,600 |
Building 1
| AccountNo | Building ID | Occupancy |
|---|---|---|
| R3305505 | 1 | Condominium unit |
| ID | Type | NBHD | Occupancy | % Complete | Bedrooms | Baths |
|---|---|---|---|---|---|---|
| 1 | Condo | 2G3080 | Condominium unit | 100 | 3 | 3.00 |
| ID | Exterior | Roof Cover | Interior | HVAC | Perimeter | Units | Unit Type | Make |
|---|---|---|---|---|---|---|---|---|
| 1 | Frame Siding | Composition Shingle | Drywall | Central Air to Air | 0 | 1 | Inside | NA |
| ID | Square Ft | Condo SF | Total Basement SF | Finished Basement SF | Garage SF | Carport SF | Balcony SF | Porch SF |
|---|---|---|---|---|---|---|---|---|
| 1 | 1,512 | 1,512 | 0 | 0 | 399 | 0 | 0 | 24 |
| ID | Built As | Square Ft | Year Built | Stories | Length | Width |
|---|---|---|---|---|---|---|
| 1.00 | Condo <= 3 Stories | 1,512 | 2004 | 2 | 0 | 0 |
| ID | Detail Type | Description | Units |
|---|---|---|---|
| 1 | Add On | Fireplace Gas | 1.00 |
| 1 | Fixture | Full Bath | 2.00 |
| 1 | Fixture | Half Bath | 1.00 |
| 1 | Garage | Built In | 399.00 |
| 1 | Porch | Open Slab | 64.00 |
| 1 | Porch | Slab Roof Ceil | 24.00 |
| Account | Parcel | Account Type | Tax Year | Buildings | Actual Value | Local Govt Assessed Value | School Assessed Value |
|---|---|---|---|---|---|---|---|
| R3305505 | 095903229016 | Residential | 2026 | 1 | 363,160 | 22,700 | 25,600 |
| Type | Code | Description | Actual Value | Local Govt Assessed Value | School Assessed Value | Acres | Land SqFt |
|---|---|---|---|---|---|---|---|
| Improvement | 1230 | CONDOS | 363,160 | 22,700 | 25,600 | 0.000 | 0 |
| Totals | - | - | 363,160 | 22,700 | 25,600 | 0.000 | 0 |
Comparable sales for your Residential or Commercial property may be found using our SALES SEARCH TOOL
Values are updated annually on May 1st for Real Property and June 15th for Personal Property and Oil and Gas.
| Account | Parcel | Account Type | Tax Year | Buildings | Actual Value | Local Govt Assessed Value | School Assessed Value |
|---|---|---|---|---|---|---|---|
| R3305505 | 095903229016 | Residential | 2026 | 1 | 363,160 | 22,700 | 25,600 |
| Tax Area | District ID | District Name | Local Govt Mill Levy |
School Mill Levy |
Estimated Taxes |
|---|---|---|---|---|---|
| 0683 | 0700 | AIMS JUNIOR COLLEGE | 6.313 | 0.000 | $143.31 |
| 0683 | 0411 | GREELEY CITY | 11.274 | 0.000 | $255.92 |
| 0683 | 1050 | HIGH PLAINS LIBRARY | 3.044 | 0.000 | $69.10 |
| 0683 | 0301 | NORTHERN COLORADO WATER (NCW) | 1.000 | 0.000 | $22.70 |
| 0683 | 0206 | SCHOOL DIST 6-GREELEY | 0.000 | 47.615 | $1,218.94 |
| 0683 | 0100 | WELD COUNTY | 15.956 | 0.000 | $362.20 |
| 0683 | 1200 | WEST GREELEY CONSERVATION | 0.414 | 0.000 | $9.40 |
| Total | - | - | 38.001 | 47.615 | $2,081.57 |
The estimate of tax is based on the prior year mill levy and the 2025 projected assessment rates. Mill levies and tax estimates will be updated yearly on December 22nd for the current year. Additional information can be found at https://assessor.weld.gov



