Account: R3324405
April 1, 2026
| Account | Parcel | Account Type | Tax Year | Buildings | Actual Value | Local Govt Assessed Value | School Assessed Value |
|---|---|---|---|---|---|---|---|
| R3324405 | 095907424005 | Residential | 2026 | 1 | 396,606 | 24,790 | 27,960 |
| Legal |
|---|
| GR 2MS L5 BLK8 MOUNTAIN SHADOWS 2ND FG |
| Subdivision | Block | Lot | Land Economic Area |
|---|---|---|---|
| MOUNTAIN SHADOWS SUB 2ND FG | 8 | 5 | MOUNTAIN SHADOWS |
| Property Address | Property City | Section | Township | Range |
|---|---|---|---|---|
| 8642 17TH STREET DR | GREELEY | 07 | 05 | 66 |
| Account | Parcel | Account Type | Tax Year | Buildings | Actual Value | Local Govt Assessed Value | School Assessed Value |
|---|---|---|---|---|---|---|---|
| R3324405 | 095907424005 | Residential | 2026 | 1 | 396,606 | 24,790 | 27,960 |
| Account | Owner Name | Address |
|---|---|---|
| R3324405 | CHAVEZ HECTOR R | 8642 W 17TH STREET DR GREELEY, CO 806344693 |
| R3324405 | FERNANDEZ DENISSE A |
| Account | Parcel | Account Type | Tax Year | Buildings | Actual Value | Local Govt Assessed Value | School Assessed Value |
|---|---|---|---|---|---|---|---|
| R3324405 | 095907424005 | Residential | 2026 | 1 | 396,606 | 24,790 | 27,960 |
| Reception | Rec Date | Type | Grantor | Grantee | Doc Fee | Sale Date | Sale Price |
|---|---|---|---|---|---|---|---|
| 3233829 | NA | SUB | SUBDIVISION | MOUNTAIN SHADOWS 2ND FG | 0.00 | NA | 0 |
| 3279824 | 04-22-2005 | WD | MOUNTAIN SHADOWS OF GREELEY LLC | MOUNTAIN SHADOWS INVESTMENTS LLC | 660.00 | 04-15-2005 | 6,600,000 |
| 3310274 | 08-05-2005 | SWD | MOUNTAIN SHADOWS INVESTMENTS LLC | J&J CONSTRUCTION NORTHERN COLORADO LLC | 189.00 | 08-01-2005 | 1,890,000 |
| 3418936 | 09-12-2006 | SWD | J&J CONSTRUCTION NORTHERN COLORADO LLC | CHAVEZ HECTOR R & | 19.38 | 09-08-2006 | 193,800 |
*If the hyperlink for the reception number does not work, try a manual search in the Clerk and Recorder records. Use the Grantor or Grantee in your search.
| Account | Parcel | Account Type | Tax Year | Buildings | Actual Value | Local Govt Assessed Value | School Assessed Value |
|---|---|---|---|---|---|---|---|
| R3324405 | 095907424005 | Residential | 2026 | 1 | 396,606 | 24,790 | 27,960 |
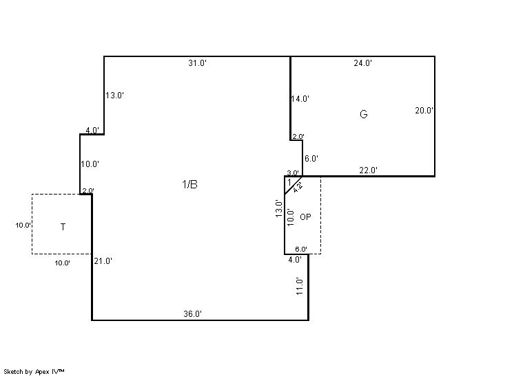
Building 1
| AccountNo | Building ID | Occupancy |
|---|---|---|
| R3324405 | 1 | Single Family Residential |
| ID | Type | NBHD | Occupancy | % Complete | Bedrooms | Baths |
|---|---|---|---|---|---|---|
| 1 | Residential | 2G2008 | Single Family Residential | 100 | 3 | 2.00 |
| ID | Exterior | Roof Cover | Interior | HVAC | Perimeter | Units | Unit Type | Make |
|---|---|---|---|---|---|---|---|---|
| 1 | Frame Siding | Composition Shingle | Drywall | Forced Air | 0 | 0 | NA | NA |
| ID | Square Ft | Condo SF | Total Basement SF | Finished Basement SF | Garage SF | Carport SF | Balcony SF | Porch SF |
|---|---|---|---|---|---|---|---|---|
| 1 | 1,482 | 0 | 1,478 | 0 | 468 | 0 | 0 | 74 |
| ID | Built As | Square Ft | Year Built | Stories | Length | Width |
|---|---|---|---|---|---|---|
| 1.00 | Ranch 1 Story | 1,482 | 2005 | 1 | 0 | 0 |
| ID | Detail Type | Description | Units |
|---|---|---|---|
| 1 | Add On | Fireplace Gas | 1.00 |
| 1 | Basement | Total Basement SF | 1478.00 |
| 1 | Fixture | Full Bath | 1.00 |
| 1 | Garage | Attached | 468.00 |
| 1 | Porch | Open Slab | 100.00 |
| 1 | Porch | Slab Roof Ceil | 74.00 |
| 1 | Rough In | Rough In | 1.00 |
| Account | Parcel | Account Type | Tax Year | Buildings | Actual Value | Local Govt Assessed Value | School Assessed Value |
|---|---|---|---|---|---|---|---|
| R3324405 | 095907424005 | Residential | 2026 | 1 | 396,606 | 24,790 | 27,960 |
| Type | Code | Description | Actual Value | Local Govt Assessed Value | School Assessed Value | Acres | Land SqFt |
|---|---|---|---|---|---|---|---|
| Improvement | 1212 | SINGLE FAMILY RESIDENTIAL IMPROVEMENTS | 317,606 | 19,850 | 22,390 | 0.000 | 0 |
| Land | 1112 | SINGLE FAMILY RESIDENTIAL-LAND | 79,000 | 4,940 | 5,570 | 0.152 | 6,640 |
| Totals | - | - | 396,606 | 24,790 | 27,960 | 0.152 | 6,640 |
Comparable sales for your Residential or Commercial property may be found using our SALES SEARCH TOOL
Values are updated annually on May 1st for Real Property and June 15th for Personal Property and Oil and Gas.
| Account | Parcel | Account Type | Tax Year | Buildings | Actual Value | Local Govt Assessed Value | School Assessed Value |
|---|---|---|---|---|---|---|---|
| R3324405 | 095907424005 | Residential | 2026 | 1 | 396,606 | 24,790 | 27,960 |
| Tax Area | District ID | District Name | Local Govt Mill Levy |
School Mill Levy |
Estimated Taxes |
|---|---|---|---|---|---|
| 0446 | 0700 | AIMS JUNIOR COLLEGE | 6.313 | 0.000 | $156.50 |
| 0446 | 1051 | CLEARVIEW LIBRARY | 3.546 | 0.000 | $87.91 |
| 0446 | 0411 | GREELEY CITY | 11.274 | 0.000 | $279.48 |
| 0446 | 0301 | NORTHERN COLORADO WATER (NCW) | 1.000 | 0.000 | $24.79 |
| 0446 | 0204 | SCHOOL DIST RE4-WINDSOR | 0.000 | 46.646 | $1,304.22 |
| 0446 | 0100 | WELD COUNTY | 15.956 | 0.000 | $395.55 |
| 0446 | 1200 | WEST GREELEY CONSERVATION | 0.414 | 0.000 | $10.26 |
| Total | - | - | 38.503 | 46.646 | $2,258.71 |
The estimate of tax is based on the prior year mill levy and the 2025 projected assessment rates. Mill levies and tax estimates will be updated yearly on December 22nd for the current year. Additional information can be found at https://assessor.weld.gov



