Account: R3326905

April 1, 2026

Account Parcel Account Type Tax Year Buildings Actual Value Local Govt Assessed Value School Assessed Value
R3326905 095907426005 Residential 2026 1 419,081 26,200 29,550

Legal
GR 2MS L5 BLK10 MOUNTAIN SHADOWS 2ND FG

Subdivision Block Lot Land Economic Area
MOUNTAIN SHADOWS SUB 2ND FG 10 5 MOUNTAIN SHADOWS

Property Address Property City Section Township Range
8708 17TH STREET RD GREELEY 07 05 66




Account Parcel Account Type Tax Year Buildings Actual Value Local Govt Assessed Value School Assessed Value
R3326905 095907426005 Residential 2026 1 419,081 26,200 29,550

Account Owner Name Address
R3326905 LEET DENISE 8708 W 17TH STREET RD GREELEY, CO 806343029
R3326905 LEET THOMAS


Account Parcel Account Type Tax Year Buildings Actual Value Local Govt Assessed Value School Assessed Value
R3326905 095907426005 Residential 2026 1 419,081 26,200 29,550

Reception Rec Date Type Grantor Grantee Doc Fee Sale Date Sale Price
3233829 NA SUB SUBDIVISION MOUNTAIN SHADOWS 2ND FG 0.00 NA 0
3279824 04-22-2005 WD MOUNTAIN SHADOWS OF GREELEY LLC MOUNTAIN SHADOWS INVESTMENTS LLC 660.00 04-15-2005 6,600,000
3392943 06-02-2006 SWD MOUNTAIN SHADOWS INVESTMENTS LLC JOURNEY HOMES LLC 63.00 05-24-2006 630,000
3471114 04-24-2007 SWD JOURNEY HOMES LLC LEET DENISE & 18.75 04-23-2007 187,500



Account Parcel Account Type Tax Year Buildings Actual Value Local Govt Assessed Value School Assessed Value
R3326905 095907426005 Residential 2026 1 419,081 26,200 29,550

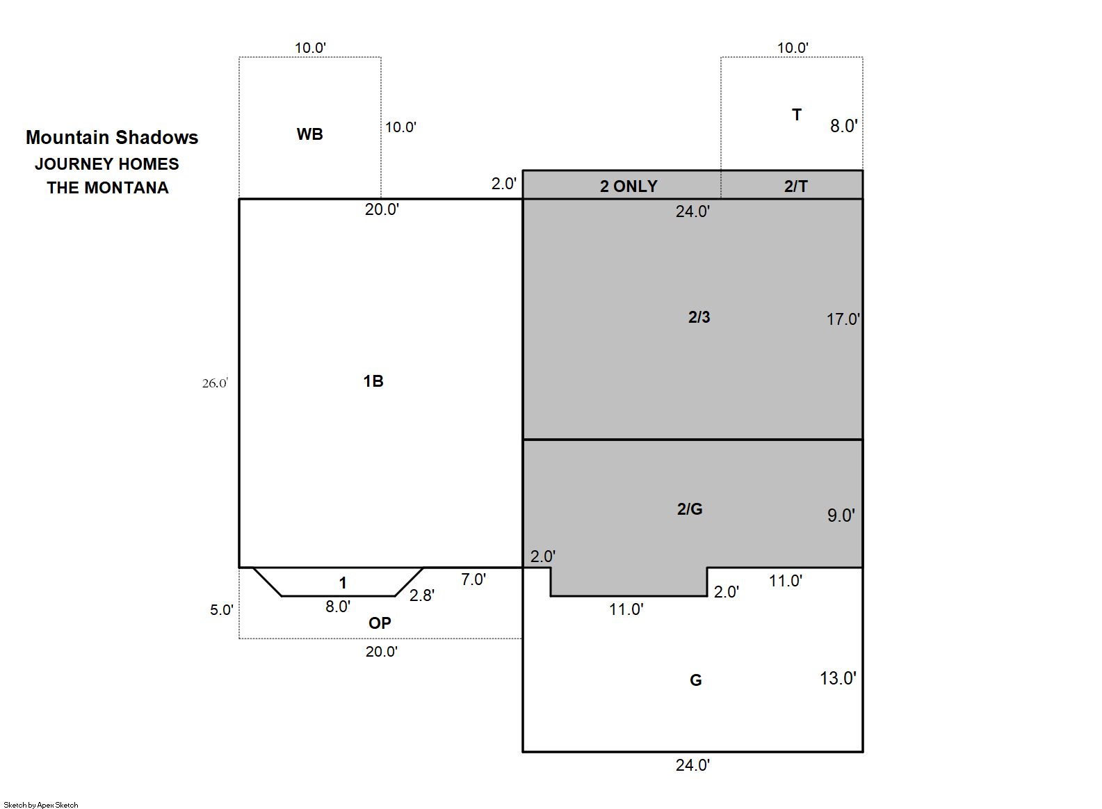
Building 1

AccountNo Building ID Occupancy
R3326905 1 Single Family Residential


ID Type NBHD Occupancy % Complete Bedrooms Baths
1 Residential 2G2008 Single Family Residential 100 4 4.00


ID Exterior Roof Cover Interior HVAC Perimeter Units Unit Type Make
1 Frame Siding Composition Shingle Drywall Central Air to Air 284 0 NA NA


ID Square Ft Condo SF Total Basement SF Finished Basement SF Garage SF Carport SF Balcony SF Porch SF
1 1,642 0 520 0 528 0 100 100


Built As Details for Building 1
ID Built As Square Ft Year Built Stories Length Width
1.00 Split Level 1,642 2006 1 0 0


Additional Details for Building 1
ID Detail Type Description Units
1 Balcony Wood Wood Fin 100.00
1 Basement Total Basement SF 520.00
1 Fixture Full Bath 3.00
1 Fixture Half Bath 1.00
1 Garage Attached 528.00
1 Porch Open Slab 100.00
1 Porch Slab Roof Ceil 80.00





Account Parcel Account Type Tax Year Buildings Actual Value Local Govt Assessed Value School Assessed Value
R3326905 095907426005 Residential 2026 1 419,081 26,200 29,550

Type Code Description Actual Value Local Govt Assessed Value School Assessed Value Acres Land SqFt
Improvement 1212 SINGLE FAMILY RESIDENTIAL IMPROVEMENTS 340,081 21,260 23,980 0.000 0
Land 1112 SINGLE FAMILY RESIDENTIAL-LAND 79,000 4,940 5,570 0.157 6,819
Totals - - 419,081 26,200 29,550 0.157 6,819


Account Parcel Account Type Tax Year Buildings Actual Value Local Govt Assessed Value School Assessed Value
R3326905 095907426005 Residential 2026 1 419,081 26,200 29,550

Tax Area District ID District Name Local Govt
Mill Levy
School
Mill Levy
Estimated
Taxes
0446 0700 AIMS JUNIOR COLLEGE 6.313 0.000 $165.40
0446 1051 CLEARVIEW LIBRARY 3.546 0.000 $92.91
0446 0411 GREELEY CITY 11.274 0.000 $295.38
0446 0301 NORTHERN COLORADO WATER (NCW) 1.000 0.000 $26.20
0446 0204 SCHOOL DIST RE4-WINDSOR 0.000 46.646 $1,378.39
0446 0100 WELD COUNTY 15.956 0.000 $418.05
0446 1200 WEST GREELEY CONSERVATION 0.414 0.000 $10.85
Total - - 38.503 46.646 $2,387.17


The estimate of tax is based on the prior year mill levy and the 2025 projected assessment rates. Mill levies and tax estimates will be updated yearly on December 22nd for the current year. Additional information can be found at https://assessor.weld.gov










Select Reports to Print: